• Sledovat cenu
  •  

Zasílání upozornění emailem:

Prodej bytu 3+1, 59 m2 - Výškovická, Ostrava, okr. Ostrava-město

Cena: 4 149 000 Kč
Stav:Volný
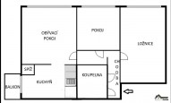
3+1, 59 m2, panelová, OV, 12. podlaží
Popis: Hledáte byt, který je připravený k nastěhování ihned a má moc hezký výhled? Tak Vám přesně takový byt nabízím ke koupi.
Tento slunný a teplý byt v osobním vlastnictví je o dispozici 3+1...
abbr> a jeho užitná plocha má 59 m². Nachází se v 12NP (dvanácté nadzemní patro)/12 NP a u tohoto bytu je opravdu výhoda. Je odsud moc hezký výhled na Beskydy.

Byt je po rekonstrukci, která zahrnovala výměnu elektroinstalace, nové omítky, podlahovou krytinu a koupelnové jádro s obklady. Je čerstvě vymalován a ihned k dispozici.
O komfort se postará klimatizace, která Vám jak zatopí a tak Vás i naopak schladí v teplém počasí. Další výhodou jsou venkovní rolety, které zajistí příjemnou teplotu po celý rok.
Součástí nabídky jsou i fotky s vizualizaci pro lepší představu.

Dům je po celkové revitalizaci. Je opraven od vchodu po střechu.
Dům prošel revitalizací před dvěma lety, takže nejsou již plánované žádné opravy a díky čemuž mají byt i nízké provozní náklady – i bez topení je zde příjemných 23 °C.

Z balkonu si můžete užívat moc hezký výhled na Beskydy a široké okolí Ostravy. Tento výhled Vás neomrzí. K bytu náleží také sklepní kóje.
V okolí najdete veškerou občanskou vybavenost – školy, školky, obchody, zastávky MHD i zeleň pro volný čas. Lokalita Ostrava–Zábřeh nabízí klidné a pohodové bydlení s výbornou dostupností.

Tento byt nabízí samá plus, tak neváhejte mne kontaktovat na prohlídku. Ráda Vás bytem provedu.
S financováním pomohu také.
  • Vložení inzerátu:
    31.10.2025
  • Kód:
    00615
  • K dispozici od:
    0.0.0
  • Typ nemovitosti:
    Byt
  • Typ budovy:
    Panelová
  • Dispozice:
    3+1
  • Vlastnictví:
    OV
  • Podlaží:
    12
  • Podlahová plocha:
    59 m2
  • Balkón:
    Ano
  • Sklep:
    Ano
  • Stav objektu:
    Velmi dobrý
  • Umístění objektu:
    Sídliště
  • Voda:
    dálkový vodovod
  • Elektřina:
    230 V
  • Doprava:
    silnice, MHD, autobus
  • Topeni:
    ústřední dálkové
  • Plyn:
    plynovod
  • Odpad:
    kanalizace
  • Komunikace:
    asfaltová
  • Energetická náročnost:
    C - Úsporná
  • Podle vyhlášky:
    c. 78/2013 Sb.
  • Ukazatel náročnosti:
    107 kWh/m2
  • Nabídky v okolí:
  • Informace o obci:
    Obec Ostrava má 303609 obyvatel, z toho 212976 v produktivním věku.
    V obci se nachází pošta.
    V obci se nachází škola, popř. školka.
    V obci se nachází zdravotní zařízení.
    V obci je rozvod kanalizace.
    V obci je rozvod městské vody.
    V obci je rozvod plynu.
Lokalita: Výškovická , Ostrava, okres Ostrava-město, Česká republika Výškovická, Ostrava, okr. Ostrava-město

Kontakt

Bc. Monika Jančová



  • Objednání prohlídky a více informací
  •  
  • Poslat na e-mail
  •  

Zasílání odkazu na realitu emailem: