Prodej bytu 3+1, 122 m2 - U pošty 1474, Praha 8, Libeň, Praha (již není v nabídce)
Cena:
14 999 000 Kč
Stav:archiv
3+1, 122 m2, cihlová, OV, 3. podlaží
Popis:
Luxusní 3+1 v srdci Libně, kde se snoubí jednoduše přirozená elegance funkcionalismu a moderní komfort. Představte si byt, kde se prostor, světlo a styl setkávají v dokonalé harmo...nii.
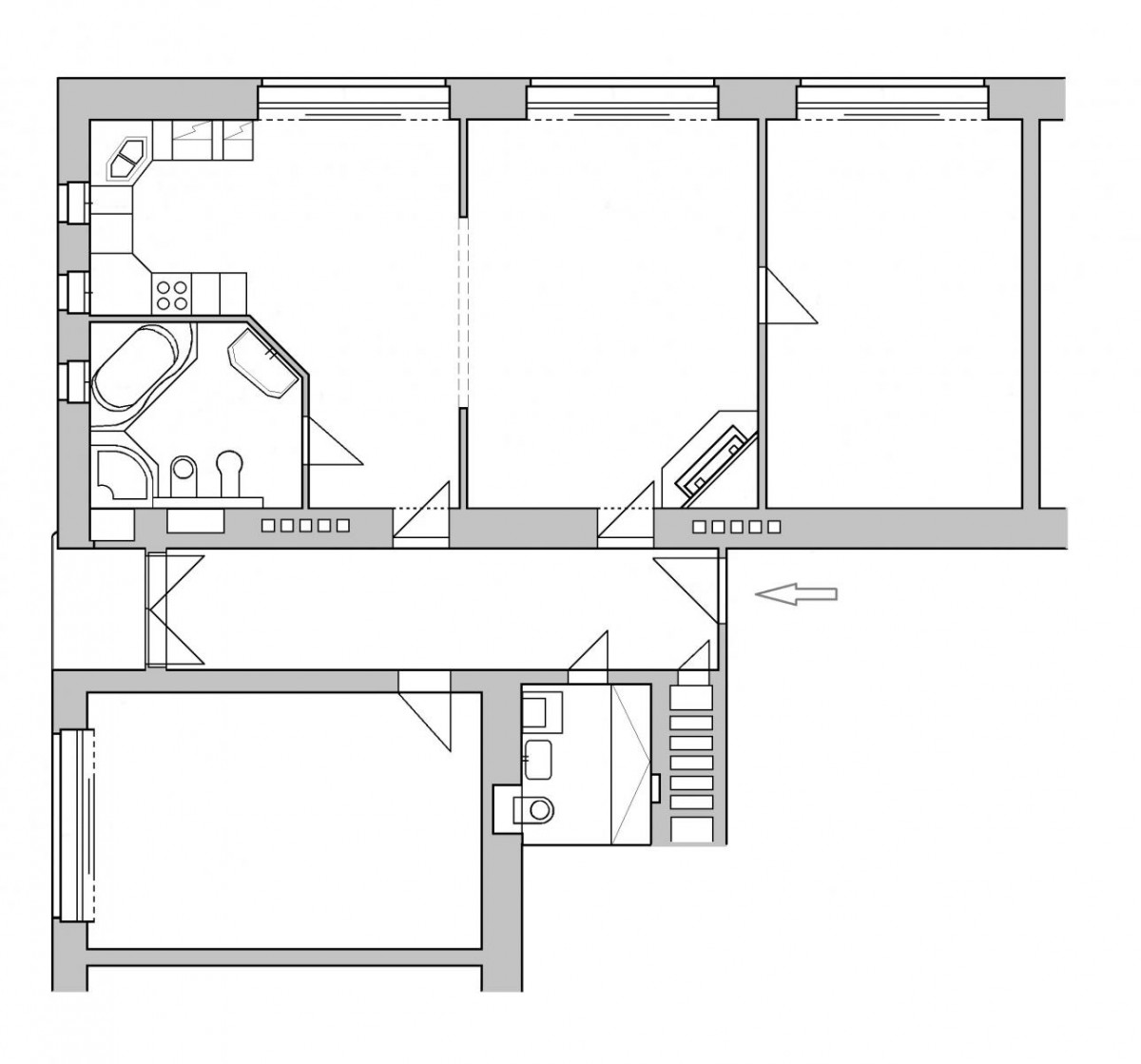
Luxusní 3+1 v Praze 8 - Libni, ulice U pošty, představuje jedinečnou příležitost pro ty, kteří hledají prostorné a stylové bydlení v atraktivní lokalitě. Tento byt o rozloze 122 m2 se nachází ve 3. podlaží funkcionalistického domu včetně výtahu.
Dispozice 3+1 se 122 m2 nabízí velkorysý prostor s vysokými stropy a velkými okny s výhledem do zeleně, která zajišťují dokonalé přirozené prosvětlení celého bytu a dodávají mu neopakovatelnou vzdušnou atmosféru.
Prostorný obývací pokoj s krbem je srdcem bytu, kde teplo krbu umocňuje atmosféru domova. Ideální pro relaxaci i setkávání s přáteli a díky propojení s kuchyní a jídelnou velkými prosklenými posuvnými dveřmi se ještě znásobí otevřenost, luxus a elegance tohoto jedinečného prostoru.
Dvě velké samostatné ložnice, každá přes 22 m2, skýtají dostatek prostoru nejen pro spánek, ale i využití pro pracovní prostor dětí, pracovnu nebo beauty koutek paní bytu a další možnosti.
Samostatná kapitola je velká koupelna. Kromě sprchového koutu, sociální zařízení WC a bidetu je zde vana s vířivkou a masážními tryskami, kde si můžete dopřát relax po náročném dni. Samozřejmě nechybí umyvadlo s velkým zrcadlem a osvětlením.
Ze vstupní haly je proti vchodovým dveřím vstup na balkón, který sice není velký, ale svůj účel splní. Kromě vstupu do jedné z ložnic a obývacího pokoje, je z haly přístupná i šatna a vedle vstupních dveří praktický vestavěný uzavřený botník.
Šatna, nezbytná místnost s vestavěnými skříněmi pro uložení oblečení a doplňků, udrží váš byt uklizený a organizovaný. Je zde umístěna pračka, plynový kotel a druhá separé toaleta.
Jedinečný je rovněž prostor v rekonstruovaném suterénu domu o výměře cca 12 m2 pro uložení, jak Vašeho sportovního vybavení, tak všech věcí, pro které jinde není nikdy dost úložného místa.
Celkem tedy budete mít pro Váš životní prostor k dispozici, krom samotné výměry bytu, která je rovných 122 m2 a s balkonem, který se do výměry bytu nezapočítává a se sklepem příjemných téměř 140 m2.
K dalšímu vybavení patří rozvod alarmu, vestavěný trezor, odvlhčovací jednotka v koupelně. Ve všech obytných prostorách jsou dřevěné parketové podlahy a stylový nábytek, který bude součástí bytu.
Zapomeňte na hluk a stres velkoměsta. Tento byt se nachází v naprosto klidné lokalitě s upraveným travnatým dvorem ve vnitrobloku a obklopený zelení, do které je výhled z bytu. Ideální pro rodiny s dětmi i pro ty, kteří hledají oázu klidu v centru Prahy.
Perfektní lokalita - metro, tramvaj i autobus jsou v pěší dostupnosti, takže se snadno dostanete kamkoliv po Praze. Napojení na výpadovky a Pražský okruh je snadné. V okolí naleznete veškerou občanskou vybavenost - obchody, restaurace, školy i zdravotnická zařízení.
Tento byt je skvělou volbou pro ty, kteří chtějí žít v prostorném a stylovém prostředí v jedné z nejkrásnějších částí Prahy. Neváhejte a domluvte si prohlídku!
Měsíční zálohy, včetně fondu oprav, činí 7. 224, - Kč + elektřina a plyn.
Zatím nebyl dodán PENB, proto dle zákona uvádíme kategorii G.
- Vložení inzerátu:
19.3.2025
- Kód:
AR126
- Typ nemovitosti:
Byt
- Typ budovy:
Cihlová
- Dispozice:
3+1
- Vlastnictví:
OV
- Podlaží:
3
- Podlahová plocha:
122 m2
- Balkón:
3 m2
- Sklep:
12 m2
- Stav objektu:
Velmi dobrý
- Bezbariérový byt:
Ano
- Telekomunikace:
Telefon, Internet, Kabelová televize
- Voda:
dálkový vodovod
- Elektřina:
230 V
- Doprava:
silnice, dálnice, MHD, autobus, vlak
- Topeni:
ústřední plynové
- Odpad:
kanalizace
- Bezbariérový přístup:
Ano
- Energetická náročnost:
G - Mimořádne nehospodárná
- Nabídky v okolí: