• Sledovat cenu
  •  

Zasílání upozornění emailem:

Prodej bytu 3+1, 104 m2 - Pštrossova 1, Praha (již není v nabídce)

Cena: 10 990 000 Kč
Stav:archiv
3+1, 104 m2, cihlová, OV, 3. podlaží
Popis: S ohledem na aktuální situaci v souvislosti s COV (osobní vlastnictví)ID - 19, pro vás nabízíme kromě běžných prohlídek nemovitostí také online (video) prohlídky přes WhatsApp, FaceTime, Skype či Messenger


Nabízíme k pro...deji moderní a zrekonstruovaný byt, který se nachází na zajímavé adrese v centru města, v ulici Pštrossova.

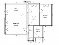
Krásný světlý byt 3+1 o celkové podlahové ploše 85 m2 se skládá z předsíně, ložnice se šatnou, druhé ložnice, obývacího pokoje s krbem, samostatné komfortní kuchyně a koupelny s toaletou. Orientace bytu je na západ, sever a jih, ložnice je umístěna na západ s okny do klidného vnitrobloku, obývací pokoj na jih, také do vnitrobloku, koupelna na sever do ulice. Dům je ve výborném udržovaném stavu. K bytu náleží velký sklepní prostor 20 m2 s klenutými stropy, který lze dále využít. Užitná plocha bytu činí 104, 3 m2.

Byt se nachází v cihlovém domě se stálými rezidenty, v docházkové vzdálenosti na zastávku Myslíkova či stanici metra Karlovo náměstí. V okolí najdeme veškerou občanskou vybavenost včetně oblíbených pražských míst.

Byt lze financovat hypotečním úvěrem, který Vám rádi zařídíme.
  • Vložení inzerátu:
    14.4.2020
  • Kód:
    00157
  • K dispozici od:
    0.0.0
  • Typ nemovitosti:
    Byt
  • Typ budovy:
    Cihlová
  • Dispozice:
    3+1
  • Vlastnictví:
    OV
  • Podlaží:
    3
  • Podlahová plocha:
    104 m2
  • Sklep:
    19 m2
  • Stav objektu:
    Velmi dobrý
  • Umístění objektu:
    Centrum
  • Telekomunikace:
    Telefon, Internet, Satelit, Kabelová televize, Kabelové rozvody
  • Voda:
    dálkový vodovod
  • Elektřina:
    230 V
  • Doprava:
    silnice, MHD
  • Topeni:
    ústřední dálkové
  • Plyn:
    plynovod
  • Odpad:
    kanalizace
  • Komunikace:
    asfaltová
  • Zařízený:
    Ano
  • Energetická náročnost:
    G - Mimořádne nehospodárná
  • Nabídky v okolí:
  • Informace o obci:
    Obec Praha má 1257158 obyvatel, z toho 889974 v produktivním věku.
    V obci se nachází pošta.
    V obci se nachází škola, popř. školka.
    V obci se nachází zdravotní zařízení.
    V obci je rozvod kanalizace.
    V obci je rozvod městské vody.
    V obci je rozvod plynu.

Podobné nabídky v okolí

Lokalita: Pštrossova 1, Praha, Česká republika Pštrossova 1, Praha