• Sledovat cenu
  •  

Zasílání upozornění emailem:

Prodej bytu 2+kk, 78 m2 - Soběšovice , okr. Frýdek-Místek (již není v nabídce)

Cena: 5 819 000 Kč
Stav:archiv
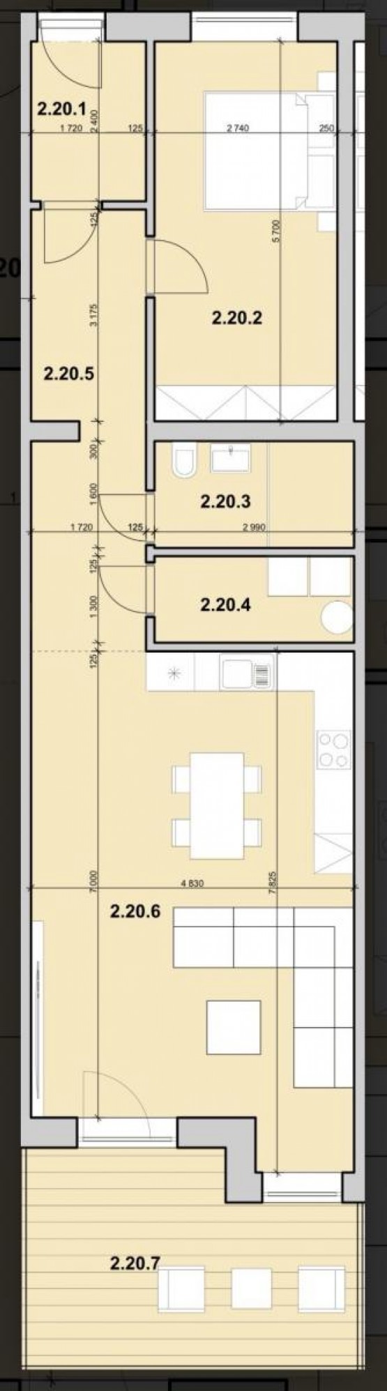
2+kk, 78 m2, cihlová, OV, 2. podlaží
Popis: Cena apartmánu se může lišit dle velikosti vybraného apartmánu s terasou nebo balkónem
Luxusní apartmán 2+kk od 54 m2 s balkonem 15 m2 u Žermanické přehrady... s výhledem na Beskydy

Nabízíme k prodeji 19 exkluzivních apartmánů v atraktivní lokalitě Soběšovice, přímo u Žermanické přehrady. Apartmány o velikosti 44 - 94 m2 vás okouzlí moderním designem, vysokým standardem vybavení a důrazem na komfort.

Klíčové vlastnosti projektu:
Luxusní bydlení blízko přírody kombinace klidu, ticha a moc hezkého výhledu na vodní hladinu, a přitom rychlá dostupnost do Ostravy, Frýdku - Místku i Beskyd.

Soukromí a bezpečí - uzavřený areál s privátním parkováním a moderním zabezpečovacím systémem.

Přímý přístup k vodě - prostorný pozemek zasahující až k přehradě a se soukromým molem.

Vysoký standard - klimatizace, podlahové vytápění, izolační trojskla, bezpečnostní dveře, terasy, balkóny a přizpůsobení interiéru na míru.

Možnosti rekreace:
Součástí areálu a blízkého okolí je restaurace, tenisové kurty, plážový volejbal, cyklostezky a vodní sporty.

Dispozice a ceny:
Apartmány 2+KK a 3+KK, s terasami či balkony.
Dokončení projektu: 1. čtvrtletí 2025

Apartmány
Každý z apartmánů má obývací pokoj, kuchyni s jídelnou, 1 až 2 ložnice, koupelnu a technickou místnost.
Interiéry s nádechem luxusu charakterizují moderní prvky.
Ke každému apartmánu navíc přísluší 1 parkovací stání s možností dokoupení i dalšího parkovacího místa.

Dle přání klienta lze upravit interiér na míru.

Pro více informací nás neváhejte kontaktovat. Splňte si sen o bydlení v přírodě s komfortem moderního apartmánu!
  • Vložení inzerátu:
    3.3.2025
  • Kód:
    256
  • Typ nemovitosti:
    Byt
  • Typ budovy:
    Cihlová
  • Dispozice:
    2+kk
  • Vlastnictví:
    OV
  • Podlaží:
    2
  • Podlahová plocha:
    78 m2
  • Balkón:
    15 m2
  • Terasa:
    Ano
  • Stav objektu:
    Novostavba
  • Bezbariérový byt:
    Ano
  • Telekomunikace:
    Internet, Kabelová televize
  • Voda:
    dálkový vodovod
  • Elektřina:
    230 V
  • Doprava:
    silnice, MHD, autobus, vlak
  • Odpad:
    kanalizace
  • Komunikace:
    asfaltová
  • Bezbariérový přístup:
    Ano
  • Energetická náročnost:
    B - Velmi úsporná
  • Podle vyhlášky:
    c. 78/2013 Sb.
  • Nabídky v okolí:
  • Informace o obci:
    Obec Soběšovice má 865 obyvatel, z toho 606 v produktivním věku.
    V obci se nachází pošta.
    V obci se nachází zdravotní zařízení.
    V obci je rozvod kanalizace.
    V obci je rozvod městské vody.
    V obci je rozvod plynu.

Podobné nabídky v okolí

Lokalita: Soběšovice , okres Frýdek-Místek, Česká republika Soběšovice , okr. Frýdek-Místek, Moravskoslezský kraj