Prodej bytu 2+kk, 75 m2 - Zubatého, Praha 5, Praha (již není v nabídce)
Cena:
8 600 000 Kč
Stav:archiv
2+kk, 75 m2, cihlová, OV, 3. podlaží
Popis:
včetně provize RK a právního servisu
. Zprostředkujeme Vám ve výhradním zastoupení majitele prodej bytu po zdařilé kompletní rekonstrukci v žádané lokalitě Praha 5 - Smíchov, ulice Zubatého. Pokud hledáte investiční byt ...či bydlení v centru Prahy, je tato nabídka přímo pro Vás.
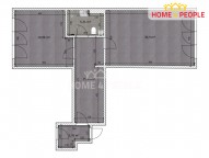
Nemovitost se nachází ve 3. podlaží celkem třípodlažního cihlového domu. Celková plocha bytu je 75 m². Vstupními dveřmi vejdeme do prostorné chodby. Kuchyň ( bez kuchyňské linky, pouze příprava pro realizaci Vaší vysněné kuchyně dle Vašich představ) a s obývacím prostorem, ložnice do klidného vnitrobloku, koupelna se sprchovým koutem. Okna jsou Euro okna - dřevěná, vytápění elektrickým kotlem.
Součástí prodeje bytové jednotky je i sklepní kóje.
Tuto nemovitost je možné financovat hypotečním úvěrem bez dokládání příjmů, pouze složení 20% vlastních zdrojů, který Vám rádi pomůžeme zdarma vyřídit za nejlepších podmínek na trhu. Vřele doporučujeme prohlídku. Prohlídky dle telefonické domluvy.
Zaparkovat je možné přímo před domem na základě příslušného parkovacího oprávnění či parkovacích hodinách. Doprava automobilem do centra potrvá pár minut. Velkou výhodou této nemovitosti je však dostupnost všeho podstatného bez nutnosti použití auta a rovněž velice dobrá síť MHD. V docházkové vzdálenosti je možné využít linku metra „B“ Anděl a několika tramvajových zastávek.
Dům se nachází v malebné části Smíchova na půli cesty mezi obchodním centrem Nový Smíchov a Janáčkovým nábřežím. V blízkém okolí najdete městskou knihovnu. Krátkou procházkou dojdete například na střelecký ostrov, Kinského zahrad či na Petřín. Relaxovat můžete také posezením s přáteli na oblíbené náplavce. Jedná se o velice klidné místo s kompletní občanskou vybaveností - školy, školky, pošta, služby, restaurace, obchody. Ev. číslo: 30485. Energetický štítek: A (1 kWh/m2/rok).
- Vložení inzerátu:
5.3.2024
- Kód:
3761482
- Typ nemovitosti:
Byt
- Typ budovy:
Cihlová
- Dispozice:
2+kk
- Vlastnictví:
OV
- Podlaží:
3
- Podlahová plocha:
75 m2
- Sklep:
Ano
- Stav objektu:
Velmi dobrý
- Energetická náročnost:
A - Mimoˇrádne úsporná
- Ukazatel náročnosti:
1 kWh/m2
- Nabídky v okolí:
Lokalita:
Zubatého , Praha 5, Praha, Česká republika
Zubatého, Praha 5, Praha