• Sledovat cenu
  •  

Zasílání upozornění emailem:

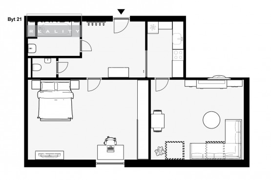
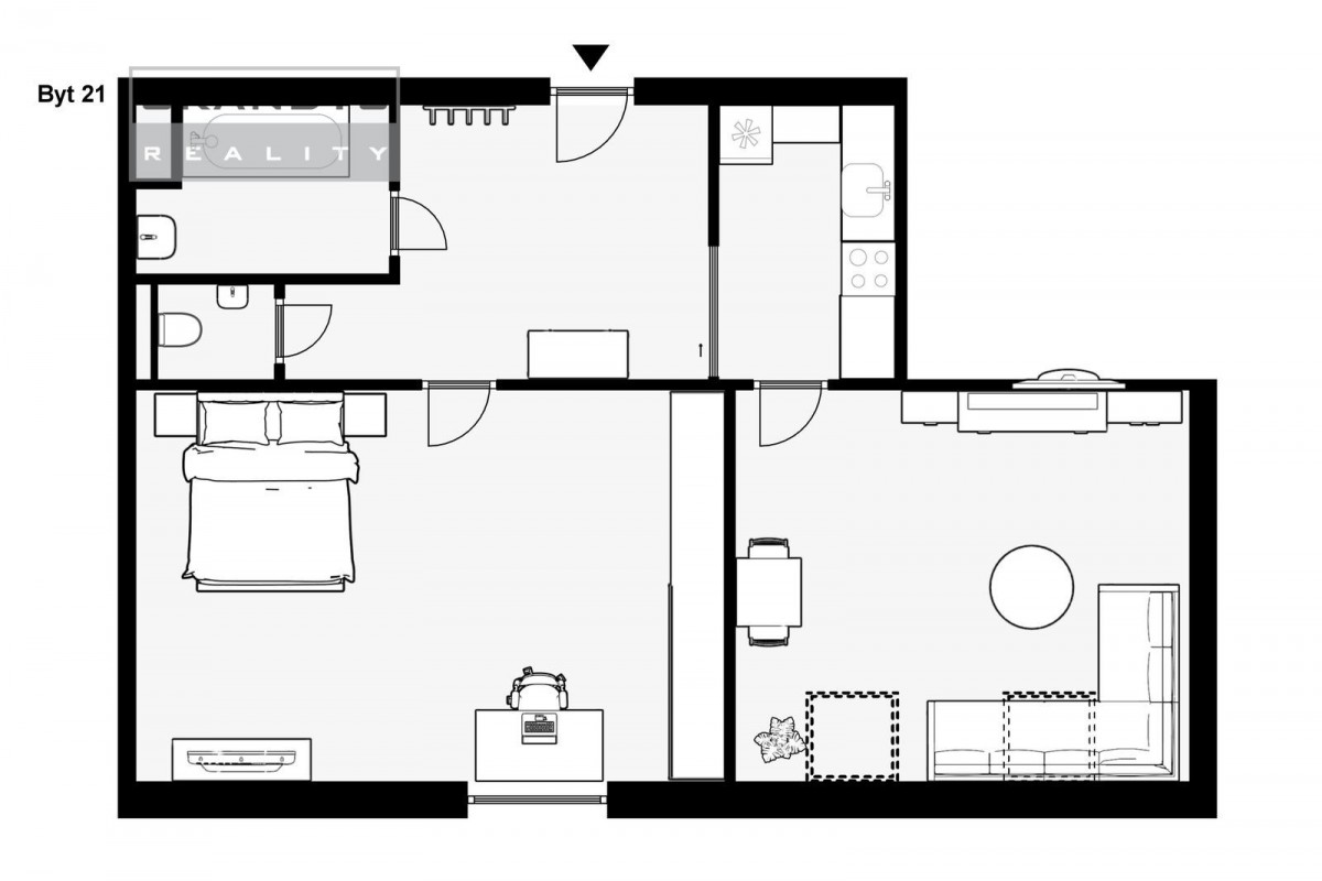
Prodej bytu 2+kk, 73 m2 - V Pitkovičkách 11, Praha (již není v nabídce)

Cena: 6 381 000 Kč
Stav:archiv
2+kk, 73 m2, cihlová, OV, 1. podlaží
Popis: Garantovaná hypotéka 2, 84 % p. a. . V exkluzivním zastoupení developera nabízíme ke koupi 2kk v novém projektu Pitkovický mlýn. Byt je orientovaný na západ, s okny do stráně. Dispozice se skládá ze dvou samostatných poko...jů, předsíně, kuchyně, koupelny a sociální zařízení WC. V budově je výtah i kolárna. Při předání budou hotové podlahy - plovoucí podlaha v pokojích, dlažba v kuchyni, předsíni i na toaletě a v koupelně. Dále do standardů patří interiérové dveře, vstupní dveře, sanita a elektroinstalace.

K jednotce lze zakoupit následující parkovací stání:
- 200. 000, - stání před budovou
- 280. 000, - v přízemí parkovacího domu
- 250. 000, - v prvním podlaží parkovacího domu
- 180. 000, - na nekryté střeše parkovacího domu

Možnost využít výhodného financování z fondu developera - garantovaný úrok 2, 84 % po dobu tří let. Měsíční splátka například 14. 000, - Kč místo 21. 000, - Kč. Pro více informací a zajištění financování nás kontaktujte.

Pitkovický Mlýn nabízí klidné bydlení v Praze. Přímo u domu začínají cyklostezky na Pitkovickou stráň, do Milíčovského lesa, až k Hostivařské přehradě a dále do Prahy. Nedaleko se nachází autobusová zastávka linky č. 213, vedoucí na =M= Háje (12 minut). Dále dojdete i do MŠ Pitkovice nebo k Pitkovickým rybníkům.
Kolaudace projektu je plánována do konce roku 2022.

Pro více informací, a případné domluvení, prohlídky nebo financování mě kontaktujte.
  • Vložení inzerátu:
    19.8.2022
  • Kód:
    0154
  • Typ nemovitosti:
    Byt
  • Typ budovy:
    Cihlová
  • Dispozice:
    2+kk
  • Vlastnictví:
    OV
  • Podlaží:
    1
  • Podlahová plocha:
    73 m2
  • Stav objektu:
    Novostavba
  • Rok výstavby:
    2020
  • Rok kolaudace:
    2020
  • Umístění objektu:
    Klidná část
  • Energetická náročnost:
    C - Úsporná
  • Podle vyhlášky:
    c. 148/2007 Sb
  • Nabídky v okolí:
  • Informace o obci:
    Obec Praha má 1257158 obyvatel, z toho 889974 v produktivním věku.
    V obci se nachází pošta.
    V obci se nachází škola, popř. školka.
    V obci se nachází zdravotní zařízení.
    V obci je rozvod kanalizace.
    V obci je rozvod městské vody.
    V obci je rozvod plynu.

Podobné nabídky v okolí

Lokalita: V Pitkovičkách 11, Praha, Česká republika V Pitkovičkách 11, Praha