• Sledovat cenu
  •  

Zasílání upozornění emailem:

Prodej bytu 2+kk, 72 m2 - Boleslavská, Praha

Cena: 11 520 000 Kč
Stav:Volný
2+kk, 72 m2, cihlová, OV, 7. podlaží
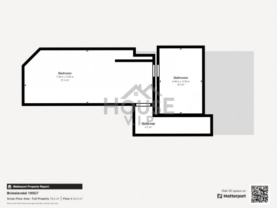
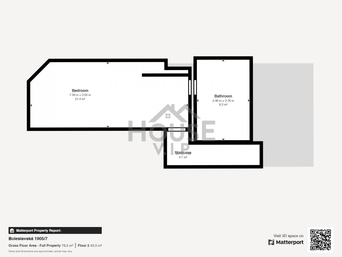
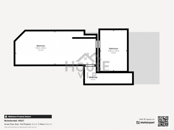
Popis: Nabízíme k prodeji prostorný a světlý mezonetový byt o dispozici 2+kk a výměře 72 m², situovaný v podkroví (7. NP (sedmé nadzemní patro) a 8. NP (osmé nadzemní patro)) zrekonstr...uovaného cihlového domu včetně výtahu. Byt je v osobním vlastnictví a nachází se v klidné a příjemné lokalitě s výbornou dostupností do centra města.

Dispozičně je byt rozdělen na dvě úrovně – ve spodním patře se nachází obývací pokoj s kuchyňským koutem, vstupní předsíň a samostatné sociální zařízení WC. Po dřevěných vnitřních schodech se dostaneme do dalšího patra, kde se nachází další pokoj, prostorná koupelna s vanou a druhým sociální zařízení WC s výhledem do vnitrobloku.

Prostor schodiště dodává interiéru vzdušný a prostorný nádech. Celý prostor se orientován od východu na západ což zaručuje dostatek světla po většinu dne i díky prosklenému vikýři v obývacím pokoji směrem na východ. Byt má instalovanou klimatizaci, která zpříjemní letní měsíce.

Příspěvky do fondu na činí 2. 500 Kč měsíčně, spotřeba elektrické energie cca 1. 500 Kč měsíčně. Společenství vlastníků jednotek funguje bez problémů a dobře se stará o celý dům. Byt se nachází v 7. patře s moderním výtahem Schindler.

Byt je umístěn v tradiční vinohradské zástavbě jen 5 minut chůze od OC Flóra a nabízí tak rychlé dopravní spojení i občanskou vybavenost.

Byt je ideální pro jednotlivce, páry nebo jako investice k pronájmu.
  • Vložení inzerátu:
    2.6.2025
  • Kód:
    00776
  • K dispozici od:
    0.0.0
  • Typ nemovitosti:
    Byt
  • Typ budovy:
    Cihlová
  • Dispozice:
    2+kk
  • Vlastnictví:
    OV
  • Podlaží:
    7
  • Podlahová plocha:
    72 m2
  • Stav objektu:
    Velmi dobrý
  • Umístění objektu:
    Centrum
  • Telekomunikace:
    Telefon, Internet, Satelit, Kabelová televize, Kabelové rozvody
  • Voda:
    dálkový vodovod
  • Elektřina:
    230 V
  • Doprava:
    silnice, dálnice, MHD, autobus, vlak
  • Topeni:
    ústřední plynové
  • Odpad:
    kanalizace
  • Energetická náročnost:
    D - Méne úsporná
  • Podle vyhlášky:
    c. 78/2013 Sb.
  • Ukazatel náročnosti:
    138 kWh/m2
  • Nabídky v okolí:
  • Informace o obci:
    Obec Praha má 1257158 obyvatel, z toho 889974 v produktivním věku.
    V obci se nachází pošta.
    V obci se nachází škola, popř. školka.
    V obci se nachází zdravotní zařízení.
    V obci je rozvod kanalizace.
    V obci je rozvod městské vody.
    V obci je rozvod plynu.
Lokalita: Boleslavská , Praha, Česká republika Boleslavská, Praha

Kontakt

Zuzana Pejková


Podobné nabídky v okolí


Volná pracovní místa ExpertPrace.cz
  • Objednání prohlídky a více informací
  •  
  • Poslat na e-mail
  •  

Zasílání odkazu na realitu emailem: