Prodej bytu 2+kk, 70 m2 - Tomkova, Praha 1, Smíchov, Praha (již není v nabídce)
2+kk, 70 m2, OV, 3. podlaží
Popis:
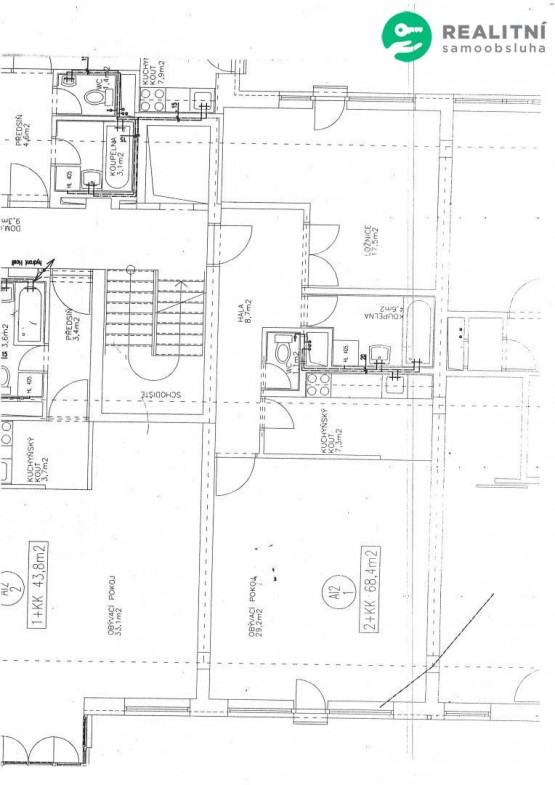
Nabízíme k prodeji byt 2+kk, 70, 12 m2/2 krát francouzské okno, 3. NP (třetí nadzemní patro), sklep - 2. PP, garážové stání - 2. PP, v exkluzivní lokalitě Pr...ahy 5 Nikolajka. Byt. jednotka je orientovaná na východ a západ s výhledy do zahrádkářské kolonie a vnitrobloku domu. Okolí plné zeleně zajišťuje příjemné a poklidné bydlení v dochozí vzdálenosti cca 30 min od Karlova mostu. Objekt je v těsné blízkosti sportovního areálu Mrázovka s tenisovými a beach volejbalovými kurty, běžeckým okruhem a venkovní posilovnou. Byt je vzdálen cca 5 min chůze od stanice metra Anděl a autobusového nádraží Na Knížecí. Občanská vybavenost: lední stadion Nikolajka, Gymnázium Zatlanka, základní škola, školka, pošta, několik parků v dochozí vzdálenosti, v rezidenčním objektu je minimarket. Obývací pokoj 29, 18 m2, orientovaný na západ s výhledem do zahrádkářské kolonie, je spojený barovým pultem s kuchyňským koutem 7, 35 m2. Hala 8, 48 m2, toaleta 1, 11 m2, koupelna s vanou 4, 69 m2, ložnice 17, 16 m2 (orientována na východ s výhledem do velmi klidného vnitrobloku), zděný sklep 2, 15 m2 včetně bezpečnostních dveří. Na podlahách jsou dubové parketová podlaha, dlažba a plovoucí podlaha v ložnici. Vchodové dvěře jsou bezpečnostní, v ložnici je vestavěná skříň.
Parkovací stání v těsné blízkosti výtahu k bytové jednotce. Vytápění a ohřev vody je zajištěno lokání kotelnou v objektu. Vysokorychlostní internetové připojeníové připojení je zajištěno přes společnosti UPC a O2 . Poplatky za užívání bytu jsou velmi nízké. Sousedské vztahy jsou velice přátelské. Objekt byl vystavěn roku 1999, železobetonový skelet, 2. PP, 6. NP (šesté nadzemní patro). V ceně ja zahrnuto garážové stání v hodnotě 1. 000. 000, - CZK a sklepní kóje.
- Vložení inzerátu:
27.5.2020
- Kód:
RS306035
- Typ nemovitosti:
Byt
- Dispozice:
2+kk
- Vlastnictví:
OV
- Podlaží:
3
- Podlahová plocha:
70 m2
- Sklep:
Ano
- Stav objektu:
Velmi dobrý
- Bezbariérový byt:
Ano
- Topeni:
ústřední plynové
- Bezbariérový přístup:
Ano
- Energetická náročnost:
D - Méne úsporná
- Nabídky v okolí: