• Sledovat cenu
  •  

Zasílání upozornění emailem:

Prodej bytu 2+kk, 69 m2 - náměstí Sv. Vavřince, Horní Blatná, okr. Karlovy Vary (již není v nabídce)

Cena: 6 690 000 Kč
Stav:archiv
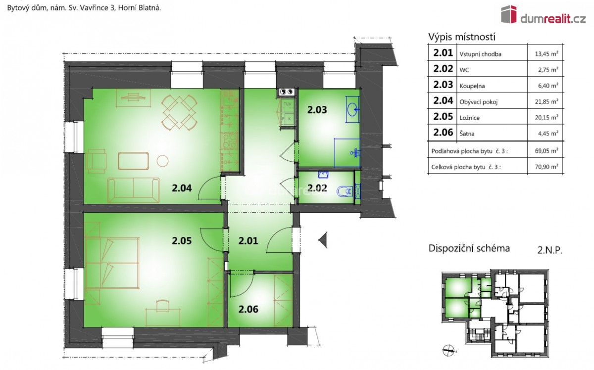
2+kk, 69 m2, cihlová, OV, 2. podlaží
Popis: Dumrealit. cz Vám nabízí prodej apartmánů na náměstí Sv. Vavřince v Horní Blatné, které se nachází v blízkosti několika lyžařských areálů jako je Plešivec, Potůčky nebo Klínovec. Apartmán číslo 3. se nachází v prvním pat...ře, je o velikosti 69 m² s orientací na jižní stranu a s výhledem do přírody. Dispozice bytu 2+KK. Všechny apartmány jsou vybaveny sanitární keramikou v koupelnách, sprchovým koutem Walk - in, podlahovou krytinou a to v kombinaci velkoformátové dlažby a plovoucí podlahy v dekoru dřeva, obložkami, interiérovými a vstupními dveřmi a kompletní přípravou na osazení kuchyňské linky. Ke každému apartmánu patří jedno soukromé parkovací místo hned u domu a jedna sklepní kóje, vše je již započítáno v uvedené ceně. Součástí jsou také nádherné společné prostory a to včetně sklepního prostoru s možností posezení. Vytápění apartmánů je elektrické s dálkovým ovládáním s připojením na Wi - Fi. V apartmánovém domě se nachází 12 jednotek od 1+KK až po 3+KK různých podlahových výměr. Dva apartmány jsou v rezervaci. Dům je po kompletní rekonstrukci a je pouze na Vás jaký apartmán si vyberete. Nemovitost se nachází přímo na náměstí s výhledem na hory a kostel Sv. Vavřince. Koupě apartmánu je ideální také jako investice, kdy jsou Krušné hory celoročně navštěvovány turisty a Horní Blatná patří svým umístěním mezi nejvíce vyhledávané. V blízkosti apartmánu se nachází Blatenský vrch, Vlčí jámy a mnoho turistických a cyklo tras. Doporučuji nezávaznou prohlídku objektu s možností vybrat si právě ten VÁŠ apartmán. Ev. číslo: 649379. Energetický štítek: G
  • Vložení inzerátu:
    16.4.2025
  • Kód:
    3974270
  • Typ nemovitosti:
    Byt
  • Typ budovy:
    Cihlová
  • Dispozice:
    2+kk
  • Vlastnictví:
    OV
  • Podlaží:
    2
  • Podlahová plocha:
    69 m2
  • Sklep:
    Ano
  • Stav objektu:
    Po rekonstrukci
  • Energetická náročnost:
    G - Mimořádne nehospodárná
  • Nabídky v okolí:
  • Informace o obci:
    Obec Horní Blatná má 608 obyvatel, z toho 462 v produktivním věku.
    V obci se nachází pošta.
    V obci se nachází zdravotní zařízení.
    V obci je rozvod městské vody.
    V obci je rozvod plynu.

Podobné nabídky v okolí

Lokalita: náměstí Sv. Vavřince , Horní Blatná, okres Karlovy Vary, Česká republika náměstí Sv. Vavřince, Horní Blatná, okr. Karlovy Vary