• Sledovat cenu
  •  

Zasílání upozornění emailem:

Prodej bytu 2+kk, 66 m2 - Masarykova, Rudná, okr. Praha-západ (již není v nabídce)

Cena: 5 300 000 Kč
Stav:archiv
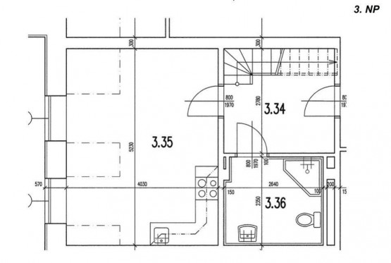
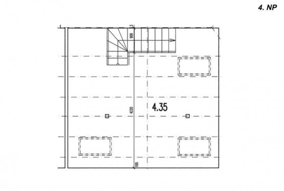
2+kk, 66 m2, cihlová, OV, 3. podlaží
Popis: PRODÁNO - Moderní atypický mezonetový byt 2+kk s celkovou plochou 66 m2 nacházející se ve 2. a 3. patře bytového domu včetně výtahu, na ulici Masarykova, v Rudné..., pouhých 8 min od Prahy.

Dispozici bytu tvoří ve spodním patře prostorná vstupní hala, obývací pokoj s kuchyňským a jídelním koutem a koupelna s rohovou vanou, sociální zařízení WC a pračkou se sušičkou. V podkroví se nachází ložnice s pracovnou. V obou patrech je dostatek úložných prostor, nábytek byl vyrobený na míru. Podlahy plovoucí a dlažba, okna a interiérové schody jsou dřevěné. Dům má novou zateplenou fasádu, kamerové zabezpečení, vstup na čip, rezidentům je k dispozici společná kolárna a také venkovní vyhrazené parkování u domu.

Lokalita s kompletní občanskou vybaveností, v místě ZŠ, MŠ, pošta, městský úřad, knihovna, domov důchodců, Lidl, přímo v přízemí domu obchod s potravinami, přes ulici sport a wellness klub, dále tenisové a beachvolebalové kurty. Rychlým železniční i silniční spojení do centra Prahy, zastávka autobusu se nachází před domem. Nedaleko Rudné je přírodní chráněná krajinná oblast Křivoklátska a Českého Krasu. PENB - C ID nemovitosti MDO0512 - 0002.
  • Vložení inzerátu:
    28.10.2022
  • Kód:
    MDO0512-0002
  • Typ nemovitosti:
    Byt
  • Typ budovy:
    Cihlová
  • Dispozice:
    2+kk
  • Vlastnictví:
    OV
  • Podlaží:
    3
  • Podlahová plocha:
    66 m2
  • Plocha parcely:
    66 m2
  • Stav objektu:
    Velmi dobrý
  • Bezbariérový byt:
    Ano
  • Zařízený:
    Ano
  • Bezbariérový přístup:
    Ano
  • Energetická náročnost:
    C - Úsporná
  • Nabídky v okolí:
  • Informace o obci:
    Obec Rudná má 4625 obyvatel, z toho 3136 v produktivním věku.
    V obci se nachází pošta.
    V obci se nachází škola, popř. školka.
    V obci se nachází zdravotní zařízení.
    V obci je rozvod kanalizace.
    V obci je rozvod městské vody.
    V obci je rozvod plynu.

Podobné nabídky v okolí

Lokalita: Masarykova , Rudná, okres Praha-západ, Česká republika Masarykova, Rudná, okr. Praha-západ