• Sledovat cenu
  •  

Zasílání upozornění emailem:

Prodej bytu 2+kk, 66 m2 - Pitterova 1, Praha (již není v nabídce)

Cena: 7 500 000 Kč
Stav:archiv
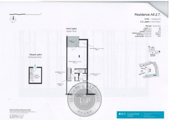
2+kk, 66 m2, skeletová, OV, 3. podlaží
Popis: Nabízíme k prodeji pěkný prostorný byt dispozice 2+kk o celkové užitné ploše 66m2 v moderní novostavbě Central Park Praha. Byt. jednotka je situovaná v 2NP (druhé nad...zemní patro) a 3NP (třetí nadzemní patro). V nižším podlaží se nachází předsíň s velkou vestavěnou dřevěnou skříní o velikosti 10m2, vyšší podlaží spojeno dřevěným schodištěm s dispozicí obývacího pokoje, ložnice, samostatné toalety a koupelny s vanou přístupné z ložnice. Vnitřní vybavení bytu ve vyšším standardu ( obklady, dlažba, sanita, dřevěné podlahy a okna, schodiště, podlahové vytápění ), kuchyň kompletně zařízena elektrospotřebiči ( varná deska, mikrovlna trouba, myčka, lednice ). Součástí bytu je rovněž terasa o celkové ploše 14m2opatřena venkovními žaluziemi. K bytu dále náleží parkovací staní v podzemním podlaží. Byt se prodává včetně vybavení a zařízení. Celý rezidenční areál monitorován systémem kamer, vstup do vlastního objektu, podzemních garáží a parku pouze pro rezidenty, respektive prostřednictvím bezpečnostního čipu, ostraha a recepce k dispozici 24hodin. V místě veškerá občanská vybavenost, výborná dopravní dostupnost, centrum v dosahu 15min. MHD. Byt vhodný i jako investice . Energetická třída budovy C. Financování zajistíme. Cena uvedena včetně provize RK.
  • Vložení inzerátu:
    24.10.2019
  • Kód:
    00331
  • K dispozici od:
    0.0.0
  • Typ nemovitosti:
    Byt
  • Typ budovy:
    Skeletová
  • Dispozice:
    2+kk
  • Vlastnictví:
    OV
  • Podlaží:
    3
  • Podlahová plocha:
    66 m2
  • Terasa:
    10 m2
  • Stav objektu:
    Novostavba
  • Rok výstavby:
    2009
  • Rok kolaudace:
    2009
  • Bezbariérový byt:
    Ano
  • Telekomunikace:
    Internet, Kabelové rozvody
  • Voda:
    dálkový vodovod
  • Elektřina:
    230 V
  • Doprava:
    silnice, MHD
  • Topeni:
    ústřední dálkové
  • Odpad:
    kanalizace
  • Komunikace:
    asfaltová
  • Zařízený:
    Ano
  • Bezbariérový přístup:
    Ano
  • Energetická náročnost:
    C - Úsporná
  • Podle vyhlášky:
    c. 148/2007 Sb
  • Ukazatel náročnosti:
    98 kWh/m2
  • Nabídky v okolí:
  • Informace o obci:
    Obec Praha má 1257158 obyvatel, z toho 889974 v produktivním věku.
    V obci se nachází pošta.
    V obci se nachází škola, popř. školka.
    V obci se nachází zdravotní zařízení.
    V obci je rozvod kanalizace.
    V obci je rozvod městské vody.
    V obci je rozvod plynu.

Podobné nabídky v okolí

Lokalita: Pitterova 1, Praha, Česká republika Pitterova 1, Praha