• Sledovat cenu
  •  

Zasílání upozornění emailem:

Prodej bytu 2+kk, 62 m2 - Barvířova 519, Jílové u Prahy, okr. Praha-západ (již není v nabídce)

Cena: 5 162 000 Kč
Stav:archiv
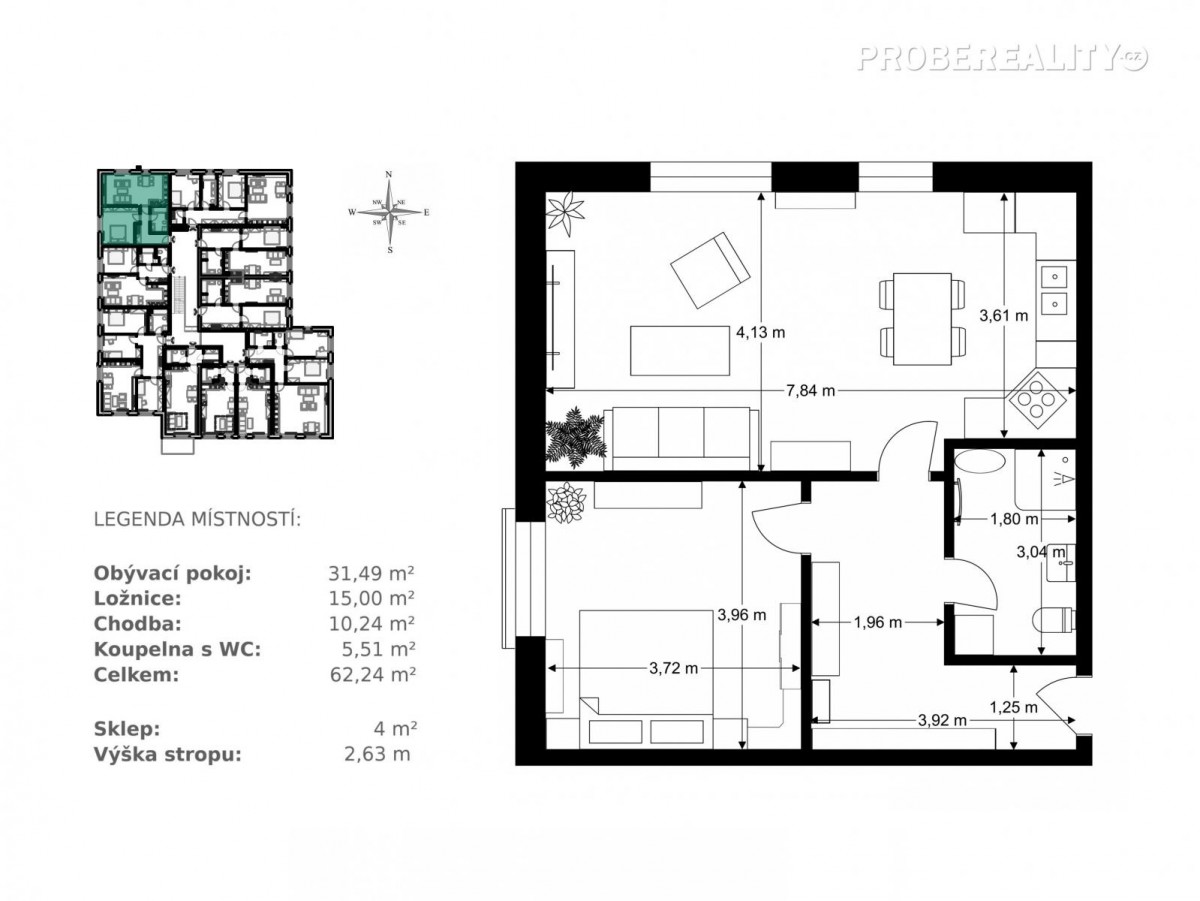
2+kk, 62 m2, cihlová, OV, 2. podlaží
Popis: Hledáte moderní bydlení v klidném prostředí blízko přírody, a přitom v dosahu hlavního města? Představujeme vám nový byt 2+kk o výměře 62, 24 m2 nacházející se v 1. ...patře novostavby zkolaudované v prosinci 2023, situované v ulici Barvířova na okraji Jílového u Prahy.

Interiér a vybavení
Byt je navržen s důrazem na kvalitní provedení:
Podlahy: Keramická dlažba v chodbě a koupelně a interiérové dveře od Siko, vše s dekorem dřeva. V pokojích plovoucí laminátové podlahy Parador.
Koupelna: Keramické obklady Siko, sprchový kout značky Hüppe, vodovodní baterie Grohe a sanitární keramika Geberit.
Okna: Prémiová okna Schüco s trojsklem s výbornými tepelně - izolačními vlastnostmi.
Topení a ohřev vody: Podlahové vytápění Rehau ovládané pro každý pokoj samostatně, zajišťované elektrokotlem Protherm. Ohřev teplé vody je řešen elektrickým bojlerem Ariston.

Byt je zcela nový a připraven na instalaci kuchyňské linky dle vašich představ.

Příslušenství a parkování
Sklep: Součástí bytu je sklep o ploše 4 m2.
Parkování: K dispozici je venkovní parkovací stání v uzavřeném areálu.
Další vybavení: V přízemí budovy se nachází praktická kolárna.

Lokalita
Jílové u Prahy je ideálním místem pro klidné bydlení s kompletní občanskou vybaveností:
Služby: Mateřská a základní škola, praktičtí lékaři a městská knihovna.
Nákupy: Supermarkety Billa, Norma a Plus Market v místě.
Doprava: Pražská integrovaná doprava zajišťuje celodenní spojení s hlavním městem.

Byt je volný ihned.
Pro více informací mě neváhejte kontaktovat.
  • Vložení inzerátu:
    25.11.2024
  • Kód:
    467
  • Typ nemovitosti:
    Byt
  • Typ budovy:
    Cihlová
  • Dispozice:
    2+kk
  • Vlastnictví:
    OV
  • Podlaží:
    2
  • Podlahová plocha:
    62 m2
  • Sklep:
    4 m2
  • Stav objektu:
    Novostavba
  • Bezbariérový byt:
    Ano
  • Telekomunikace:
    Internet
  • Voda:
    dálkový vodovod
  • Elektřina:
    230 V
  • Doprava:
    MHD
  • Odpad:
    kanalizace
  • Bezbariérový přístup:
    Ano
  • Energetická náročnost:
    B - Velmi úsporná
  • Podle vyhlášky:
    c. 78/2013 Sb.
  • Nabídky v okolí:
  • Informace o obci:
    Obec Jílové u Prahy má 4239 obyvatel, z toho 2976 v produktivním věku.
    V obci se nachází pošta.
    V obci se nachází škola, popř. školka.
    V obci se nachází zdravotní zařízení.
    V obci je rozvod kanalizace.
    V obci je rozvod městské vody.
    V obci je rozvod plynu.

Podobné nabídky v okolí

Lokalita: Barvířova 519, Jílové u Prahy, okres Praha-západ, Česká republika Barvířova 519, Jílové u Prahy, okr. Praha-západ