• Sledovat cenu
  •  

Zasílání upozornění emailem:

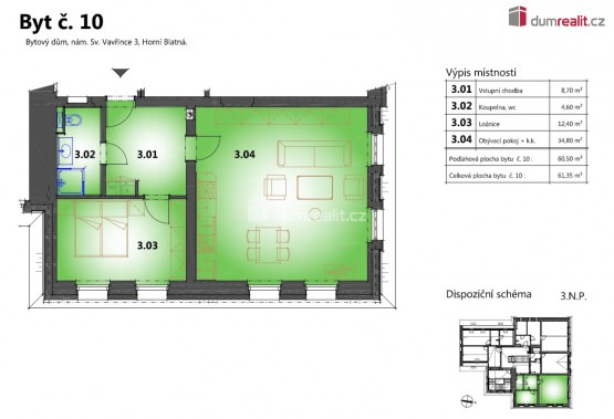
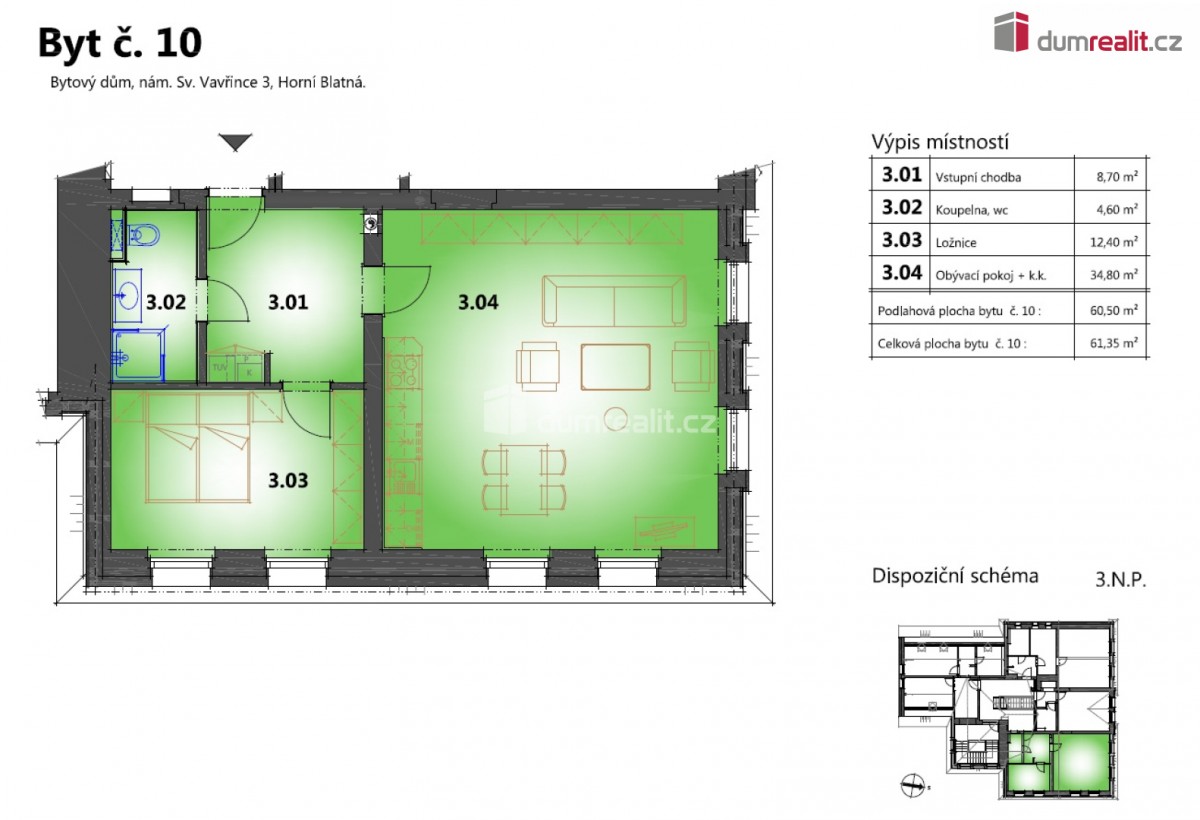
Prodej bytu 2+kk, 60 m2 - náměstí Sv. Vavřince, Horní Blatná, okr. Karlovy Vary

Cena: 5 175 000 Kč
Stav:Volný
2+kk, 60 m2, cihlová, OV, 3. podlaží
Popis: Dumrealit. cz Vám nabízí prodej apartmánů na náměstí Sv. Vavřince v Horní Blatné, které se nachází v blízkosti několika lyžařských areálů jako je Plešivec, Potůčky nebo Klínovec. Apartmán číslo 10. se nachází v druhém pa...tře, je o velikosti 60, 5 m² s výhledem na náměstí a kostel Sv. Vavřince. Dispozice bytu 2+KK. Všechny apartmány jsou vybaveny sanitární keramikou v koupelnách, sprchovým koutem Walk - in, podlahovou krytinou a to v kombinaci velkoformátové dlažby a plovoucí podlahy v dekoru dřeva, obložkami, interiérovými a vstupními dveřmi. Nad rámec uvedené ceny je u tohoto apartmánu kuchyňská linka s jídelním stolem a zařízení obývacího pokoje. Součástí jsou také nádherné společné prostory a to včetně sklepního prostoru s možností posezení. Vytápění apartmánů je elektrické s dálkovým ovládáním s připojením na Wi - Fi. V apartmánovém domě se nachází 12 jednotek od 1+KK až po 3+KK různých podlahových výměr. Ke každému apartmánu patří jedno soukromé parkovací místo hned u domu a jedna sklepní kóje, vše je již započítáno v uvedené ceně. Několik apartmánů je již prodáno. Izolant obvodových stěn 16 - 18cm polystyrenové dílce a 28cm minerální vlna v podkrovní části domu. Nemovitost se nachází přímo na náměstí s výhledem na hory a kostel Sv. Vavřince. Koupě apartmánu je ideální také jako investice, kdy jsou Krušné hory celoročně navštěvovány turisty a Horní Blatná patří svým umístěním mezi nejvíce vyhledávané. V blízkosti apartmánu se nachází Blatenský vrch, Vlčí jámy a mnoho turistických a cyklo tras. Nemovitost s možností odpočtu DPH z uvedené kupní ceny. Doporučuji nezávaznou prohlídku objektu s možností vybrat si právě ten VÁŠ apartmán. Ev. číslo: 651559. Energetický štítek: F
  • Vložení inzerátu:
    18.6.2025
  • Kód:
    3985700
  • Typ nemovitosti:
    Byt
  • Typ budovy:
    Cihlová
  • Dispozice:
    2+kk
  • Vlastnictví:
    OV
  • Podlaží:
    3
  • Podlahová plocha:
    60 m2
  • Sklep:
    Ano
  • Stav objektu:
    Velmi dobrý
  • Energetická náročnost:
    F - Velmi nehospodárná
  • Nabídky v okolí:
  • Informace o obci:
    Obec Horní Blatná má 608 obyvatel, z toho 462 v produktivním věku.
    V obci se nachází pošta.
    V obci se nachází zdravotní zařízení.
    V obci je rozvod městské vody.
    V obci je rozvod plynu.
Lokalita: náměstí Sv. Vavřince , Horní Blatná, okres Karlovy Vary, Česká republika náměstí Sv. Vavřince, Horní Blatná, okr. Karlovy Vary

Kontakt

Martina Filipová


Podobné nabídky v okolí


  • Objednání prohlídky a více informací
  •  
  • Poslat na e-mail
  •  

Zasílání odkazu na realitu emailem: