• Sledovat cenu
  •  

Zasílání upozornění emailem:

Prodej bytu 2+kk, 60 m2 - Harrachov , okr. Semily

Cena: 7 990 000 Kč
Stav:Volný
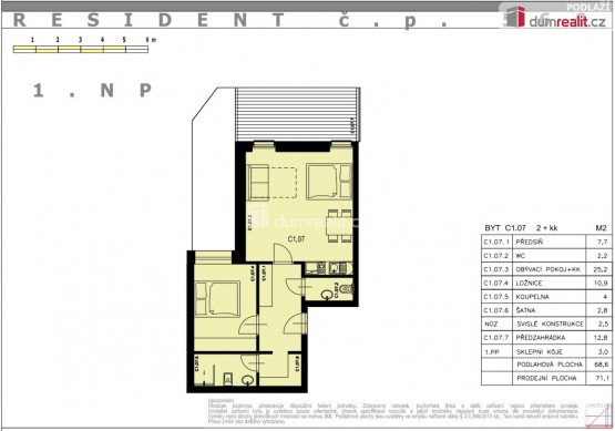
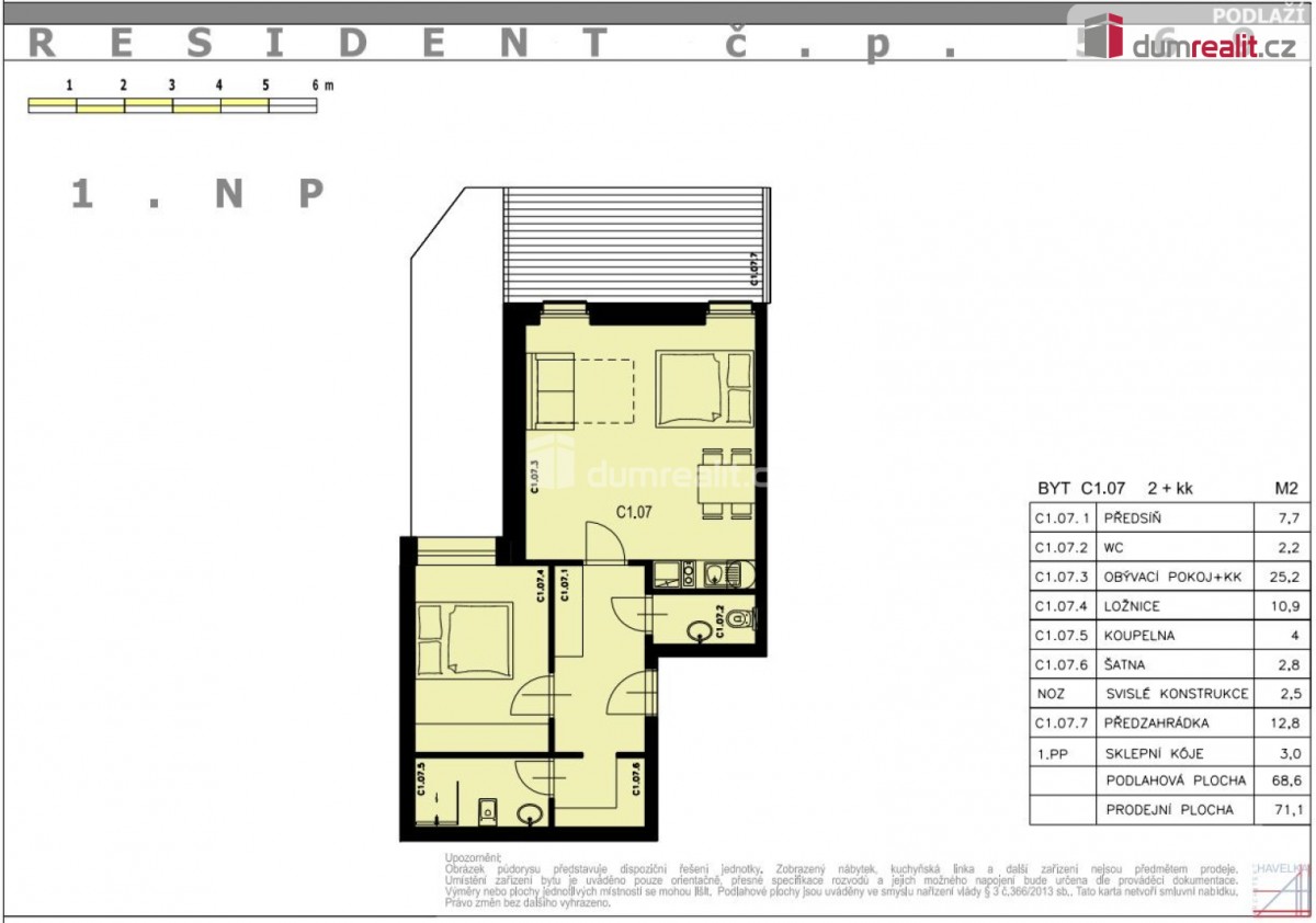
2+kk, 60 m2, skeletová, OV, 1. podlaží
Popis: Včetně parkovacího stání, vybavení a zařízení apartmánu. . prodej nadstandardního horského apartmánu o dispozici 2+kk s vlastní předzahrádkou (6 m²) v prestižním a vyhledávané...m areálu Resident Harrachov. Apartmán se nachází v klidné části resortu s moc hezkým výhledem na okolní hory.

Dispozice a vybavení:

Obývací pokoj s moderním kuchyňským koutem včetně vestavěných spotřebičů

Koupelna po kompletní modernizaci

Podlahové vytápění

Sklepní kóje (3 m²)

Vlastní parkovací stání v uzavřeném areálu

Předzahrádka nabízí ideální prostor k relaxaci po dni stráveném v přírodě.

Wellness & služby:
Majitelé apartmánu mají přímý vstup do dvoupodlažního Grotta Spa – luxusního wellness centra s bazénem, saunou a relax zónou.

Lokalita:
Harrachov patří mezi nejatraktivnější horské destinace v ČR – ideální pro letní turistiku, cyklistiku, běžky i zimní sporty. V docházkové vzdálenosti najdete:

Ski areál

Bobovou dráhu

Hilby trail

Monkey Park pro děti

Přímý přístup na Jizerskou magistrálu

Investiční potenciál:
Atraktivní možnost krátkodobého pronájmu s vysokou obsazeností. V resortu je k dispozici snídaňový servis v samostatném prostoru v přízemí budovy.

Prohlídky možné i o víkendech. Rád vám zajistím nejvýhodnější financování hypotečním úvěrem dle aktuální nabídky na trhu.

Pro více informací mě neváhejte kontaktovat kdykoli.

Luxusní horské bydlení nebo výhodná investice – to vše v srdci Krkonoš! Ev. číslo: 651613. Energetický štítek: B (12 kWh/m2/rok).
  • Vložení inzerátu:
    17.12.2025
  • Kód:
    4020393
  • Typ nemovitosti:
    Byt
  • Typ budovy:
    Skeletová
  • Dispozice:
    2+kk
  • Vlastnictví:
    OV
  • Podlaží:
    1
  • Podlahová plocha:
    60 m2
  • Terasa:
    Ano
  • Stav objektu:
    Velmi dobrý
  • Zařízený:
    Ano
  • Energetická náročnost:
    B - Velmi úsporná
  • Ukazatel náročnosti:
    12 kWh/m2
  • Nabídky v okolí:
  • Informace o obci:
    Obec Harrachov má 1534 obyvatel, z toho 1113 v produktivním věku.
    V obci se nachází pošta.
    V obci se nachází škola, popř. školka.
    V obci se nachází zdravotní zařízení.
    V obci je rozvod kanalizace.
    V obci je rozvod městské vody.
    V obci je rozvod plynu.
Lokalita: Harrachov , okres Semily, Česká republika Harrachov , okr. Semily, Liberecký kraj

Kontakt

Vojtěch Hakl


Podobné nabídky v okolí


Volná pracovní místa ExpertPrace.cz
  • Objednání prohlídky a více informací
  •  
  • Poslat na e-mail
  •  

Zasílání odkazu na realitu emailem: