Prodej bytu 2+kk, 58 m2 - Jana Přibíka 953, Praha 9, Vysočany, Praha (již není v nabídce)
Cena:
9 900 000 Kč
Stav:archiv
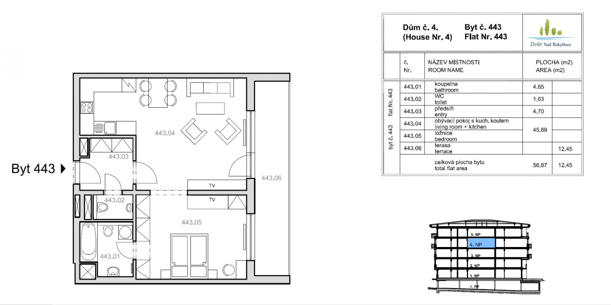
2+kk, 58 m2, skeletová, OV, 4. podlaží
Popis:
Nabízíme ke koupi světlý a prostorný byt 2+kk o ploše 58 m s velkou terasou 12 m, umístěný v klidné části Vysočan v ulici Jana Přibíka.
Byt se nachází v moderním a velice klid...ném domě, situovaném v uzavřeném areálu se závorou a 24hodinovou ostrahou. Ideální volba pro ty, kdo hledají bezpečné a pohodové bydlení v zeleni, s výbornou dostupností do centra.
K bytu náleží garážové stání a sklep, obojí je zahrnuto v ceně.
Lokalita a okolí:
Tramvajová zastávka Podkovárská 3 minuty chůze
V těsné blízkosti cyklostezka, park, sportovní a dětská hřiště
V okolí kompletní občanská vybavenost: obchody, restaurace, kavárny, školy, školky
Rychlé spojení do centra i na pražský okruh
Byt je ideální pro jednotlivce, páry i jako investice k pronájmu.
- Vložení inzerátu:
12.6.2025
- Kód:
15/7
- Typ nemovitosti:
Byt
- Typ budovy:
Skeletová
- Dispozice:
2+kk
- Vlastnictví:
OV
- Podlaží:
4
- Podlahová plocha:
58 m2
- Terasa:
12 m2
- Sklep:
Ano
- Stav objektu:
Velmi dobrý
- Bezbariérový byt:
Ano
- Odpad:
kanalizace
- Komunikace:
asfaltová
- Bezbariérový přístup:
Ano
- Energetická náročnost:
B - Velmi úsporná
- Nabídky v okolí: