• Sledovat cenu
  •  

Zasílání upozornění emailem:

Prodej bytu 2+kk, 58 m2 - Ponětovická, Brno, okr. Brno-město

Cena: 7 900 000 Kč
Stav:Volný
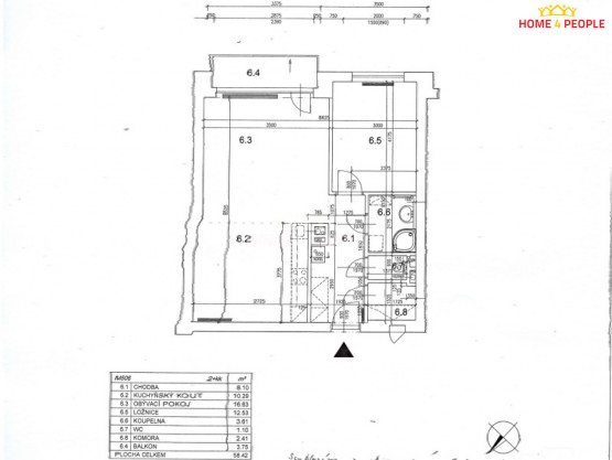
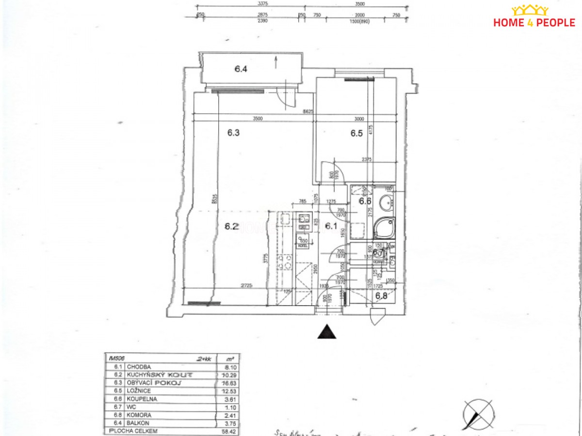
2+kk, 58 m2, cihlová, OV, 1. podlaží
Popis: Cena je včetně provize RK. Nabízíme k prodeji moderní, nezařízený byt 2+kk s balkonem v žádané městské části Brno – Slatina, ulice Ponětovická. Byt se nachází v 1. patře cih...lového domu a jeho celková plocha činí 58m².

Dispozice bytu zahrnuje světlý obývací pokoj s kuchyňským koutem, samostatnou ložnici, prostornou koupelnu a předsíň s vestavěnou skříní. Kuchyňská linka je vybavena vestavěnými spotřebiči – elektrická varná deska, trouba, lednice s mrazákem a myčka na nádobí.

Vytápění a ohřev teplé vody zajišťuje vlastní plynový kotel.

Byt je situován v klidné a příjemné lokalitě s kompletní občanskou vybaveností v docházkové vzdálenosti. Velkou výhodou je výborná dostupnost MHD do centra města i blízkost CT parku v Brněnské průmyslové zóně.

Měsíční poplatky spojené s užíváním bytu jsou 4500, - Kč.

Nemovitost je ideální jako investice na pronájem, tak i k vlastnímu bydlení.

Cena je 7 900 000, - Kč včetně provize RK.

Uvolnění nemovitosti je možné od 1. 5. 2026 Ev. číslo: 31731. Energetický štítek: B (2147 kWh/m2/rok).
  • Vložení inzerátu:
    1.4.2026
  • Kód:
    4186447
  • Typ nemovitosti:
    Byt
  • Typ budovy:
    Cihlová
  • Dispozice:
    2+kk
  • Vlastnictví:
    OV
  • Podlaží:
    1
  • Podlahová plocha:
    58 m2
  • Balkón:
    Ano
  • Stav objektu:
    Novostavba
  • Energetická náročnost:
    B - Velmi úsporná
  • Ukazatel náročnosti:
    2147 kWh/m2
  • Nabídky v okolí:
  • Informace o obci:
    Obec Brno má 371371 obyvatel, z toho 256490 v produktivním věku.
    V obci se nachází pošta.
    V obci se nachází škola, popř. školka.
    V obci se nachází zdravotní zařízení.
    V obci je rozvod kanalizace.
    V obci je rozvod městské vody.
    V obci je rozvod plynu.
Lokalita: Ponětovická , Brno, okres Brno-město, Česká republika Ponětovická, Brno, okr. Brno-město

Kontakt

Kancelář Pohořelice
Objednání prohlídky a více informací


Podobné nabídky v okolí


  • Objednání prohlídky a více informací
  •  
  • Poslat na e-mail
  •  

Zasílání odkazu na realitu emailem: