Prodej bytu 2+kk, 57 m2 - Zlochova 2193, Praha (již není v nabídce)
            
            
                
        Cena:
                        7 699 000 Kč
        
              Stav:archiv
        
         
          
          
                2+kk, 57 m2, cihlová, OV, 7. podlaží          
        
        Popis:
        
                                Výrazná SLEVA pouze do 15.  1.  2024! Původní cena 8 mil. 
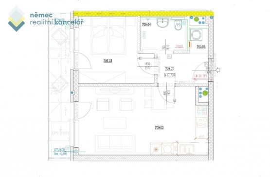
Prodej nadstandardního bytu 2+kk o celk.  ploše 60, 8 m² včetně terasy (8, 9 m²) a sklepní kóje (3, 9 m²) + krytého ga...rážového stání (21, 5 m²).  Jednotka o užitné ploše 48 m² bez terasy a příslušenství je umístěna v 7. NP (sedmé nadzemní patro) úspěšného rezidenčního projektu U cukrovaru (Rarach) z roku 2017 od Skansky. 
Moderní byt je zcela výjimečný díky svým velkoformátovým oknům prosvětlujícím celý interiér a terasou na západ přístupnou z obou pokojů. 
Dominantou prostorného obývacího pokoje je moderní bílá rohová kuchyňská linka na míru s ostrůvkem včetně vestavných spotřebičů (indukční varná deska a horkovzdušná trouba Bosh,  digestoř,  myčka Electrolux,  kombinovaná lednice s mrazákem AEG). 
Obývací pokoj nabízí dostatek místa pro velkou sedací soupravu,  TV sestavu,  ale i pracovní stůl nebo dětský koutek. 
Samostatnou kapitolou je pak světlá ložnice,  která je navržena pro umístění dvojlůžka,  velké dvoukřídlé šatní skříně i pracovního stolu či dětské postýlky. 
Buďme ale upřímní,  nejvíce času byste stejně trávili na velké a částečně kryté a zasklené terase s venkovními roletami. 
Z předsíně lze vstoupit do praktické komory s pračkou a úložným prostorem,  anebo do prostorné koupelny s walk - in sprchovým koutem a závěsným sociální zařízení WC. 
Díky podlahové ploše nebude tahle jednotka malá ani mladé rodině,  ale potěší zejména náročný pár hledající ojedinělou dispozici a stylové bydlení na úrovni. 
V bytovém komplexu najdete kolárnu a místnost pro mytí kol,  které mohou při nepříznivém počasí využívat maminky s kočárky a majitelé psů.  Užívat můžete i komunitní terasu.  V prostranství mezi bytovými domy vytvořili architekti Görner a Legner 18 výtvarných realizací,  dále instalovali komunitní zahrádky,  venkovní šachy,  divadelní scénu,  vodní dětské hřiště či piknikové místo a prostor pro míčové hry. 
Modřany,  to je město ve městě.  Centrum „starých“ Modřan připomíná náměstí malé,  ale živé obce.  Supermarket,  kino,  cukrárna,  pizzerie,  železářství,  vlaková zastávka,  na kopci kostel. . .  Jen pár kroků od projektu poklidně plyne řeka Vltava,  podél jejíhož toku můžete dojít k soutoku
s Berounkou.  Bydlení U cukrovaru se nachází pouhých pár set metrů od tohoto „centra“,  na okraji poklidné vilové čtvrti. 
Mimořádně příjemné místo pro život nabízí klid a pocit zázemí,  ale zároveň je ideální jak pro cesty do pulzujícího centra Prahy,  tak opačným směrem – do přírody. 
U domu máte hned čtyři komfortní způsoby cestování MHD  -  tramvaj podél řeky na Karlovo náměstí,  několik autobusových zastávek přímo u projektu s napojením na budoucí metro D,  blízkost vlakové zastávky či přívozu v rámci PID. 
Pro milovníky procházek a sportu je tu jedna z nejatraktivnějších pražských cyklostezek.  Příznivci golfu či tenisu mohou každou volnou chvilku trávit na nedalekých hřištích a kurtech.  Všichni,  kteří mají rádi přírodu,  pak v každé roční době ocení půvaby Modřanské rokle. 
A další infrastruktura? Zdravotní péči nabídne Poliklinika Modřany,  kulturní zážitky Modřanský biograf. 
            
            
    - Vložení inzerátu:
28.5.2023 
     - Kód:
0988 
         - Typ nemovitosti:
Byt 
 
            - Typ budovy:
Cihlová 
     
            - Dispozice:
2+kk 
     
    - Vlastnictví:
OV 
     - Podlaží:
7 
     
    
            - Podlahová plocha:
57 m2
             
                            - Terasa:
9 m2 
                 - Sklep:
4 m2
     
            - Stav objektu:
Novostavba 
         - Rok výstavby:
2017 
     - Rok kolaudace:
2017 
     
                        
            - Umístění objektu:
Klidná část 
         
    - Telekomunikace:
Telefon, Internet, Kabelové rozvody 
     - Voda:
dálkový vodovod 
     - Elektřina:
230 V 
     - Doprava:
silnice, dálnice, MHD, autobus, vlak 
 
    - Topeni:
ústřední dálkové 
     - Plyn:
plynovod 
     - Odpad:
kanalizace 
     - Komunikace:
asfaltová 
 
    - Zařízený:
Ano 
         
    - Energetická náročnost:
B - Velmi úsporná 
         
    - Nabídky v okolí:
 
- Informace o obci:
Obec Praha má 1257158 obyvatel, z toho 889974 v produktivním věku.
V obci se nachází pošta.
V obci se nachází škola, popř. školka.
V obci se nachází zdravotní zařízení.
V obci je rozvod kanalizace.
V obci je rozvod městské vody.
V obci je rozvod plynu.
 
 
            
         
     
        
            Lokalita:
            
                Zlochova 2193, Praha, Česká republika
                
                                                                
                                                                                                                                                                                                                                                                                            Zlochova 2193, Praha