• Sledovat cenu
  •  

Zasílání upozornění emailem:

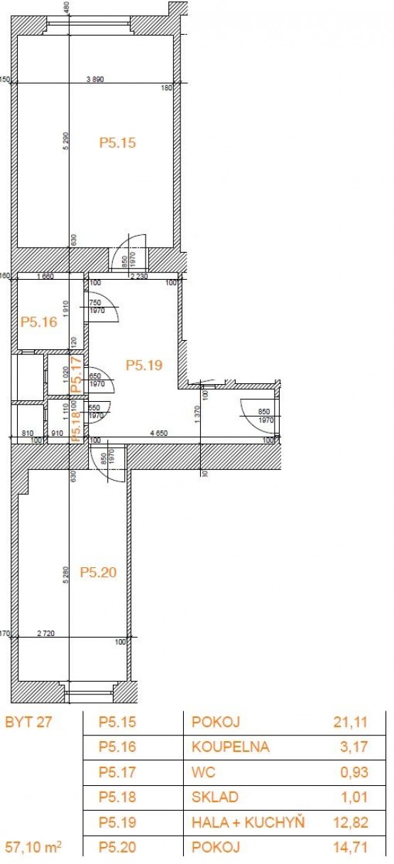
Prodej bytu 2+kk, 57 m2 - U Pernštejnských 1380, Praha 4, Nusle, Praha (již není v nabídce)

Cena: 4 900 000 Kč
Stav:archiv
2+kk, 57 m2, cihlová, OV, 5. podlaží
Popis: Prodej příjemného bytu 2+kk o výměře 57, 10 m2 v 5. nadzemním podlaží tichého, udržovaného domu včetně výtahu v Praze 4 - Nuslích, ul. U Pernštejnských. Byt je ...vytápěn centrálním ústředním topením z plynové kotelny v domě a náleží k němu sklepní box v suterénu domu. Měsíční náklady činí 4. 713, - Kč (včetně FO 1. 713, - Kč). PENB - kategorie E. Jedná se o lokalitu s kompletní vybaveností a perfektní dostupností tramvajové dopravy, autobusu MHD i vlaku. Rádi Vám pomůžeme vyřídit hypoteční úvěr za nejvýhodnějších podmínek na trhu.
  • Vložení inzerátu:
    20.3.2020
  • Kód:
    AR44
  • Typ nemovitosti:
    Byt
  • Typ budovy:
    Cihlová
  • Dispozice:
    2+kk
  • Vlastnictví:
    OV
  • Podlaží:
    5
  • Podlahová plocha:
    57 m2
  • Stav objektu:
    Dobrý
  • Bezbariérový byt:
    Ano
  • Telekomunikace:
    Internet
  • Voda:
    dálkový vodovod
  • Elektřina:
    230 V
  • Doprava:
    silnice, MHD, autobus, vlak
  • Topeni:
    ústřední dálkové
  • Plyn:
    plynovod
  • Odpad:
    kanalizace
  • Bezbariérový přístup:
    Ano
  • Energetická náročnost:
    E - Nehospodárná
  • Nabídky v okolí:

Podobné nabídky v okolí

Lokalita: U Pernštejnských 1380, Praha 4, Nusle, Praha, Česká republika U Pernštejnských 1380, Praha 4, Nusle, Praha