• Sledovat cenu
  •  

Zasílání upozornění emailem:

Prodej bytu 2+kk, 57 m2 - Dvořákova 300, Jinočany, okr. Praha-západ (již není v nabídce)

Cena: 3 690 000 Kč
Stav:archiv
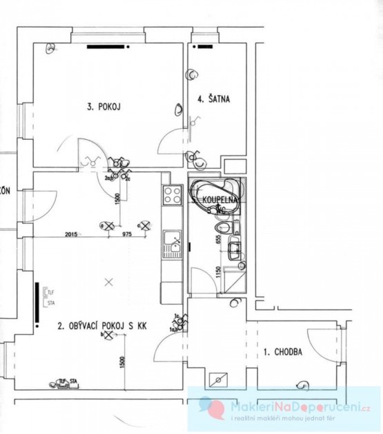
2+kk, 57 m2, cihlová, OV, 2. podlaží
Popis: Krásný slunný byt o dispozici 2+KK (57 m) s balkonem a šatnou, který se nachází v prvním patře novostavby z roku 2007. K tomuto slunnému bytu navíc náleží dvě parkovací stání před domem, odpadne vám tak každodenní starost ...s hledáním místa. Byt je vkusně a moderně zařízen, nejvíc oceníte samostatnou šatní místnost se vstupem z ložnice, nebo příjemný slunný balkon s orientací na jižní stranu. Přímo před domem je umístěná Mateřská škola a fotbalové hřiště s občerstvením. Na 400 metrů vzdáleném náměstíčku najdete Základní školu, dvě restaurace, kavárnu, večerku i lékárnu. Vše ostatní vám nabízí 8 minut autem vzdálená obchodní Metropole Zličín. Okna bytu směřují na jiho - východní a jiho - západní stranu. 450 metrů od domu se nachází zastávka Jinočany, Žižkova odkud jezdí autobus na konečnou metra B Zličín. Cesta zabere přesně 7 minut. O kousek dál, 800 metrů od domu najdete vlakovou zastávku Jinočany, ze které se dostanete za 18 minut skoro až do centra Prahy, na metro B Smíchov. Do 3 minut najedete autem také na D5 a Pražský okruh. Měsíční poplatky a zálohy na služby jsou jen 2080 Kč. Hledáte - li příjemný slunný byt na klidném místě za přijatelnou cenu, může být pro vás byt v Jinočanech, ve Dvořákově ulici, to pravé řešení. Součástí ceny je i veškeré vybavení bytu. Neváhejte mi zavolat a domluvit si prohlídku.
  • Vložení inzerátu:
    18.9.2018
  • Kód:
    MT942
  • Typ nemovitosti:
    Byt
  • Typ budovy:
    Cihlová
  • Dispozice:
    2+kk
  • Vlastnictví:
    OV
  • Podlaží:
    2
  • Podlahová plocha:
    57 m2
  • Stav objektu:
    Novostavba
  • Bezbariérový byt:
    Ano
  • Telekomunikace:
    Telefon, Internet
  • Voda:
    dálkový vodovod
  • Elektřina:
    230 V
  • Topeni:
    lokální plynové
  • Plyn:
    individuální
  • Odpad:
    kanalizace
  • Komunikace:
    asfaltová
  • Bezbariérový přístup:
    Ano
  • Energetická náročnost:
    C - Úsporná
  • Podle vyhlášky:
    c. 78/2013 Sb.
  • Ukazatel náročnosti:
    84 kWh/m2
  • Nabídky v okolí:
  • Informace o obci:
    Obec Jinočany má 1293 obyvatel, z toho 924 v produktivním věku.
    V obci se nachází pošta.
    V obci se nachází zdravotní zařízení.
    V obci je rozvod kanalizace.
    V obci je rozvod městské vody.
    V obci je rozvod plynu.

Podobné nabídky v okolí

Lokalita: Dvořákova 300, Jinočany, okres Praha-západ, Česká republika Dvořákova 300, Jinočany, okr. Praha-západ