Prodej bytu 2+kk, 55 m2 - Merhoutova, Praha 4, Kunratice, Praha (již není v nabídce)
Cena:
4 750 000 Kč
Stav:archiv
2+kk, 55 m2, cihlová, OV, 4. podlaží
Popis:
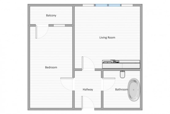
Nabízíme prostorný a světlý byt 2+kk/B, o výměře 55 m2 + sklep + garážové stání, v příjemné lokalitě Prahy 4 Kunratice. Byt se nachází ve 3. patře domu ve výborném ...stavu. Celková výměra bytu včetně balkonu činí 55 m2.
Byt má prostorný obývací pokoj s kuchyňským koutem - vybaven vestavěnými spotřebiči, prostornou ložnici s vestavěnými skříněmi a vstupem na balkon 3, 3 m2.
Koupelna s vanou, sociální zařízení WC v koupelně, na podlahách jsou plovoucí podlahy v obou pokojích, v předsíni a koupelně dlažba, okna plastová.
K bytu náleží sklep a garážové stání.
Veškerá občanská vybavenost v blízkém okolí (MŠ, ZŠ, Thomayerova nemocnice, IKEM), přímo v areálu se nachází restaurace, drobné obchody, potraviny.
Tento byt je jako stvořený pro milovníky přírody, sportu, klidná lokalita na dosah přírody s výbornou dostupností do centra, BUS na metro Kačerov cca. 8 min.
Krásný Kunratický les v přímém dosahu jak ke sportu, tak k relaxaci, dětská hřiště, sportoviště atd.
Byt je taktéž dobrou investicí za účelem pronájmu - velice žádaná lokalita.
Osobní vlastnictví s možností financování hypotečním úvěrem, který za Vás rádi vyřídíme. Ukazatel energetické náročnosti: C.
- Vložení inzerátu:
7.10.2019
- Kód:
69026
- Typ nemovitosti:
Byt
- Typ budovy:
Cihlová
- Dispozice:
2+kk
- Vlastnictví:
OV
- Podlaží:
4
- Podlahová plocha:
55 m2
- Balkón:
Ano
- Sklep:
Ano
- Stav objektu:
Velmi dobrý
- Bezbariérový byt:
Ano
- Bezbariérový přístup:
Ano
- Energetická náročnost:
C - Úsporná
- Nabídky v okolí: