Prodej bytu 2+kk, 52 m2 - Choceradská 3041, Praha 4, Záběhlice, Praha (již není v nabídce)
Cena:
4 990 000 Kč
Stav:archiv
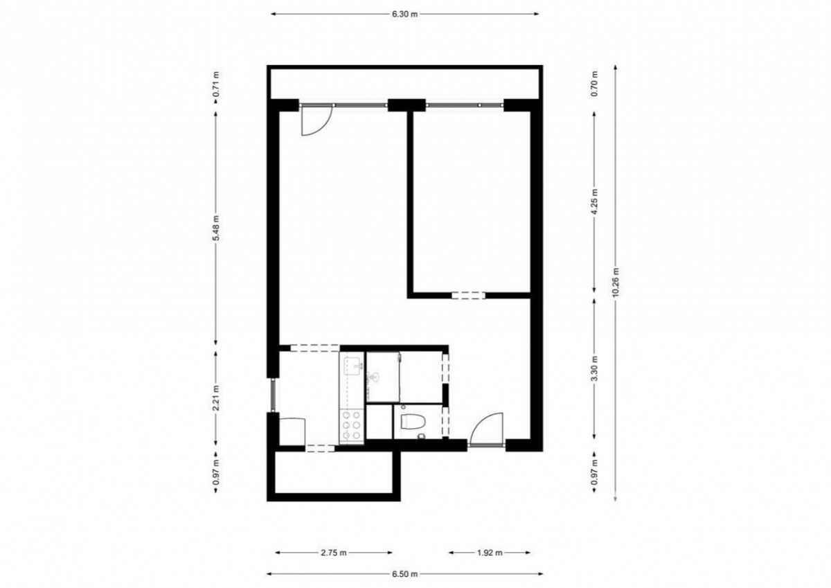
2+kk, 52 m2, panelová, OV, 9. podlaží
Popis:
Pokud hledáte byt v zajímavé lokalitě a máte chuť si ho předělat dle svých představ, pak zpozorněte.
Představujeme Vám k prodeji byt 2+kk ( 52 m2 ) ve vyhledávané l...okalitě Praha - Záběhlice.
Byt je umístěn v 9. patře 11 - ti patrového panelového domu včetně výtahu.
Interiér tvoří vstupní hala, ložnice, kuchyň s výhledem propojená s obývacím pokojem se vstupem do prostorné lodžie, koupelna se sprchovým koutem a samostatné sociální zařízení WC.
K bytu náleží sklep a zcela jistě uvítáte 2 spíže, z nichž jedna se nachází mimo jednotku.
Budova prošla kompletní rekonstrukcí včetně výtahů a o Vaši bezpečnost se stará systém pro vstup do domu pomocí čipů.
Pokud Vás byt zaujal, neváhejte mně kontaktovat.
Možnost využití financování na míru.
V případě více zájemců, si majitel vyhrazuje právo prodat nejvyšší nabídce.
- Vložení inzerátu:
25.10.2022
- Kód:
18723
- Typ nemovitosti:
Byt
- Typ budovy:
Panelová
- Dispozice:
2+kk
- Vlastnictví:
OV
- Podlaží:
9
- Podlahová plocha:
52 m2
- Plocha parcely:
52 m2
- Lodžie:
7 m2
- Sklep:
2 m2
- Stav objektu:
Před rekonstrukcí
- Bezbariérový byt:
Ano
- Telekomunikace:
Internet
- Voda:
dálkový vodovod
- Elektřina:
230 V
- Doprava:
silnice, MHD, autobus
- Topeni:
ústřední dálkové
- Plyn:
plynovod
- Odpad:
kanalizace
- Komunikace:
asfaltová
- Bezbariérový přístup:
Ano
- Energetická náročnost:
D - Méne úsporná
- Ukazatel náročnosti:
233.8 kWh/m2
- Nabídky v okolí: