• Sledovat cenu
  •  

Zasílání upozornění emailem:

Prodej bytu 2+kk, 51 m2 - Závišova, Praha 4, Nusle, Praha (již není v nabídce)

Cena: 10 500 000 Kč
Stav:archiv
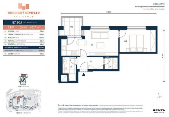
2+kk, 51 m2, cihlová, OV, 3. podlaží
Popis: Prodej zcela nového, slunného bytu 2kk s velkou, zastřešenou terasou (51, 6m2), parkovacím místem a sklepem (jsou součástí kupní ceny) v novém, NÍZKOENERGETICKÉM (PENB B velice úsporné velice nízké náklady na ...bydlení) rezidenčním komplexu bytu Nuselský pivovar v Nuselském údolí v prostoru mezi Bělehradskou a Křesomyslovou ulicí poblíž divadla Na Fidlovačce v městské části Praha 4 v Nuslích. Rozkládá se uprostřed živé městské části s kompletní občanskou vybaveností a výtečnou dostupností do centra. Celý areál je památkově chráněným souborem industriální architektury s bohatou historií. Barokní jádro pivovaru společně se sklepními prostory, komínem a bránou pivovaru bylo prohlášeno za historickou kulturní památku.

Dispozici slunného bytu 2KK zahrnuje otevřený koncept obývacího pokoje s kuchyní a přímým vstupem na terasu, další samostatný pokoj, vstupní chodba, prostorná koupelna se sprchovým koutem, úklidová místnost - místnost pro pračku, sušičku, sklep a parkovací místo.

Nadstandartní vybavení rezidence a bytu zahrnuje: velkoformátová dřevěná okna s izolačními trojskly + použitípasivních solárních zisků, předokenní venkovní žaluzie, dřevěné podlahy, velkoformátová dlažba v koupelně, podlahové vytápění, stupy na čipy a ovladače, systém generálního klíče ve společných prostorech, elektronický zabezpečovací systém, videotelefon pro komunikaci při vstupu do budovy, bezpečné uzamykatelné kolárny a sklepy, osvětlení v celém objektu společných prostor.


Atraktivní a výhodná poloha polohu Vinohrad a Nuslí, těsné sousedství parků Folimanka a Grébovka, výborná dostupnost MHD do centra, zajišťuje rezidentů klidnější bydlení se všemi výhodami města na dosah. Občanská vybavenost přímo v Nuselském pivovaru supermarket, drogerii, lékárnu, kavárnu, pekárnu, restauraci, trafiku a mnoho dalšího.

ID nemovitosti HMA1974 - 0001.

Podobné nabídky v okolí

Lokalita: Závišova , Praha 4, Nusle, Praha, Česká republika Závišova, Praha 4, Nusle, Praha