• Sledovat cenu
  •  

Zasílání upozornění emailem:

Prodej bytu 2+kk, 50 m2 - Hábova 1518, Praha (již není v nabídce)

Cena: 4 250 000 Kč
Stav:archiv
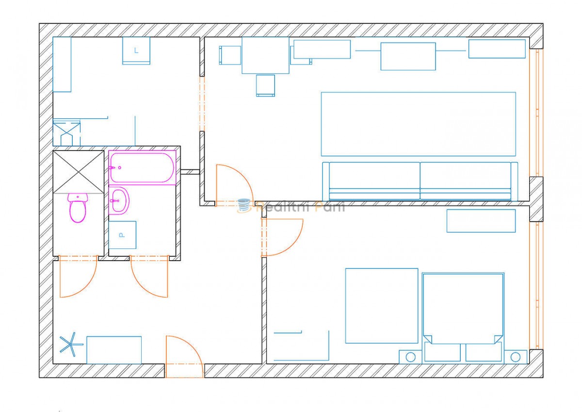
2+kk, 50 m2, panelová, družstevní, 1. podlaží
Popis: Exkluzivně nabízíme k prodeji světlý byt o dispozici 2+kk v družstevním vlastnictví (aktuálně bez možnosti převodu do OV (osobní vlastnictví)), který se nachází v 1. NP (první n...adzemní patro) bytového domu pouze 3 minuty pěšky od stanice metra B - Stodůlky. Byt má výměru 50 m² a je v původním stavu určeném k rekonstrukci. Oproti standardním bytům této dispozice má byt o 6m² větší užitnou plochu.

Byt disponuje obývacím pokojem s kuchyní a dalším pokojem s jižní orientací. Byt má samostatné sociální zařízení WC a koupelnu. Měsíční poplatky jsou velice nízké. Bytový dům je po kompletní rekonstrukci (zateplení, výtahy, střecha, plastová okna, vnitřní prostory, venkovní elektrické žaluzie), k bytové jednotce náleží sklep o velikosti cca 2 m². Instalace bezpečnostních mříží do fasády možná je, ale podléhá schválení technického řešení vyhotovitele zateplení a představenstva bytového družstva.

Kompletní občanská vybavenost v okolí - školka a poliklinika přímo u domu, škola do 5 minut chůze, metro B Stodůlky a pošta 3 minuty chůze. Dopravní spojení je ideální do všech směrů - centrum 15 minut, 5 minut autem od domu nájezd na dálnici směr Plzeň. Zajištění financování při ručení jinou nemovitostí a zajištění doprovodných služeb (stavební úpravy, stěhování nebo dokončení rekonstrukce) je u nás samozřejmostí. Pro další informace nebo domluvení prohlídky mě neváhejte kontaktovat.
  • Vložení inzerátu:
    2.10.2023
  • Kód:
    0211
  • K dispozici od:
    0.0.0
  • Typ nemovitosti:
    Byt
  • Typ budovy:
    Panelová
  • Dispozice:
    2+kk
  • Vlastnictví:
    Družstevní
  • Podlaží:
    1
  • Podlahová plocha:
    50 m2
  • Stav objektu:
    Před rekonstrukcí
  • Umístění objektu:
    Okraj
  • Plyn:
    plynovod
  • Odpad:
    kanalizace
  • Energetická náročnost:
    C - Úsporná
  • Podle vyhlášky:
    c. 148/2007 Sb
  • Nabídky v okolí:
  • Informace o obci:
    Obec Praha má 1257158 obyvatel, z toho 889974 v produktivním věku.
    V obci se nachází pošta.
    V obci se nachází škola, popř. školka.
    V obci se nachází zdravotní zařízení.
    V obci je rozvod kanalizace.
    V obci je rozvod městské vody.
    V obci je rozvod plynu.

Podobné nabídky v okolí

Lokalita: Hábova 1518, Praha, Česká republika Hábova 1518, Praha