• Sledovat cenu
  •  

Zasílání upozornění emailem:

Prodej bytu 2+kk, 50 m2 - Květná 2735, Plzeň, okr. Plzeň-město (již není v nabídce)

Cena: 2 330 000 Kč
Stav:archiv
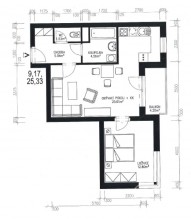
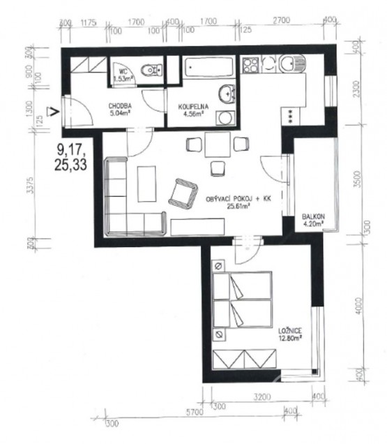
2+kk, 50 m2, cihlová, OV, 2. podlaží
Popis: Kopta reality zajištuje prodej bytu v novější cihlové zástavbě. Dispozice bytu je 2+kk + balkon a k bytu náleží zděný sklep o ploše 1, 7 m2 v suterénu domu a taktéž ...parkovací stání (již zahrnuto v ceně). Byt je umístěný ve 2. NP (druhé nadzemní patro). V domě je větší bezbariérový výtah. Do předávaného vybevení bytu patří novější kuchyňská linka včetně všech spotřebičů - myčka, sklokeramická deska, el. trouba, digestoř. Vyjímečná lokalita nabízí dostatek sportovního vyžití v nedalekeém ŠKODA parku, hned u domu vede podél řeky cyklostezka vedoucí přímo do centra . Klidná lokalita a občanská vybavenost jsou hlavními přednostmi tohoto bytu.
  • Vložení inzerátu:
    22.8.2018
  • Kód:
    0119
  • Typ nemovitosti:
    Byt
  • Typ budovy:
    Cihlová
  • Dispozice:
    2+kk
  • Vlastnictví:
    OV
  • Podlaží:
    2
  • Podlahová plocha:
    50 m2
  • Balkón:
    4 m2
  • Sklep:
    1 m2
  • Stav objektu:
    Velmi dobrý
  • Telekomunikace:
    Internet
  • Voda:
    dálkový vodovod
  • Elektřina:
    230 V
  • Doprava:
    silnice, dálnice, MHD, autobus, vlak
  • Topeni:
    ústřední dálkové
  • Odpad:
    kanalizace
  • Komunikace:
    asfaltová
  • Zařízený:
    Ano
  • Energetická náročnost:
    C - Úsporná
  • Ukazatel náročnosti:
    127 kWh/m2
  • Nabídky v okolí:
  • Informace o obci:
    Obec Plzeň má 168808 obyvatel, z toho 116966 v produktivním věku.
    V obci se nachází pošta.
    V obci se nachází škola, popř. školka.
    V obci se nachází zdravotní zařízení.
    V obci je rozvod kanalizace.
    V obci je rozvod městské vody.
    V obci je rozvod plynu.

Podobné nabídky v okolí

Lokalita: Květná 2735, Plzeň, okres Plzeň-město, Česká republika Květná 2735, Plzeň, okr. Plzeň-město