• Sledovat cenu
  •  

Zasílání upozornění emailem:

Prodej bytu 2+kk, 49 m2 - V závětří, Praha 7, Praha

Cena: 8 480 000 Kč
Stav:Volný
2+kk, 49 m2, cihlová, OV, 6. podlaží
Popis: +popl. 4177 Kč, Cena včetně provize a právního servisu
Prodávající si vyhrazuje právo vybrat kupujícího na základě . Exkluzivně nabízím ke koupi stylový dvoupokojový byt o výměře 49 m², který se nachází v 6. podlaží z ce...lkových 8 v revitalizovaném panelovém domě včetně výtahu. Dům prošel kompletní rekonstrukcí v roce 2021, je zateplený a ve velice dobrém technickém stavu. Lokalita nabízí výbornou dostupnost centra a zároveň blízkost zeleně – jen pár minut chůze od Královské obory Stromovka, stanice metra C Nádraží Holešovice i tramvajových zastávek. Velkým bonusem je také velice dostupné parkování v okolí.

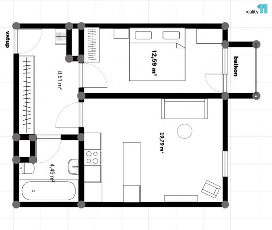
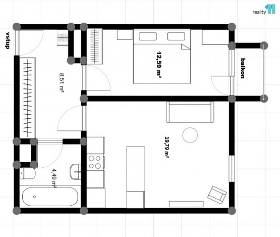
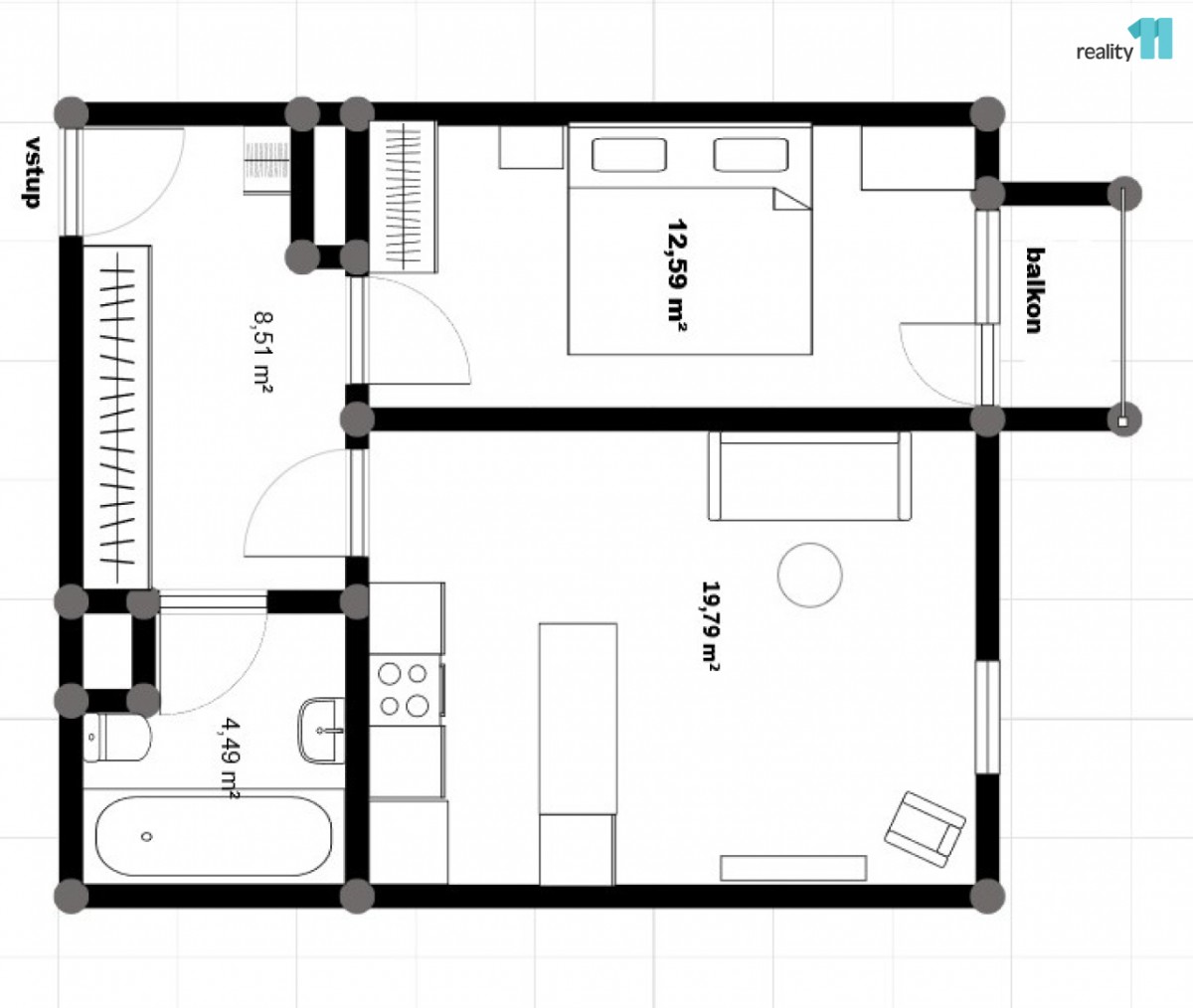
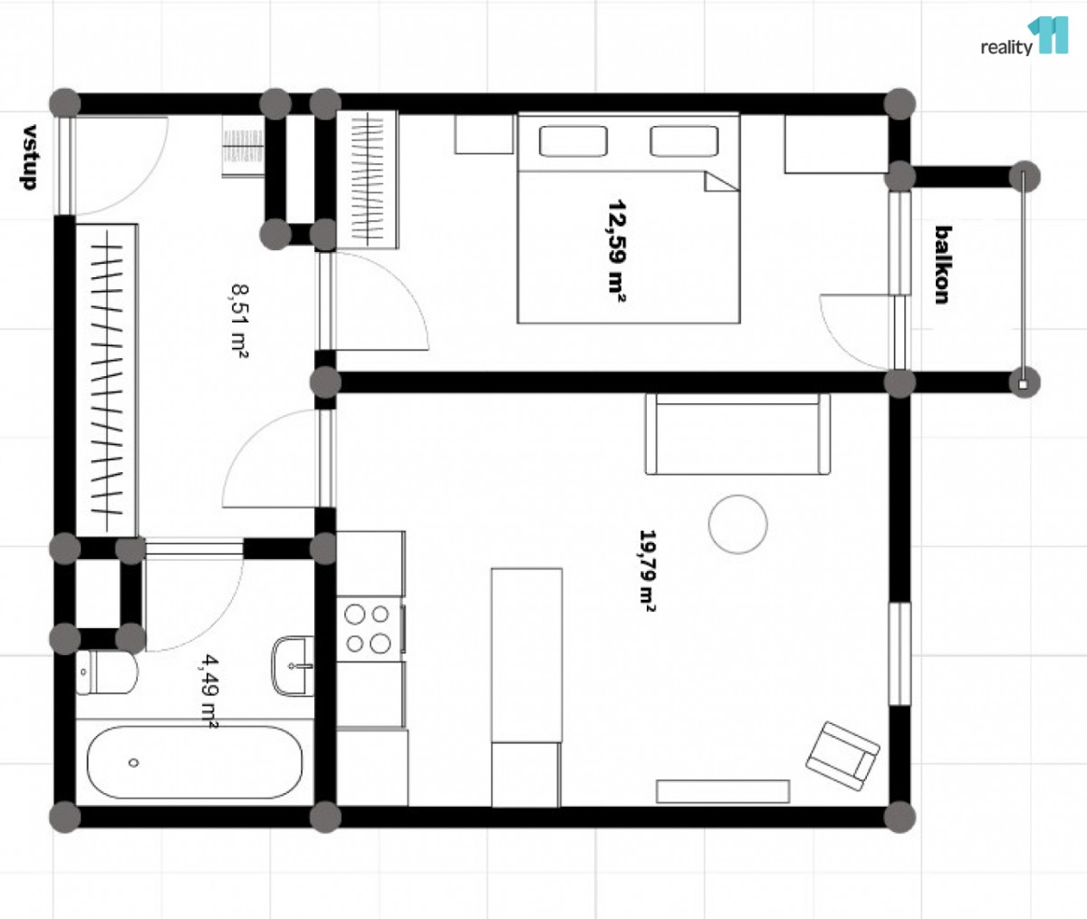
Byt je dispozičně řešen jako 2kk a působí světlým, moderním a velice praktickým dojmem. Už při vstupu vás přivítá prostorná předsíň s vestavěnými skříněmi na míru, které poskytují dostatek úložných prostor a podtrhují čistý, uspořádaný charakter interiéru. Z předsíně je přímý vstup do koupelny s sociální zařízení WC, vybavené vanou, umyvadlem a šikovně řešeným koutem pro pračku a sušičku.

Dominantou bytu je obývací pokoj s kuchyňským koutem v otevřené dispozici, který působí vzdušně a příjemně. Minimalistický interiér podtrhuje elegantní a nadčasový design kuchyňské linky s vestavěnými spotřebiči. Prostor je ideální jak pro každodenní život, tak pro setkávání s přáteli.

Samostatná ložnice nabízí klid pro odpočinek a zároveň přímý vstup na menší balkónek, který je ideální pro ranní kávu nebo drobné posezení. Byt je vybaven plastovými okny, kvalitními vinylovými podlahami a množstvím úložných prostor. Vestavěné skříně v chodbě byly realizovány v roce 2022.

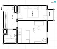
Dispozice a výměry:
– předsíň: 8, 51 m²
– obývací pokoj s kuchyní: 19, 79 m²
– ložnice: 12, 59 m²
– koupelna s sociální zařízení WC: 4, 49 m²
– sklepní kóje: 2, 83 m²

Holešovice prošly v posledních letech dynamickým rozvojem a patří dnes mezi nejatraktivnější pražské lokality. Vynikají skvělou dostupností centra, bohatou občanskou vybaveností a širokými možnostmi volnočasového vyžití. Stromovka v docházkové vzdálenosti nabízí prostor pro sport, relaxaci i společenské aktivity. V okolí se nachází školy, školky, galerie, divadla, moderní kavárny, vyhlášené restaurace i designové obchody.

Dopravní dostupnost:
Metro C – Nádraží Holešovice: 250 m
Tramvaje: 350 m Nádraží Holešovice (linky 5, 12, 14, 15, 17, 54), 400 m Ortenovo náměstí
Autobusy: 110 m Jankovcova, 300 m Nádraží Holešovice
Železnice: 180 m Praha - Holešovice, 700 m Praha - Holešovice - zastávka

S financováním vám pomůže náš certifikovaný hypoteční specialista a kompletní právní servis zajišťuje renomovaná advokátní kancelář.

Nenechte si ujít tuto skvělou příležitost a staňte se majitelem moc hezkého bytu v jedné z nejžádanějších pražských lokalit. Kontaktujte mě pro více informací a domluvte si prohlídku – tato nemovitost určitě stojí za váš zájem. Ev. číslo: 27824. Energetický štítek: D
  • Vložení inzerátu:
    14.11.2025
  • Kód:
    3993627
  • Typ nemovitosti:
    Byt
  • Typ budovy:
    Cihlová
  • Dispozice:
    2+kk
  • Vlastnictví:
    OV
  • Podlaží:
    6
  • Podlahová plocha:
    49 m2
  • Balkón:
    Ano
  • Sklep:
    Ano
  • Stav objektu:
    Velmi dobrý
  • Energetická náročnost:
    D - Méne úsporná
  • Nabídky v okolí:
Lokalita: V závětří , Praha 7, Praha, Česká republika V závětří, Praha 7, Praha

Kontakt

Aneta Krüger


Podobné nabídky v okolí


Volná pracovní místa ExpertPrace.cz
  • Objednání prohlídky a více informací
  •  
  • Poslat na e-mail
  •  

Zasílání odkazu na realitu emailem: