• Sledovat cenu
  •  

Zasílání upozornění emailem:

Prodej bytu 2+kk, 49 m2 - České Budějovice (již není v nabídce)

Cena: 4 400 000 Kč
Stav:archiv
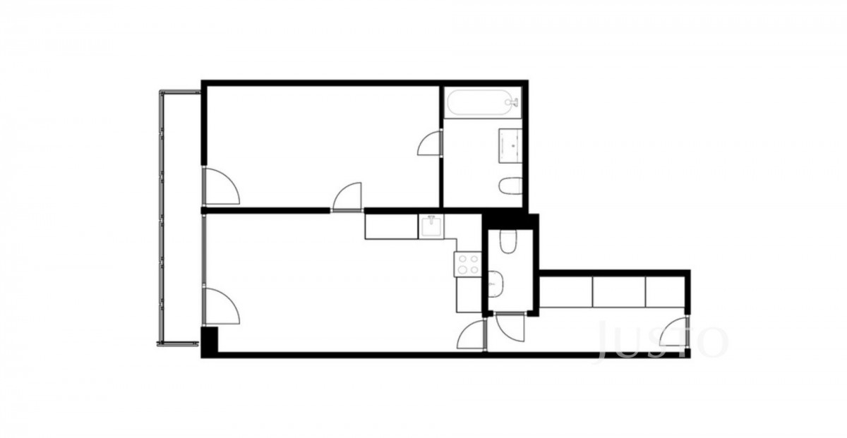
2+kk, 49 m2, cihlová, OV, 4. podlaží
Popis: REZERVOV (osobní vlastnictví)ÁNO - Ve výhradním zastoupení majitele Vám představuji prodej atraktivního bytu o dispozici 2+kk v Riegrově ulici v Českých Budějovicích. Tento mo...derně řešený byt se nachází ve 3. patře bytového domu včetně výtahu, který byl kolaudovaný v roce 2013. Byt. jednotka o podlahové ploše 49 m² s jižně orientovanou terasou s výhledem do vnitrobloku (6, 72 m²) je ideální jak pro osobní užívání, tak pro investory zaměřené na následný pronájem bytu.

Centrálním prvkem bytu je prostorný obývací pokoj s plně vybavenou kuchyní, který má přímý přístup na terasu. Druhý pokoj, sloužící rovněž jako ložnice, poskytuje vstup do velké koupelny s vanou, umyvadlem, toaletou a přípravou pro umístění pračky. Pro větší pohodlí je k dispozici další toaleta umístěná v chodbě, aby Vaše návštěvy nemusely procházet ložnicí. Prostorová štědrost se odráží i v široké chodbě, kde se nacházejí praktické vestavěné skříně. Součástí bytu je také zděný sklep v přízemí domu.

Máte rádi čísla? Pojďme si nabídku představit také v číslech.
Předsíň – 6, 86 m², pokoj a kuchyňský kout – 20, 31 m², pokoj 2 – 15, 64 m², sociální zařízení WC – 1, 54 m², koupelna – 4, 75 m², zděný sklep – 3, 11 m², což dohromady činí 52, 21 m². Dále pak ještě terasa 6, 72 m².

Komfortní vytápění a ohřev vody zajišťuje plynová kotelna v bytovém domě.

Zaujala Vás toto nabídka a máte zájem o bližší informace, nebo rovnou o prohlídku? V obou případech mě prosím kontaktujte prostřednictvím formuláře v dolní části inzerátu. Do 30 minut obdržíte odpověď s veškerými informacemi na e - mail, který uvedete. Pokud Vám e - mail nepřišel, podívejte se do nevyžádané pošty.
  • Vložení inzerátu:
    23.10.2024
  • Kód:
    3873917
  • K dispozici od:
    1.9.2024
  • Typ nemovitosti:
    Byt
  • Typ budovy:
    Cihlová
  • Dispozice:
    2+kk
  • Vlastnictví:
    OV
  • Podlaží:
    4
  • Podlahová plocha:
    49 m2
  • Terasa:
    6 m2
  • Sklep:
    3 m2
  • Stav objektu:
    Velmi dobrý
  • Bezbariérový byt:
    Ano
  • Umístění objektu:
    Klidná část
  • Voda:
    dálkový vodovod
  • Topeni:
    ústřední plynové
  • Odpad:
    kanalizace
  • Bezbariérový přístup:
    Ano
  • Energetická náročnost:
    B - Velmi úsporná
  • Ukazatel náročnosti:
    71 kWh/m2
  • Nabídky v okolí:
  • Informace o obci:
    Obec České Budějovice má 94754 obyvatel, z toho 66302 v produktivním věku.
    V obci se nachází pošta.
    V obci se nachází škola, popř. školka.
    V obci se nachází zdravotní zařízení.
    V obci je rozvod kanalizace.
    V obci je rozvod městské vody.
    V obci je rozvod plynu.

Podobné nabídky v okolí

Lokalita: České Budějovice, okres České Budějovice, Česká republika České Budějovice, Jihočeský kraj