• Sledovat cenu
  •  

Zasílání upozornění emailem:

Prodej bytu 2+kk, 46 m2 - Zábrdovice , Brno, okr. Brno-město (již není v nabídce)

Cena: 4 300 000 Kč
Stav:archiv
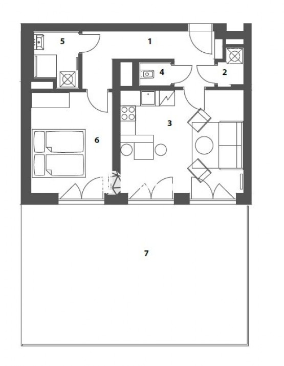
2+kk, 46 m2, cihlová, OV, 1. podlaží
Popis: Exkluzivně nabízíme prodej novostavby bytu 2+kk s větší terasou. Byt. jednotka vzniká v novém bytovém projektu z kanceláře Atelieru RAW a nachází se v katastrálním území Zábrdov...ice v lokalitě s výbornou dostupností do centra Brna. V tomto moderním městském domě vznikne celkem 56 bytů, které budou splňovat vysoké nároky na klidné bydlení a současně respektovat brněnské tradice.
Bytový dům je koncipován tak, aby v něm svůj nový domov našla rodina, pár i jednotlivci. Na jeho výstavbu budou použity cihlové obklady s bílými omítkovými špaletami oken na uliční fasádě. Nadčasový vzhled schodištím zajistí prosklené stěny foyer a nebudou chybět ani kvalitní zámečnické detaily na výkladcích parteru a zábradlích balkonů. Celá budova tak krásně zapadne do zástavby z přelomu 19. a 20. století a současně vyhoví moderním trendům. Společný dvůr za domem bude osázen zelení a nabídne na 250 m2 dostatek místa pro relaxaci a hřiště pro děti. Možnost přikoupení krytého nebo venkovního parkovacího stání. Více informací na www. bdlido. cz.
  • Vložení inzerátu:
    30.8.2018
  • Kód:
    D/RSB/118/18-2
  • K dispozici od:
    0.0.0
  • Typ nemovitosti:
    Byt
  • Typ budovy:
    Cihlová
  • Dispozice:
    2+kk
  • Vlastnictví:
    OV
  • Podlaží:
    1
  • Podlahová plocha:
    46 m2
  • Stav objektu:
    Ve výstavbě
  • Umístění objektu:
    Centrum
  • Telekomunikace:
    Internet
  • Voda:
    dálkový vodovod
  • Elektřina:
    230 V
  • Doprava:
    MHD
  • Topeni:
    ústřední dálkové
  • Odpad:
    kanalizace
  • Energetická náročnost:
    B - Velmi úsporná
  • Podle vyhlášky:
    c. 78/2013 Sb.
  • Ukazatel náročnosti:
    65 kWh/m2
  • Nabídky v okolí:

Podobné nabídky v okolí

Lokalita: Zábrdovice , Brno, okres Brno-město, Česká republika Zábrdovice , Brno, okr. Brno-město, Jihomoravský kraj