Prodej bytu 2+kk, 45 m2 - Brdičkova 1917, Praha 5, Praha
Cena:
6 390 000 Kč
Stav:Volný
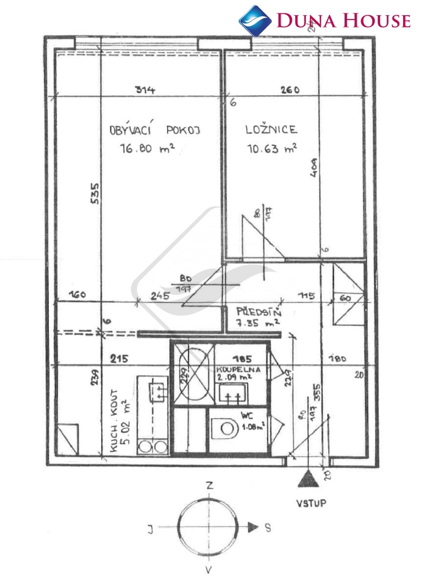
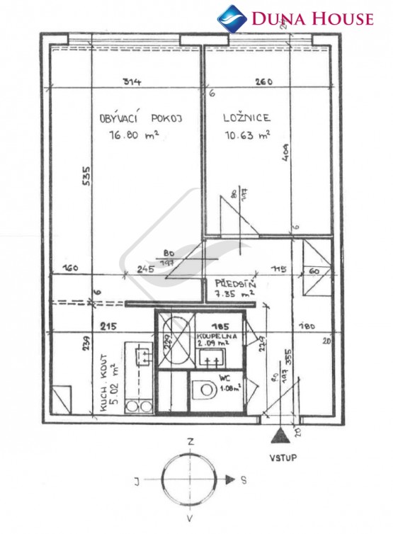
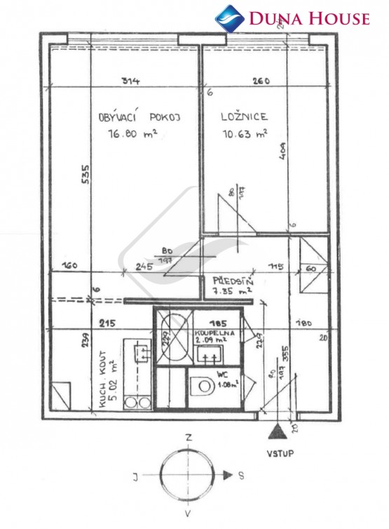
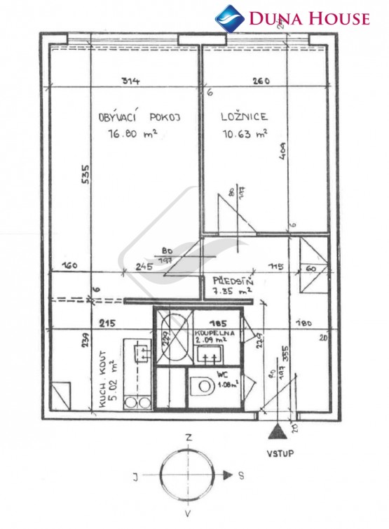
2+kk, 45 m2, panelová, OV, 5. podlaží
Popis:
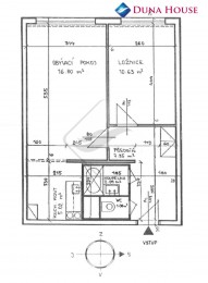
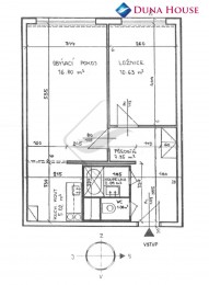
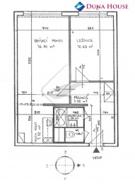
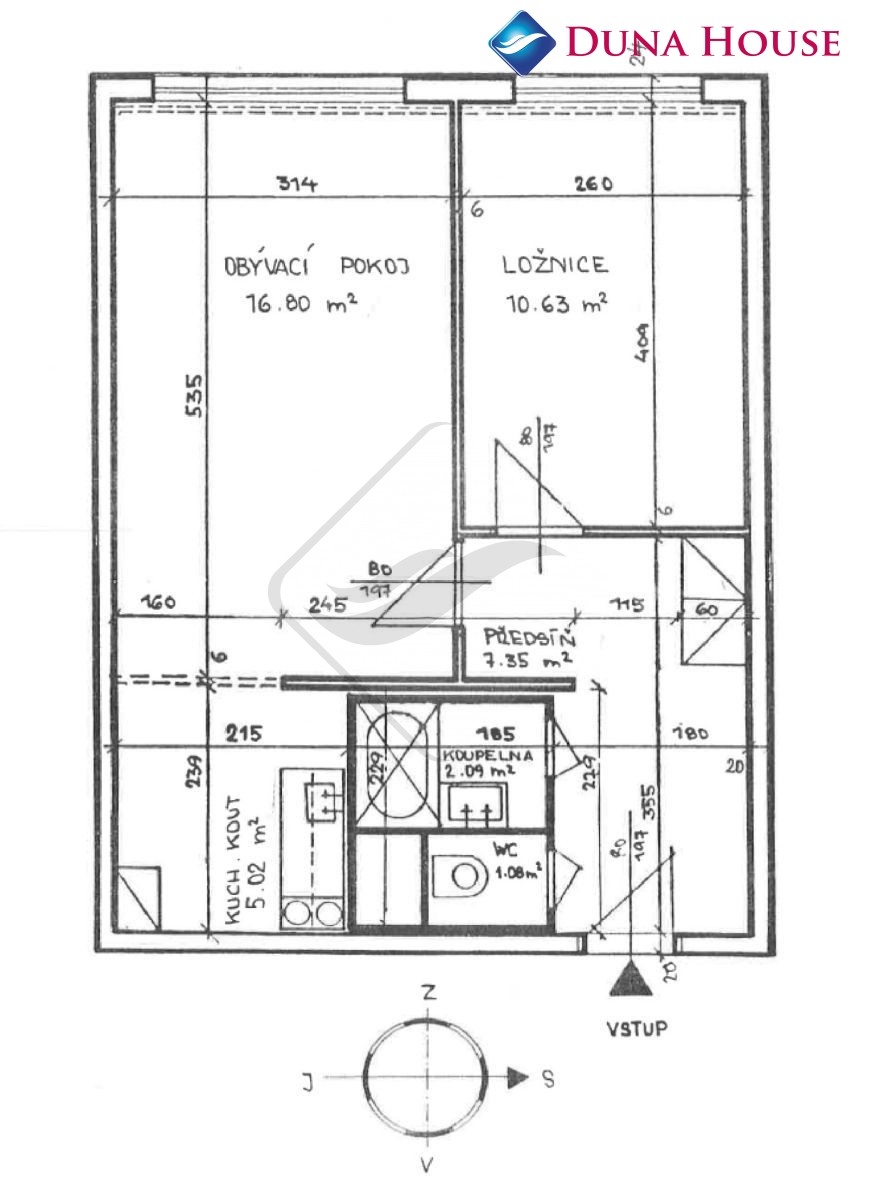
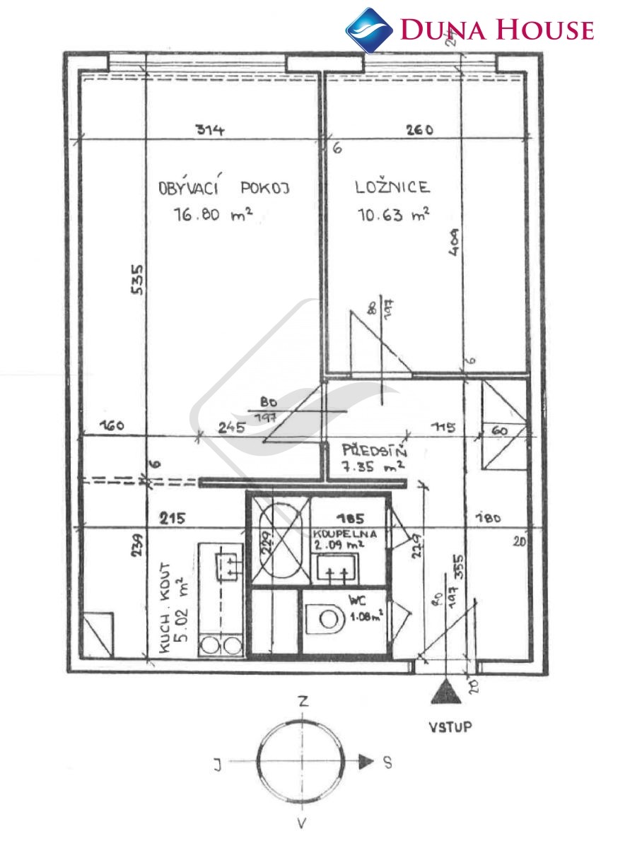
Nově nabízíme k prodeji praktický a útulný byt v osobním vlastnictví 2+kk o celkovém rozměru 45 m², který se nachází ve 4. patře v jedné z žádaných lokalit Prahy - Stodůlky. ... Byt je situován v domě včetně výtahu a nabízí pohodlné bydlení v oblasti s výbornou občanskou vybaveností. Je částečně vybavený a připraven k okamžitému nastěhování.
Byt je v původním, udržovaném stavu, což vám jako novým majitelům dává skvělou příležitost realizovat rekonstrukci přesně podle vašich představ. Umakartové jádro vám umožní snadnou rekonstrukci a úpravu dispozice, zejména ve střední části bytu. Pokoje jsou vzdušné a prostorné, podlahu pokrývá lino. Součástí bytu je kuchyňská linka, koupelna s vanou a praktická vestavěná skříň, která poskytuje dostatek úložného prostoru.
Byt se nachází v klidné části Prahy, v lokalitě kolem Brdičkovy ulice, která je ideální pro rodiny i jednotlivce hledající rovnováhu mezi městským životem a pohodovým bydlením obklopeném zelení. Výhledy z bytu jsou příjemné díky okolní zeleni a upravenému vnitrobloku, který zároveň nabízí dětské hřiště, kde budou vaše děti v bezpečí a na dohled.
Velkou výhodou je také výborná občanská vybavenost. V bezprostřední blízkosti domu se nachází dvě mateřské školy – MŠ U Bobříka a církevní MŠ Srdíčko – a jen minutu chůze je Fakultní základní škola u Pedagogické fakulty UK.
Co se týče dopravní dostupnosti, metro Lužiny je vzdáleno pouhé 2 minuty chůze, což zajišťuje rychlé spojení s centrem města. Jen o minutu dál najdete obchodní centrum Lužiny s množstvím obchodů a služeb. Parkování je bezproblémové – kolem domu je k dispozici několik parkovacích míst.
Díky své dispozici a lokalitě je byt zvláště vhodný pro pár nebo menší rodinu, která ocení kombinaci dostupnosti služeb, blízkosti přírody a potenciálu pro úpravu interiéru podle vlastních představ. Bude se vám zde velice komfortně bydlet.
Možnost financovat hypotečním úvěrem, který pro Vás rádi zařídíme - zdarma a za těch nejlepších podmínek na trhu.
Pokud vás naše nabídka zaujala, neváhejte se ozvat a rádi vám poskytneme další informace.
- Vložení inzerátu:
13.4.2025
- Kód:
3973702
- Typ nemovitosti:
Byt
- Typ budovy:
Panelová
- Dispozice:
2+kk
- Vlastnictví:
OV
- Podlaží:
5
- Podlahová plocha:
45 m2
- Stav objektu:
Velmi dobrý
- Umístění objektu:
Klidná část
- Voda:
dálkový vodovod
- Elektřina:
230 V, 380 V
- Odpad:
kanalizace
- Energetická náročnost:
C - Úsporná
- Nabídky v okolí:
Lokalita:
Brdičkova 1917, Praha 5, Praha, Česká republika
Brdičkova 1917, Praha 5, Praha