Prodej bytu 2+kk, 44 m2 - Brněnská, Tišnov, okr. Brno-venkov
            
            
                
  Cena:
          5 579 600 Kč
    
          Stav:Volný
    
   
     
         
         
         2+kk, 44 m2, cihlová, OV, 2. podlaží      
        
        Popis:
      
                      Ve výhradním zastoupení investora nabízíme k prodeji moderní byt 2+kk s balkonem a sklepní kójí v prestižním projektu Rezidence Ametyst v Tišnově,  který spojuje kvalitní archite...kturu a komfortní bydlení.  Projekt je situován v klidném prostředí s relaxačními zónami a samozřejmostí je možnost parkovacího stání přímo v areálu. 
Tišnov je malebné město s veškerou občanskou vybaveností,  kde najdete obchody,  restaurace,  školy i zdravotnická zařízení.  Díky skvělé dopravní dostupnosti se do Brna dostanete autem nebo pohodlně vlakem za 25 minut.  Okolí nabízí moc hezké turistické stezky,  cyklotrasy a rekreační možnosti v Přírodním parku Svratecká hornatina.  Čtvrť je klidná a bezpečná,  ideální pro jednotlivce i investory hledající dlouhodobou hodnotu nemovitosti. 
Stavba již byla zahájena,  takže si můžete zajistit bydlení včas.  Pro více informací nás kontaktujte nebo navštivte webové stránky projektu Rezidence Ametyst. 
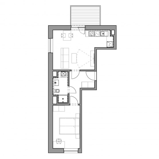
Dispozice bytu:  chodba (6, 1 m2),  obývací pokoj s kuchyňským koutem (21, 0 m2),  pokoj (12, 8 m2),  koupelna s sociální zařízení WC (4, 1 m2),  balkon (6, 0 m2),  sklep (1, 5 m2)
           
          
    - Vložení inzerátu:6.3.2025  
- Kód:D/RSB/221/24-2  
- K dispozici od:0.0.0  
- Typ nemovitosti:Byt  
- Typ budovy:Cihlová  
- Dispozice:2+kk  
- Vlastnictví:OV  
- Podlaží:2  
- Podlahová plocha:44 m2 
- Balkón:6 m2 
- Sklep:1 m2 
- Stav objektu:Ve výstavbě  
- Umístění objektu:Klidná část  
- Energetická náročnost:B - Velmi úsporná  
- Podle vyhlášky:c. 78/2013 Sb.  
- Ukazatel náročnosti:70 kWh/m2 
- Nabídky v okolí:
- Informace o obci:Obec Tišnov má 8662 obyvatel, z toho 5821 v produktivním věku.
 V obci se nachází pošta.
 V obci se nachází škola, popř. školka.
 V obci se nachází zdravotní zařízení.
 V obci je rozvod kanalizace.
 V obci je rozvod městské vody.
 V obci je rozvod plynu.
 
 
 
    Lokalita:
    
        Brněnská , Tišnov, okres Brno-venkov, Česká republika
        
                                                                                                                                                                                                                                                         Brněnská, Tišnov, okr. Brno-venkov