• Sledovat cenu
  •  

Zasílání upozornění emailem:

Prodej bytu 2+kk, 44 m2 - Na výběžku, Praha (již není v nabídce)

Cena: 6 000 000 Kč
Stav:archiv
2+kk, 44 m2, cihlová, OV, 1. podlaží
Popis: Čtěte prosím pozorně text (jedná se o investiční příležitost, nikoli nabídku bytu k okamžitému bydlení). Tento byt uvolňujeme právě k prodeji.

Developerský projekt v klidné ulici Kolmá, v Praze 9 – Vysočany, nabízí veli...ce kvalitní bydlení splňující nejnáročnější požadavky dnešní doby. Také skvělou možnost investice se zajištěným výnosem. K prodeji máme bytů se zajištěným výnosem z nájmu více - stačí se informovat o aktuálních možnostech. K dispozici posledních pár volných jednotek.

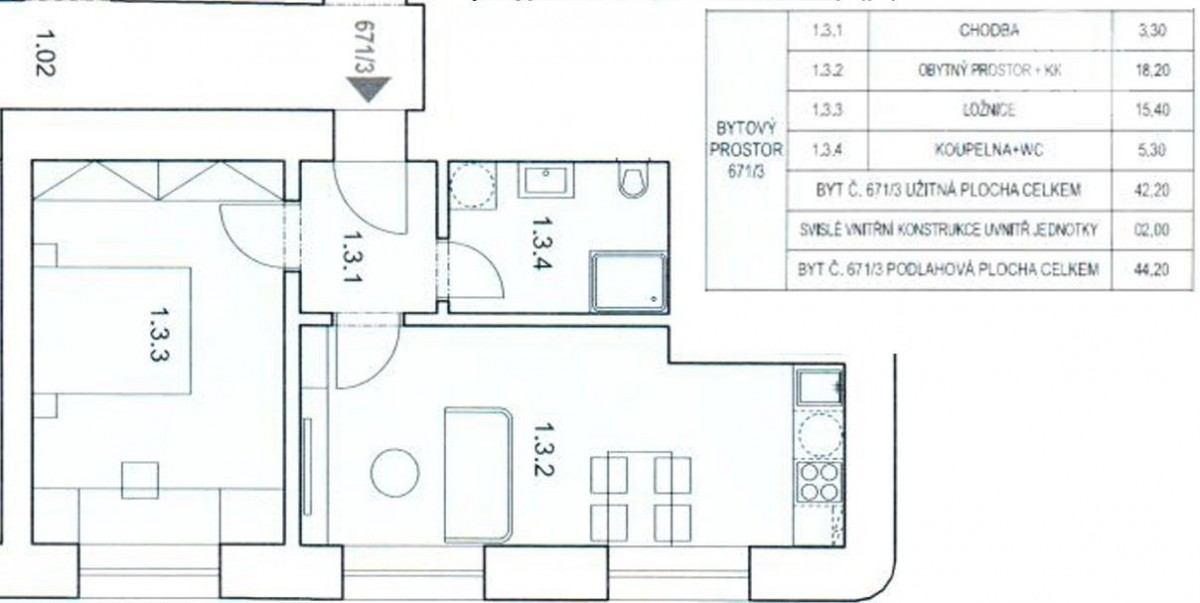
Máme zde pro Vás skvělou investiční nabídku bytu 2+KK o celkové užitné ploše přes 44m2 s balkonem do klidného vnitrobloku a terasou s výhledy na východ. Ptáte se proč investiční? Tento byt totiž koupíte již se spolehlivým nájemcem a tedy s okamžitým a na dnešní dobu velice zajímavý výnosem. Ušetříte si čas i energii s výběrem nájemníka a po roce, kdy platnost nájmu skončí, se můžete rozhodnout, jak budete nadále s bytem nakládat. Více info Vám rád poskytnu osobně.

Byt 2+KK 44, 2m2, umístěný v 1. NP (první nadzemní patro). K bytu patří sklep v suterénu domu o užitné ploše 4, 1m2. Orientace oken jak na V. Velmi dobře a účelně řešený byt (půdorys přiložen v nabídce mezi fotodokumentací)

Zachován shodný vysoký standard a tedy naleznete zde mimo jiné kvalitní italskou kuchyňskou linku včetně značkových spotřebičů, kde nechybí varná deska, trouba, integrovaná myčka či velká lednice s mrazákem. Koupelny jsou vybaveny značkovou sanitou HANSGROHE a FERBEX a velkoformátovou dlažbou a obklady. Pokoje oddělují světlé interiérové dveře, doplněné o kvalitní kování. Podlahy či obklady ve stejném designu dodávají bytům ucelený luxusní vzhled. Kvalitní velkoformátová okna pak zaručují v kombinaci s orientací bytů dostatek denního světla. Nechybí ani bezpečnostní dveře nejvyšší kvality, videotelefon pro dálkové otevření návštěvám a o tepelný komfort se stará plynová kotelna v suterénu domu s prostorovým termostatem SIEMENS v bytě (zde si můžete pohodlně ovládat teplotu ve Vaší jednotce)

Tento projekt se skutečně povedl. Velmi zdařilé zpracování, skvělá adresa, občanská vybavenost, snadná dostupnost služeb či MHD, sportovněrelaxační vyžití v okolí a v neposlední řadě žádaná lokalita Prahy 9 je zárukou nejen kvalitního bydlení, ale i případné dobré investice do nemovitosti.

Toto skvělé 2+KK může být jednoduše Vaše a vy ihned zahájíte toužený výnos z investice.

Možno bez problémů financovat hypotečním úvěrem, který Vám velice rádi a zdarma vyřídíme u Vaší banky a to za nejlepších podmínek na trhu.

Zavolejte mi nebo napište a uvidíme se na prohlídce. Budu se těšit na viděnou!
  • Vložení inzerátu:
    11.4.2024
  • Kód:
    0132
  • Typ nemovitosti:
    Byt
  • Typ budovy:
    Cihlová
  • Dispozice:
    2+kk
  • Vlastnictví:
    OV
  • Podlaží:
    1
  • Zastavěná plocha:
    1 m2
  • Podlahová plocha:
    44 m2
  • Lodžie:
    Ano
  • Sklep:
    4 m2
  • Stav objektu:
    Novostavba
  • Rok výstavby:
    2024
  • Rok kolaudace:
    2024
  • Rok rekonstrukce:
    2023
  • Umístění objektu:
    Klidná část
  • Telekomunikace:
    Internet
  • Voda:
    dálkový vodovod
  • Doprava:
    vlak, MHD
  • Topeni:
    ústřední plynové
  • Odpad:
    kanalizace
  • Energetická náročnost:
    C - Úsporná
  • Nabídky v okolí:
  • Informace o obci:
    Obec Praha má 1257158 obyvatel, z toho 889974 v produktivním věku.
    V obci se nachází pošta.
    V obci se nachází škola, popř. školka.
    V obci se nachází zdravotní zařízení.
    V obci je rozvod kanalizace.
    V obci je rozvod městské vody.
    V obci je rozvod plynu.

Podobné nabídky v okolí

Lokalita: Na výběžku , Praha, Česká republika Na výběžku, Praha