• Sledovat cenu
  •  

Zasílání upozornění emailem:

Prodej bytu 2+kk, 43 m2 - Žerotínova, Hořice, okr. Jičín (již není v nabídce)

Cena: 2 270 040 Kč
Stav:archiv
2+kk, 43 m2, cihlová, OV, 2. podlaží
Popis: V současné situaci nabízíme běžné prohlídky s rouškou a rovněž zajišťujeme videoprohlídky v reálném čase přes WhatsApp, FaceTime, Messenger, Skype atd.

Projekt Oáza Living Hořice se nachází v klidné a příjemné lokalitě, ... současně je její velkou předností výborná dopravní dostupnost. Zastávka BUS je vzdálená čtyři minuty chůze. Vzdálenost od centra města je 1 km. Doba jízdy do Hradce Králové je přibližně 20 minut, do Jičína 22 minut.

Město má veškerou občanskou vybavenost supermarkety, kino, divadlo, muzeum, základní a mateřské školy, vyšší odborná škola, plavecký bazén, nemocnici, lékárny, poštu, knihovnu, restaurace.

Nízkoenergetické byty OÁZA LIVING HOŘICE, nabízejí bydlení v klidné, hlukem nezatížené lokalitě, příjemném životním prostředí.

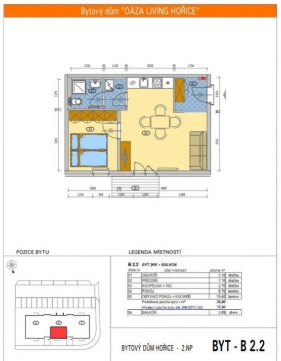
Legenda: Zádveří 3, 10 m2, Předsíň 1, 70 m2, Koupelna + sociální zařízení WC 2, 70 m2, Pokoj 8, 70 m2, Obývací pokoj + kuchyň 19, 60 m2.

Domy splňuji přísná kritéria na hluk i na energetickou úspornost ( energetický štítek B). ID nemovitosti JVA0114 - 0002.
  • Vložení inzerátu:
    28.10.2022
  • Kód:
    JVA0114-0002
  • Typ nemovitosti:
    Byt
  • Typ budovy:
    Cihlová
  • Dispozice:
    2+kk
  • Vlastnictví:
    OV
  • Podlaží:
    2
  • Podlahová plocha:
    43 m2
  • Plocha parcely:
    43 m2
  • Balkón:
    3 m2
  • Sklep:
    3 m2
  • Bezbariérový byt:
    Ano
  • Bezbariérový přístup:
    Ano
  • Energetická náročnost:
    G - Mimořádne nehospodárná
  • Nabídky v okolí:
  • Informace o obci:
    Obec Hořice má 9030 obyvatel, z toho 6257 v produktivním věku.
    V obci se nachází pošta.
    V obci se nachází škola, popř. školka.
    V obci se nachází zdravotní zařízení.
    V obci je rozvod kanalizace.
    V obci je rozvod městské vody.
    V obci je rozvod plynu.

Podobné nabídky v okolí

Lokalita: Žerotínova , Hořice, okres Jičín, Česká republika Žerotínova, Hořice, okr. Jičín