• Sledovat cenu
  •  

Zasílání upozornění emailem:

Prodej bytu 2+kk, 42 m2 - Kunětická, Cihelna, Pardubice, okr. Pardubice

Cena: 3 990 000 Kč
Stav:Volný
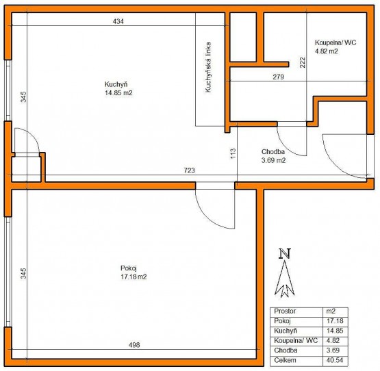
2+kk, 42 m2, panelová, OV, 6. podlaží
Popis: Dobrý den, vítám Vás na stránce s nabídkou bytu o dispozici 2+kk, který se nachází v 6. NP (šesté nadzemní patro) bytového domu v ulici Kunětická, na pardubickém sídlišti zvan...ém Cihelna.

Tento byt by se dal také nazvat jako investiční nebo startovní bydlení pro mladý pár nebo naopak pro rozvedeného či singl žijícího uživatele. A nejen to, v bytě se dá bydlet i s dítětem do určitého věku.

V minulosti proběhla rekonstrukce bytového jádra. Byt působí vzdušně a světle. Orientovaný je na západní světovou stranu.

Aktuálně je obsazen nájemcem s nájemní smlouvou na dobu určitou, a to do 30. 04. 2026. Stávající nájemce by rád v nájmu pokračoval. Je nájemcem již více jak 4 roky. Byt je zajímavou investicí, protože byty v této lokalitě se velice dobře pronajímají.

Doplňující informace:
Plocha bytu: podle dokumentace 42, 6 m2 včetně sklepní kóje o výměře 1, 4 m2.
Umístění bytu: 6. NP (šesté nadzemní patro) bytového domu.
Lokalita: ulice Kunětická č. p. 115, Pardubice.
Fond oprav: 1065 Kč měsíčně.
Průkaz energetické náročnosti budovy - C.

Pět důvodů proč uvažovat o koupi:
1. Investiční potenciál.
2. Oblíbená lokalita.
3. Technický stav bytu.
4. Dostupnost služeb.
5. Jeden z nejzajímavějších malých bytů v aktuální nabídce.

Děkuji, Václav Růžička, realitní specialista.

Prodávající si vyhrazuje právo na výběr kupujícího dle vlastní úvahy (způsob úhrady a výše kupní ceny, serióznost jednání apod. ).
  • Vložení inzerátu:
    2.11.2025
  • Kód:
    XA-170B
  • Typ nemovitosti:
    Byt
  • Typ budovy:
    Panelová
  • Dispozice:
    2+kk
  • Vlastnictví:
    OV
  • Podlaží:
    6
  • Podlahová plocha:
    42 m2
  • Sklep:
    Ano
  • Stav objektu:
    Dobrý
  • Bezbariérový byt:
    Ano
  • Telekomunikace:
    Internet
  • Voda:
    dálkový vodovod
  • Elektřina:
    230 V
  • Doprava:
    MHD
  • Topeni:
    ústřední dálkové
  • Plyn:
    plynovod
  • Odpad:
    kanalizace
  • Komunikace:
    asfaltová
  • Bezbariérový přístup:
    Ano
  • Energetická náročnost:
    C - Úsporná
  • Nabídky v okolí:
Lokalita: Kunětická , Cihelna, Pardubice, okres Pardubice, Česká republika Kunětická, Cihelna, Pardubice, okr. Pardubice

Kontakt




  • Objednání prohlídky a více informací
  •  
  • Poslat na e-mail
  •  

Zasílání odkazu na realitu emailem: