• Sledovat cenu
  •  

Zasílání upozornění emailem:

Prodej bytu 2+kk, 40 m2 - Jakutská, Praha (již není v nabídce)

Cena: 5 250 000 Kč
Stav:archiv
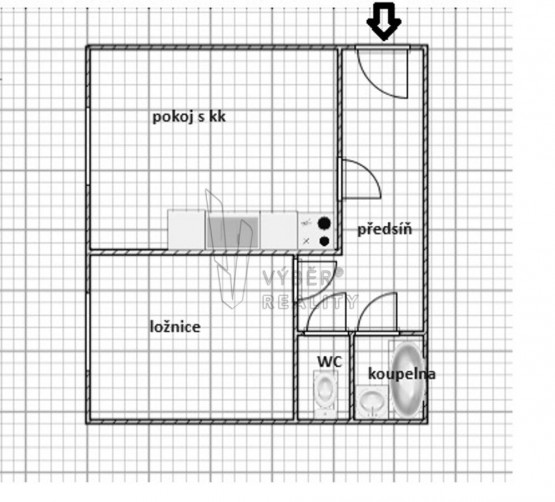
2+kk, 40 m2, cihlová, OV, 1. podlaží
Popis: Nabízíme k prodeji byt 2+kk, 40m2, ul. Jakutská, Praha 10 - Vršovice, zvýšené přízemí v zatepleném cihlovém domě bez výtahu, okna jsou ve výšce cca 2 m nad úro...vní chodníku, výhled z bytu je do zeleného prostranství, za domem park se vzrostlými stromy. Byt byl kompletně zrekonstruován, nové rozvody, kuch. linka vybavena spotřebiči (varná deska, el. trouba, lednice s mrazákem, digestoř). V předsíni dvě vestavěné skříně - jedna se zrcadly, koupelna s vanou a umyvadlem, sociální zařízení WC je samostatné, na podlaze parketová podlaha a dlažba, topení ústřední dálkové, parkování na ulici. Příjemná a velice klidná lokalita plná zeleně, občanská vybavenost v místě - Tesco Expres nebo 1 zastávka nákupní centrum Eden, výborná dopravní dostupnost do centra - do 5 min chůze bus - přímé spojení na Metro A - Flora a Strašnická a Metro B, C - Florenc, do 8 min chůze tram s přímým spojením na I. P. Pavlova a Národní třídu. Prohlídky budou probíhat od ledna 2024.
Poloha a dispozice této bytové jednotky může oslovit investory. Díky výbornému umístění a dostupnosti je tento byt ideální pro pronájem. Vzhledem k rostoucí poptávce po nájemním bydlení v Praze, lze očekávat stabilní příjmy z pronájmu a výhodnou návratnost investice.
  • Vložení inzerátu:
    29.11.2023
  • Kód:
    16693
  • K dispozici od:
    0.0.0
  • Typ nemovitosti:
    Byt
  • Typ budovy:
    Cihlová
  • Dispozice:
    2+kk
  • Vlastnictví:
    OV
  • Podlaží:
    1
  • Podlahová plocha:
    40 m2
  • Stav objektu:
    Velmi dobrý
  • Rok výstavby:
    1957
  • Rok kolaudace:
    1957
  • Umístění objektu:
    Klidná část
  • Odpad:
    kanalizace
  • Energetická náročnost:
    C - Úsporná
  • Podle vyhlášky:
    c. 78/2013 Sb.
  • Nabídky v okolí:
  • Informace o obci:
    Obec Praha má 1257158 obyvatel, z toho 889974 v produktivním věku.
    V obci se nachází pošta.
    V obci se nachází škola, popř. školka.
    V obci se nachází zdravotní zařízení.
    V obci je rozvod kanalizace.
    V obci je rozvod městské vody.
    V obci je rozvod plynu.

Podobné nabídky v okolí

Lokalita: Jakutská , Praha, Česká republika Jakutská, Praha