• Sledovat cenu
  •  

Zasílání upozornění emailem:

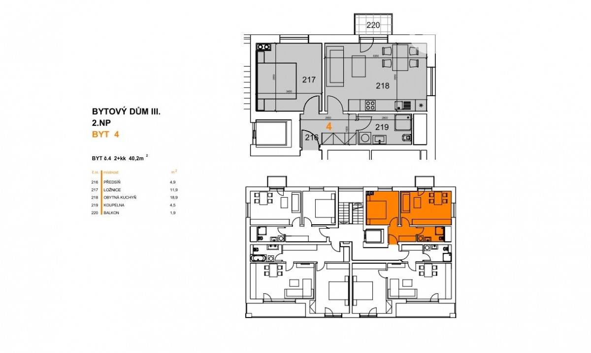
Prodej bytu 2+kk, 40 m2 - Na Větřáku 1, Jedovnice, okr. Blansko (již není v nabídce)

Cena: 3 075 000 Kč
Stav:archiv
2+kk, 40 m2, cihlová, OV, 4. podlaží
Popis: Nabízíme Vám prémiové bydlení obklopené zelení s okny do přírody, v blízkosti Jedovnického rybníka Olšovec. V 2. etapě výstavby bude k dispozice ve dvou nízkopodlažních bytových domech BD II a BD III celkově 42 bytových je...dnotek o dispozicích 1+kk2+kk o výměrách od 35, 5 m2 do 77, 7 m2 s lodžií nebo balkonem, komerční prostory, parkovací stání, parkovacích stání zastřešené a garáže v BD III. Kvalitní standardy a materiály, moderní technologie, funkční design dispozic bytů navržené pro maximální komfort, přemoc hezké výhledy na městys Jedovnice. Je vydané stavební povolení, výkopové a stavební práce s výstavbou již probíhají (viz. foto). Předpokládané dokončení je naplánováno na konec 10. měsíce roku 2023.

Detaily inzerovaného bytu: velikost 40, 2 m2, k bytu náleží sklepní box.
V prostoru kuch. linky příprava pro el. varnou desku, troubu, myčku, digestoř + další 2 okruhy pro kuchyňské spotřebiče ukončené zásuvkou.

K bytu lze dokoupit parkovací stání nekryté za 85. 000, - Kč, včetně DPH, kryté za 265. 000, - Kč, včetně DPH nebo garážové stání za 490. 000, - Kč, včetně DPH
Fotografie dokončeného bytu z první etapy výstavby jsou pouze ilustrativní.

Lokalita
Městys Jedovnice leží asi 25 km od jihomoravské metropole Brna, v těsné blízkosti města Blanska. Okolní lesy přírodního parku tvoří vstupní bránu do Moravského krasu. Vzhledem k zeměpisné poloze a neobyčejné štědrosti přírody jsou Jedovnice významným střediskem rekreace, turistiky a vodních sportů, jejichž známost přesahuje hranice regionu i hranice České republiky. Městys Jedovnice si zachovává ráz malého městečka s množstvím restaurací, obchodů s potravinami, ovocem a zeleninou, textilem i průmyslovým zbožím.
Je zde mateřská škola, základní škola, základní umělecká škola a střední průmyslová škola, několik kadeřnictví, kosmetické a masérské služby, cukrárna, stolařství, zámečnictví a jiné služby. Ordinují zde praktičtí lékaři a zubař, lékárna i zvěrolékařka.

Pro hosty hledající klidný odpočinek a milovníky nedotčené přírody nabízí Jedovnice vycházky do klidové oblasti rybníků Budkovan a Dubový, přírodního parku Rakovecké údolí a přemoc hezkých lesů, které navazují na jižní část rekreační oblasti. Celá tato oblast je dosud prakticky nedotčena civilizací, což umožňuje přežití mnoha unikátních botanických druhů a hnízdění vodního ptactva. Lesy navazující na rekreační oblast jsou proslulé bohatstvím hub a na březích rybníka si přijdou na své i milovníci sportovního rybaření. Pokud jste si nevybrali z uveřejněné nabídky, zadejte nám prosím Vaši poptávku a my se pokusíme najít odpovídající nemovitost.
  • Vložení inzerátu:
    29.7.2021
  • Kód:
    BK021153
  • K dispozici od:
    0.0.0
  • Typ nemovitosti:
    Byt
  • Typ budovy:
    Cihlová
  • Dispozice:
    2+kk
  • Vlastnictví:
    OV
  • Podlaží:
    4
  • Podlahová plocha:
    40 m2
  • Balkón:
    2 m2
  • Sklep:
    Ano
  • Stav objektu:
    Ve výstavbě
  • Voda:
    dálkový vodovod
  • Elektřina:
    230 V
  • Doprava:
    silnice, MHD, autobus
  • Topeni:
    ústřední plynové
  • Plyn:
    plynovod
  • Odpad:
    kanalizace
  • Komunikace:
    asfaltová
  • Energetická náročnost:
    G - Mimořádne nehospodárná
  • Nabídky v okolí:
  • Informace o obci:
    Obec Jedovnice má 2705 obyvatel, z toho 1890 v produktivním věku.
    V obci se nachází pošta.
    V obci se nachází škola, popř. školka.
    V obci se nachází zdravotní zařízení.
    V obci je rozvod kanalizace.
    V obci je rozvod městské vody.
    V obci je rozvod plynu.

Podobné nabídky v okolí

Lokalita: Na Větřáku 1, Jedovnice, okres Blansko, Česká republika Na Větřáku 1, Jedovnice, okr. Blansko