Prodej bytu 2+kk, 38 m2 - Ke Koulce, Praha 5, Smíchov, Praha
Cena:
4 193 600 Kč
Stav:Volný
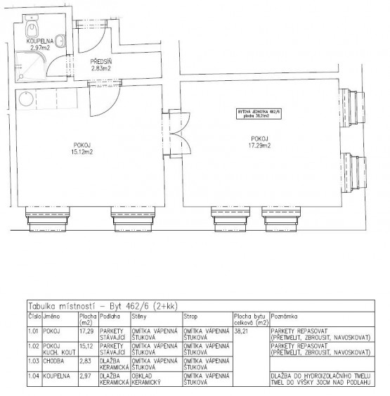
2+kk, 38 m2, cihlová, družstevní, 3. podlaží
Popis:
Ve výhradním zastoupení majitele nabízíme ke koupi družstevní byt 2+kk o rozloze 38, 3 m2, který se nachází v 3. nadzemním podlaží třípatrového bytového domu, v žád...ané lokalitě Praha 5 Radlice.
V místě je velice dobrá dopravní obslužnost i občanská vybavenost. V těsné blízkosti je tramvajová zastávka Křížová.
Byt prochází v současné době celkovou rekonstrukcí, k nastěhování bude od 1. 4. 2021.
- Vložení inzerátu:
26.2.2021
- Kód:
287/4787
- Typ nemovitosti:
Byt
- Typ budovy:
Cihlová
- Dispozice:
2+kk
- Vlastnictví:
Družstevní
- Podlaží:
3
- Podlahová plocha:
38 m2
- Stav objektu:
Dobrý
- Bezbariérový byt:
Ano
- Voda:
dálkový vodovod
- Doprava:
silnice, MHD, autobus, vlak
- Topeni:
lokální plynové
- Komunikace:
asfaltová
- Bezbariérový přístup:
Ano
- Energetická náročnost:
G - Mimořádne nehospodárná
- Nabídky v okolí: