• Sledovat cenu
  •  

Zasílání upozornění emailem:

Prodej bytu 2+1, 95 m2 - Ondřejská, Karlovy Vary (již není v nabídce)

Cena: 3 490 000 Kč
Stav:archiv
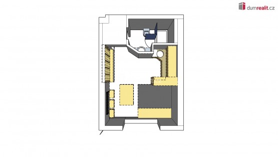
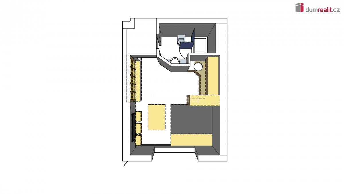
2+1, 95 m2, cihlová, OV, 4. podlaží
Popis: Cena včetně právních služeb a provize RK . Dumrealit. cz Vám nabízí prodej bytu 2+1 v Karlových Varech v oblíbené lokalitě , , Na Vyhlídce". Byt. jednotka o celkové velikosti 95 m² (...včetně podkrovních místností) se nachází v cihlovém domě ve 3. patře bez výtahu z celkových čtyř. Byt je připraven k celkové rekonstrukci. Příslušenstvím bytu jsou 2 podkrovní místnosti ve 4. patře (1. místnost = 20, 6 m², 2. místnost = 8, 7 m²), kde před několika lety proběhla částečná rekonstrukce (elektroinstalace, voda, odpady, omítky, podlahy). Dům je v klidné a příjemné lokalitě v těsné blízkosti samotného centra Karlových Varů s přemoc hezkým výhledem. Díky ideální poloze domu máte veškerou občanskou vybavenost snadno a rychle dostupnou (lékař, dětské hřiště, školy, školky, obchody, zastávka MHD). V okolí domu se nachází kulturní památky, léčivé prameny a lázeňské lesy. Upravené turistické trasy, golfová hřiště, tenisové kurty a lyžařské areály nedaleko města vám umožní celoroční sportovní vyžití. Vzhledem k tomu, že před zadáním do inzerce nebyl vyhotoven PENB, je tento byt zařazen do energetické třídy G. Ev. číslo: 646685. Energetický štítek: G
  • Vložení inzerátu:
    14.1.2025
  • Kód:
    3912480
  • Typ nemovitosti:
    Byt
  • Typ budovy:
    Cihlová
  • Dispozice:
    2+1
  • Vlastnictví:
    OV
  • Podlaží:
    4
  • Podlahová plocha:
    95 m2
  • Stav objektu:
    Dobrý
  • Energetická náročnost:
    G - Mimořádne nehospodárná
  • Nabídky v okolí:
  • Informace o obci:
    Obec Karlovy Vary má 51115 obyvatel, z toho 35848 v produktivním věku.
    V obci se nachází pošta.
    V obci se nachází škola, popř. školka.
    V obci se nachází zdravotní zařízení.
    V obci je rozvod kanalizace.
    V obci je rozvod městské vody.
    V obci je rozvod plynu.

Podobné nabídky v okolí

Lokalita: Ondřejská , Karlovy Vary, okres Karlovy Vary, Česká republika Ondřejská, Karlovy Vary