Prodej bytu 2+1, 92 m2 - Karla Hynka Máchy 604, Hradec Králové (již není v nabídce)
            
            
                
        Cena:
                        5 500 000 Kč
        
              Stav:archiv
        
         
          
          
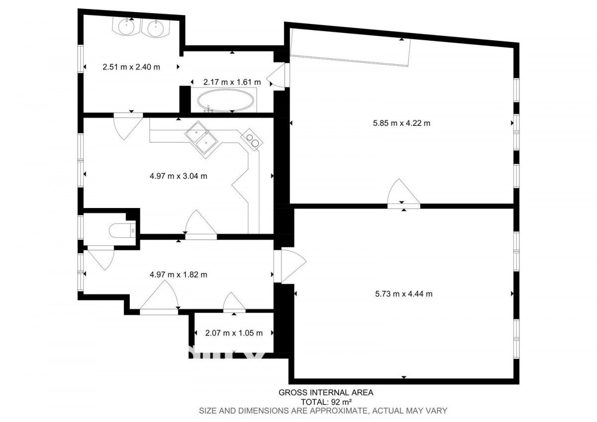
                2+1, 92 m2, cihlová, OV, 3. podlaží          
        
        Popis:
        
                                Nabízíme k prodeji byt o velikosti 2+1 v osobním vlastnictví.  Nachází se na adrese Ulice Karla Hynka Máchy,  v  Hradci Králové.  Jedná se o cihlový objekt ve dobře udržovaném stavu.  ...Byt je částečně vybaven a nachází se ve 3.  podlaží čtyřpodlažního domu.  Celková plocha bytu činí 92m².  Odpad je napojen na kanalizaci a přívod plynu je zajištěn plynovodem. 
Tato nemovitost je ideální pro rodinu či páry,  kteří hledají prostorný a dobře udržovaný byt ve vyhledávané lokalitě.  V blízkosti se nachází veškerá občanská vybavenost včetně škol,  školek,  obchodů a restaurací.  Díky výborné dopravní dostupnosti je umožněn snadný přístup do centra města i okolních oblastí. 
Tento byt nabízí světlé a prostorné pokoje,  ve kterých se snadno usadíte a vytvoříte si příjemný domov.  K dispozici je také prostorná kuchyně s dostatkem místa pro vaření a přípravu jídel.  V bytě je koupelna s vanou a samostatné sociální zařízení WC.  Díky 3.  podlaží je zajištěno klidné bydlení bez rušivého hluku z ulice. 
V případě zájmu o prohlídku nás neváhejte kontaktovat.  Těšíme se na Vaši zprávu či telefonát a rádi Vám poskytneme další informace a domluvíme si termín prohlídky. 
            
            
    - Vložení inzerátu:25.10.2023  
- Kód:0304  
- Typ nemovitosti:Byt  
- Typ budovy:Cihlová  
- Dispozice:2+1  
- Vlastnictví:OV  
- Podlaží:3  
- Podlahová plocha:92 m2 
- Stav objektu:Dobrý  
- Umístění objektu:Centrum  
- Plyn:plynovod  
- Odpad:kanalizace  
- Energetická náročnost:G - Mimořádne nehospodárná  
- Nabídky v okolí:
- Informace o obci:Obec Hradec Králové má 94318 obyvatel, z toho 63900 v produktivním věku.
 V obci se nachází pošta.
 V obci se nachází škola, popř. školka.
 V obci se nachází zdravotní zařízení.
 V obci je rozvod kanalizace.
 V obci je rozvod městské vody.
 V obci je rozvod plynu.
 
 
 
     
        
            Lokalita:
            
                Karla Hynka Máchy 604, Hradec Králové, okres Hradec Králové, Česká republika
                
                                                                
                                                                                                                                                                                                                                                                                            Karla Hynka Máchy 604, Hradec Králové