Prodej bytu 2+1, 75 m2 - K Višňovce, Zelené Předměstí, Pardubice, okr. Pardubice
Cena:
4 590 000 Kč
Stav:Volný
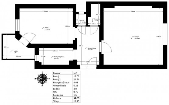
2+1, 75 m2, cihlová, OV, 1. podlaží
Popis:
Dobrý den, právě pro Vás připravujeme k prodeji byt o dispozici 2+1 a celkové výměře podle dokumentace 74, 7 m2, který se nachází v 1. NP (první nadzemní patro) zděného pr...vorepublikového bytového domu v ulici K Višňovce v Pardubicích. Plnohodnotná nabídka bude zveřejněna do 14 dnů.
Předmětný byt se nachází v 1. NP (první nadzemní patro) (přízemí) zděného bytového domu o šesti bytech z roku cca 1933. Orientace: sever, jih. V minulosti prošel rekonstrukcí, která je již z určitého pohledu morálně zastaralá. Nicméně byt je plně funkční. Vytápění a ohřev vody je řešeno prostřednictvím vlastního ústředního kombinovaného plynového kotle. Světlá výška obytných místností činí 3 m.
Výše příspěvku do fondu oprav činí cca 1. 450 Kč. Náklady uživatele bytu činily: 1. 220 Kč plyn, 600 Kč elektřina, 550 Kč vodné a stočné. Bytový dům je ve slušném stavu s údržbou a obměnou potřebných technických zařízení a prvků.
Předmětný byt je svou dispozicí vhodný k pronájmu, protože obsahuje dva samostatné pokoje, kuchyňku, samostatné sociální zařízení WC a koupelnu. Posledních 10 let byl v pronájmu, a to vždy po 5 letém období délky nájmu.
Ulice K Višňovce má kouzlo jednosměrné ulice lemované prvorepublikovými domy. Kdo má rád atmosféru starších domů s vyššími stropy, ten si přijde na své.
Děkuji, Václav Růžička, realitní specialista.
Prodávající si vyhrazuje právo na výběr kupujícího dle vlastní úvahy (způsob úhrady a výše kupní ceny, serióznost jednání apod. ).
- Vložení inzerátu:
12.11.2025
- Kód:
XA-467
- Typ nemovitosti:
Byt
- Typ budovy:
Cihlová
- Dispozice:
2+1
- Vlastnictví:
OV
- Podlaží:
1
- Podlahová plocha:
75 m2
- Lodžie:
Ano
- Stav objektu:
Dobrý
- Bezbariérový byt:
Ano
- Voda:
dálkový vodovod
- Topeni:
ústřední plynové
- Plyn:
plynovod
- Odpad:
kanalizace
- Komunikace:
asfaltová
- Bezbariérový přístup:
Ano
- Nabídky v okolí: