• Sledovat cenu
  •  

Zasílání upozornění emailem:

Prodej bytu 2+1, 70 m2 - Na Bezděkově, Benešov

Cena: 4 900 000 Kč
Stav:Volný
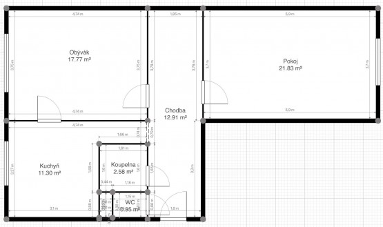
2+1, 70 m2, montovaná, družstevní, 8. podlaží
Popis: Prodej bytu 2+1 (70 m) příležitost pro člověka se smyslem pro dobrodružství

Adresa: Na Bezděkově 1738, Benešov
Patro: 8. patro (výhled téměř do nebe)
Stav: byt před rekonstrukc...í (jo, budeš mít vlastní výzvu )
Dům: už po rekonstrukci žádná stará střecha ti nebude zatejkat
K tomu: sklep (na věci, které se nevejdou do bytu)

Proč tento byt?

- Z obýváku máš pěkný výhled není to panorama Dubaje, ale dobře se kouká na město, stromy a oblohu (ideální pro ranní kafe s rohlíkem).
- Dům už prošel solidní proměnou fasáda, stoupačky (vertikální svody), střecha, společné prostory. . . to už není zbídačený panelák, ale něco, na co se dá dívat.
- Lokalita? Benešov má kouzlo. Je to město s asi 17 tisíci obyvateli (ano, není to Praha), leží zhruba 30 km jihovýchodně od Prahy.

A co tam vlastně v Benešově je?

- Zámek Konopiště romantika, park, historie výbornej cíl na výlety.
- Kulturní akce, kavárny, městský život není to vesnice, něco se tu děje.
- Sport, odpočinek když nechceš být zavřený mezi čtyřmi stěnami.

Pro koho je tenhle byt jako dělaný?

- Pro kreativce, který chce mít byt na míru promysli dispozice, barvy, materiály.
- Pro investora, který vidí potenciál koupit za nižší cenu a nechat to vyroste.
- Pro někoho, kdo chce bydlet blízko Prahy, ale ne v tom shonu mít klid, ale zároveň mít dobrou dostupnost.

(Ne)výhody k zamyšlení

Výhody:

- už nejsi v domě, kde se něco zhroutí dům po rekonstrukci
- dobrý výhled = dobrý pocit ráno
- sklep navíc pro sezónní vybavení, kola, rezervy

Výzvy:

- čeká tě rekonstrukce čas, práce, peníze
- výhled z 8. patra nemusí stačit, když přijde mlha
- a mezi námi nečekej supermoderní design hned, musíš ho udělat sám.

Byt není vyklizený.
  • Vložení inzerátu:
    26.9.2025
  • Kód:
    21
  • Typ nemovitosti:
    Byt
  • Typ budovy:
    Montovaná
  • Dispozice:
    2+1
  • Vlastnictví:
    Družstevní
  • Podlaží:
    8
  • Podlahová plocha:
    70 m2
  • Sklep:
    Ano
  • Stav objektu:
    Po rekonstrukci
  • Bezbariérový byt:
    Ano
  • Elektřina:
    230 V
  • Doprava:
    silnice, MHD, autobus, vlak
  • Topeni:
    ústřední dálkové
  • Odpad:
    kanalizace
  • Komunikace:
    asfaltová
  • Bezbariérový přístup:
    Ano
  • Nabídky v okolí:
  • Informace o obci:
    Obec Benešov má 16343 obyvatel, z toho 11706 v produktivním věku.
    V obci se nachází pošta.
    V obci se nachází škola, popř. školka.
    V obci se nachází zdravotní zařízení.
    V obci je rozvod kanalizace.
    V obci je rozvod městské vody.
    V obci je rozvod plynu.
Lokalita: Na Bezděkově , Benešov, okres Benešov, Česká republika Na Bezděkově, Benešov

Kontakt




  • Objednání prohlídky a více informací
  •  
  • Poslat na e-mail
  •  

Zasílání odkazu na realitu emailem: