Prodej bytu 2+1, 66 m2 - Zelené Předměstí, Pardubice, okr. Pardubice
Cena:
5 150 000 Kč
Stav:Volný
2+1, 66 m2, cihlová, OV, 2. podlaží
Popis:
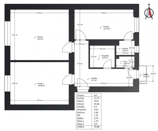
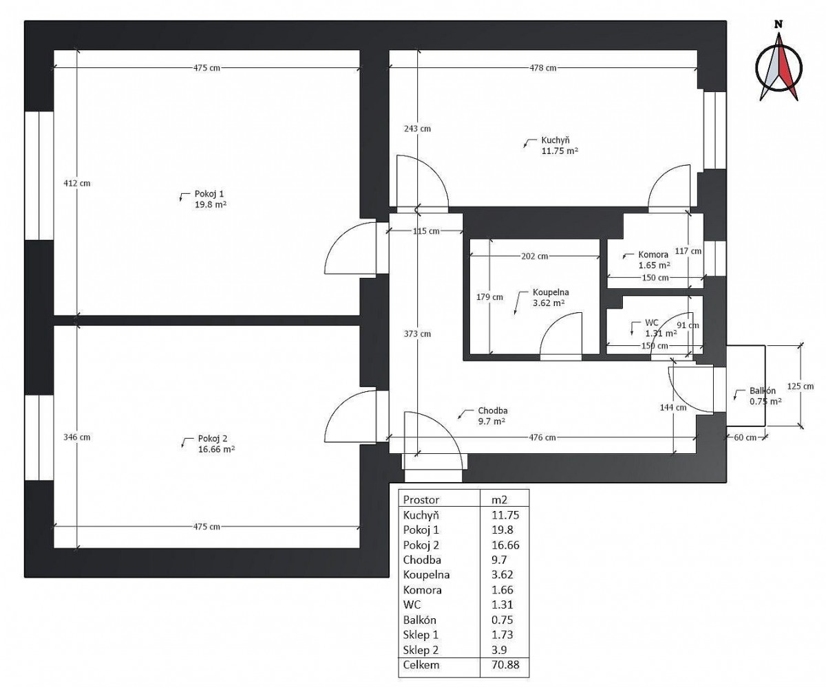
Dobrý den, právě pro Vás připravujeme k prodeji byt o dispozici 2+1 a celkové výměře podle dokumentace 65, 62 m2, který se nachází ve zděném bytovém domě v Pardubicích na... Zeleném Předměstí.
Předmětný byt se nachází v 2. NP (druhé nadzemní patro) zděného bytového domu bez výtahu o 15 bytech. Orientace: východ, západ. V minulosti prošel rekonstrukcí, která je již z určitého pohledu morálně zastaralá. Nicméně byt je v dobrém stavu, plně funkční, ihned obyvatelný. Vytápění a ohřev vody je řešeno prostřednictvím vlastního ústředního kombinovaného plynového kotle.
Děkuji, Václav Růžička, realitní specialista.
Prodávající si vyhrazuje právo na výběr kupujícího dle vlastní úvahy (způsob úhrady kupní ceny, serióznost jednání apod. ).
- Vložení inzerátu:
31.1.2026
- Kód:
XA-473
- Typ nemovitosti:
Byt
- Typ budovy:
Cihlová
- Dispozice:
2+1
- Vlastnictví:
OV
- Podlaží:
2
- Podlahová plocha:
66 m2
- Balkón:
Ano
- Sklep:
Ano
- Stav objektu:
Dobrý
- Bezbariérový byt:
Ano
- Telekomunikace:
Internet
- Elektřina:
230 V
- Doprava:
MHD
- Topeni:
ústřední plynové
- Plyn:
plynovod
- Odpad:
ČOV
- Komunikace:
asfaltová
- Bezbariérový přístup:
Ano
- Energetická náročnost:
F - Velmi nehospodárná
- Podle vyhlášky:
c. 78/2013 Sb.
- Nabídky v okolí: