• Sledovat cenu
  •  

Zasílání upozornění emailem:

Prodej bytu 2+1, 65 m2 - Horácké náměstí, Řečkovice, Brno, okr. Brno-město (již není v nabídce)

Cena: 3 590 000 Kč
Stav:archiv
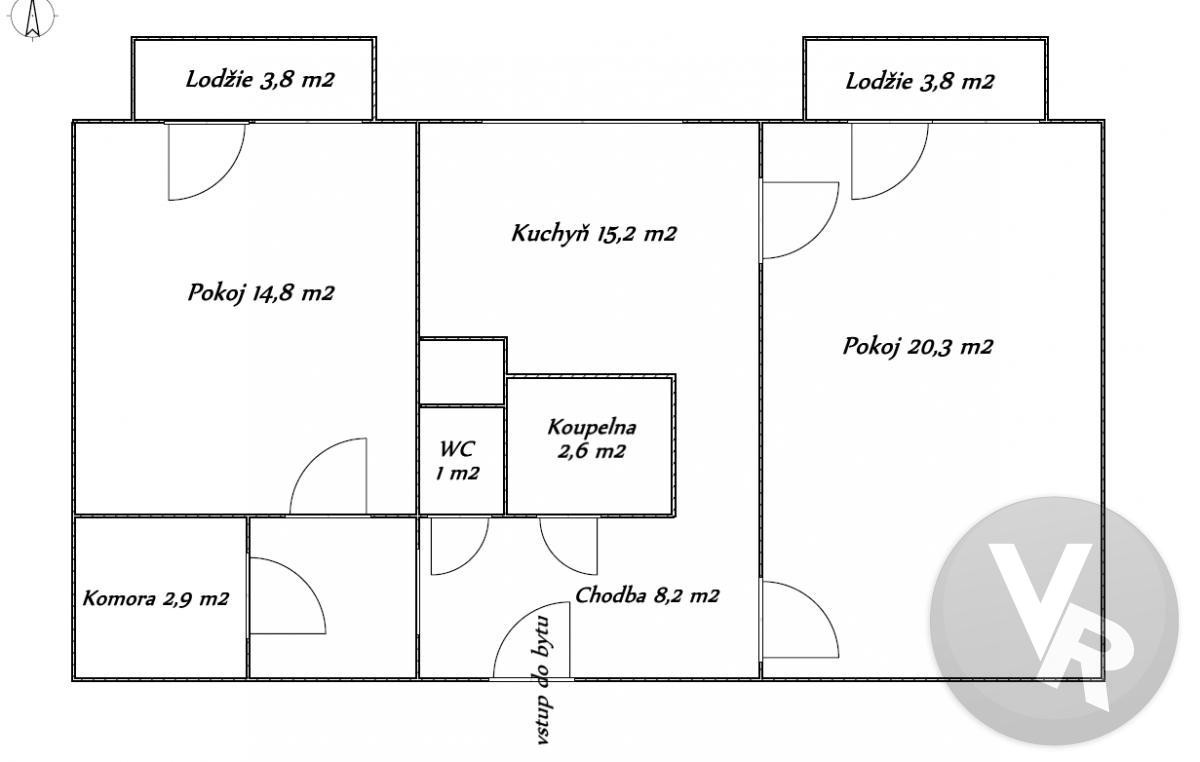
2+1, 65 m2, panelová, OV, 9. podlaží
Popis: Nabízíme k prodeji prostorný byt s dispozicí 2+1 v lukrativní lokalitě Brno Řečkovice, na ulici na Horáckém náměstí. Nachází se v 8. podlaží třináctipatrového panelového domu se dv...ěma výtahy (jeden osobní, jeden nákladní), celková plocha činí 65 m2 a k bytu náleží dvě lodžie a sklep. Dispozice: Dva samostatné pokoje o výměře 20, 3 m2 a 14, 8 m2, prostorná kuchyň 15, 2 m2, předsíň 8, 2 m2, komora 2, 9 m2, koupelna 2, 6 m2, toaleta 1 m2, dvě zasklené lodžie 3, 8 m2 a sklep. Byt je v původním stavu, částečná rekonstrukce byla provedena v koupelně a na toaletě. Dům je po celkové revitalizaci, a to včetně rozvodů v domě. Bezproblémové parkování před domem. Výborná lokalita s perfektní dostupností do centra, dostanete se pohodlně tramvají č. 1 a nebo autobusem. V blízkosti je veškerá občanská vybavenost.

Podobné nabídky v okolí

Lokalita: Horácké náměstí , Řečkovice, Brno, okres Brno-město, Česká republika Horácké náměstí, Řečkovice, Brno, okr. Brno-město