• Sledovat cenu
  •  

Zasílání upozornění emailem:

Prodej bytu 2+1, 63 m2 - Náměstí 139, Volary, okr. Prachatice (již není v nabídce)

Cena: 3 400 000 Kč
Stav:archiv
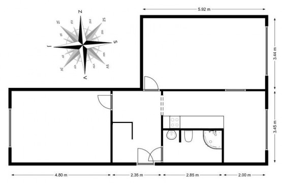
2+1, 63 m2, panelová, OV, 5. podlaží
Popis: Dovolujeme si Vám nabídnout nově rekonstruovaný prostorný byt ve 4. patře rekonstruovaného klidného domu včetně výtahu, v bezprostředním sousedství samotného centra Volar, na adrese Náměstí čp. 139. Byt sestává ze vstupn...í haly, ze které je vstup do jednotlivých místností, kuchyně s jídelnou, vybavené novou kuchyňskou linkou s vestavnými spotřebiči, propojené oknem s obývacím pokojem o ploše 21 m2, z kuchyně i z obývacího pokoje je moc hezký výhled na Volarské náměstí. Proti vstupu do kuchyně je situována ložnice o ploše 17m2, ze které je moc hezký panoramatický výhled na vrcholky Šumavy. Koupelna prošla rovněž kompletní rekonstrukcí. Celý byt působí vzdušně a je velice světlý, náleží k němu prostorná sklepní kóje v přízemí domu a je možné využít společné prostory kočárkárny a kolárny. Celková plocha je 62, 83 m2. Zálohy na služby činí 4. 000, - Kč měsíčně, včetně FO, průkaz energetické náročnosti budovy - kategorie C. Byt je vhodný, jak pro trvalé bydlení, tak pro alternativu k rekreačnímu objektu, a to díky jeho umístění v Národním parku Šumava. Oproti chalupě v tomto případě odpadají starosti s údržbou, neustálými opravami, odklízením sněhu, přípravou na sezónu, zatápěním atd. , přijedete a můžete okamžitě začít užívat radovánek a rekreace, které nádhera Šumavy skýtá. Samozřejmě je možné byt využít i investičně. Parkování je možné přímo u domu.
  • Vložení inzerátu:
    18.4.2024
  • Kód:
    AR106
  • Typ nemovitosti:
    Byt
  • Typ budovy:
    Panelová
  • Dispozice:
    2+1
  • Vlastnictví:
    OV
  • Podlaží:
    5
  • Podlahová plocha:
    63 m2
  • Sklep:
    2 m2
  • Stav objektu:
    Po rekonstrukci
  • Bezbariérový byt:
    Ano
  • Telekomunikace:
    Internet, Kabelová televize
  • Voda:
    dálkový vodovod
  • Elektřina:
    230 V, 380 V
  • Topeni:
    ústřední dálkové
  • Odpad:
    kanalizace
  • Bezbariérový přístup:
    Ano
  • Energetická náročnost:
    C - Úsporná
  • Nabídky v okolí:
  • Informace o obci:
    Obec Volary má 3939 obyvatel, z toho 2852 v produktivním věku.
    V obci se nachází pošta.
    V obci se nachází škola, popř. školka.
    V obci se nachází zdravotní zařízení.
    V obci je rozvod kanalizace.
    V obci je rozvod městské vody.
    V obci je rozvod plynu.

Podobné nabídky v okolí

Lokalita: Náměstí 139, Volary, okres Prachatice, Česká republika Náměstí 139, Volary, okr. Prachatice