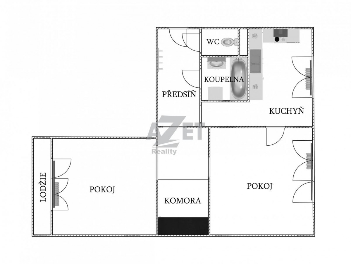
Prodej bytu 2+1, 63 m2 - Josefa Brabce 2884, Moravská Ostrava, Ostrava, okr. Ostrava-město (již není v nabídce)
Cena:
2 700 000 Kč
Stav:archiv
2+1, 63 m2, panelová, OV, 5. podlaží
Popis:
Naše společnost Vám v exkluzivním zastoupení majitele nabízí k prodeji prostorný byt v osobním vlastnictví s lodžií a komorou v 5. NP (páté nadzemní patro) z osmi. Velmi žádaná lokalita s výbornou dostupností do centra města.... Částečná rekonstrukce bytové jednotky proběhla před 10 - ti roky. Neprůchozí pokoje. Bytové jádro - umakart obložený obklady. Plastová okna s parapety. El. rozvody částečně v mědi (sanita, část předsíně a kuchyně). Nové jističe. Voda a odpady v plastu. Rohová kuchyňská linka se spotřebiči (kombinovaná plynová trouba, digestoř, myčka) a místem pro lednici. V koupelně zapuštěná vana a možnost připojení se na pračku. Samostatné sociální zařízení WC Kombi. Plovoucí podlahy v obývacích pokojích. Keramická dlažba v sanitě, dlouhé předsíni, komoře s vestavěnou skříní a kuchyni. Výhled na 2 světové strany (severovýchod vs jihozápad). Litinové ústřední topení. Bezbariérový přístup od přízemí až na samotné patro. Kompletní revitalizace obytného domu. Nová střecha, nový výtah (dojezd do sklepa na čip), nové stoupačky (vertikální svody), kamerový systém - vše reakizováno v roce 2019. V předchozích letech proběhla renovace fasády, zateplení, vstupního vchodu. Velkou výhodou je bezprostřední dostupnost zastávek MHD (2 minuty pěší chůzí) a dostatek parkovacích míst. Maximální občanská vybavenost ve všech směrech. Doporučujeme Vám prohlídku. Advokátní úschova i vypracování kupních smluv v ceně nabídky. Průkaz energetické náročnosti ve třídě C. Finanční poradenství zajistíme zdarma se zvýhodněným úročením. Pro více informací kontaktujte našeho makléře. Těšíme se na Vaši návštěvu.
- Vložení inzerátu:
26.2.2022
- Kód:
812
- Typ nemovitosti:
Byt
- Typ budovy:
Panelová
- Dispozice:
2+1
- Vlastnictví:
OV
- Podlaží:
5
- Podlahová plocha:
63 m2
- Lodžie:
4 m2
- Sklep:
2 m2
- Stav objektu:
Velmi dobrý
- Bezbariérový byt:
Ano
- Telekomunikace:
Internet, Kabelová televize
- Voda:
dálkový vodovod
- Elektřina:
230 V
- Doprava:
silnice, dálnice, MHD, autobus, vlak
- Topeni:
ústřední dálkové
- Plyn:
plynovod
- Odpad:
kanalizace
- Komunikace:
asfaltová
- Bezbariérový přístup:
Ano
- Energetická náročnost:
C - Úsporná
- Podle vyhlášky:
c. 78/2013 Sb.
- Ukazatel náročnosti:
94 kWh/m2
- Nabídky v okolí: