Prodej bytu 2+1, 63 m2 - Hornopolní, Moravská Ostrava, Ostrava, okr. Ostrava-město (již není v nabídce)
Cena:
1 700 000 Kč
Stav:archiv
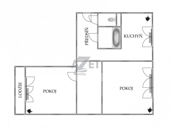
2+1, 63 m2, skeletová, OV, 6. podlaží
Popis:
Nabízíme Vám k prodeji byt v osobním vlastnictví v původním stavu s lodžií v 6. podlaží. Velmi žádaná lokalita s výbornou dostupností do centra města. Vhodná rekonstrukce dle vlastní představy. Neprůchozí pokoje. Vybour...ané bytové jádro. Plastová okna se žaluziemi a parapety. Zánovní omítky. Výhled na 2 světové strany (severovýchod vs jihozápad). Bezbariérový přístup od přízemí až na samotné patro. Kompletní revitalizace obytného domu. Nová střecha, fasáda se zateplením, nový výtah, nové stoupačky (vertikální svody), systém s pohybovými čidly ve společných prostorách, nový vstupní vchod. Velkou výhodou je bezprostřední dostupnost zastávek MHD a dostatek parkovacích míst. Maximální občanská vybavenost ve všech směrech. Doporučujeme Vám prohlídku. Energetický štítek v současné době není k dispozici, proto dle zákona uvádíme energetickou třídu \"G\". Finanční poradenství zajistíme zdarma s výhodným úročením. Pro více informací kontaktujte našeho makléře. Těšíme se na Vaší prohlídku.
- Vložení inzerátu:
21.10.2020
- Kód:
516/4500
- Typ nemovitosti:
Byt
- Typ budovy:
Skeletová
- Dispozice:
2+1
- Vlastnictví:
OV
- Podlaží:
6
- Podlahová plocha:
63 m2
- Lodžie:
3 m2
- Sklep:
2 m2
- Stav objektu:
Před rekonstrukcí
- Bezbariérový byt:
Ano
- Telekomunikace:
Internet, Kabelová televize
- Voda:
dálkový vodovod
- Elektřina:
230 V
- Doprava:
silnice, dálnice, MHD, autobus, vlak
- Topeni:
ústřední dálkové
- Plyn:
plynovod
- Odpad:
kanalizace
- Komunikace:
asfaltová
- Bezbariérový přístup:
Ano
- Energetická náročnost:
G - Mimořádne nehospodárná
- Nabídky v okolí: