• Sledovat cenu
  •  

Zasílání upozornění emailem:

Prodej bytu 2+1, 63 m2 - Bezručova, Kolín

Cena: 5 380 000 Kč
Stav:Volný
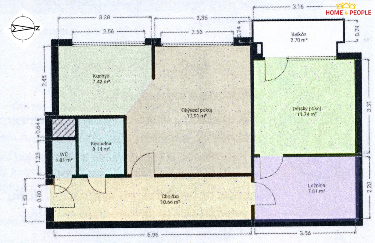
2+1, 63 m2, panelová, OV, 11. podlaží
Popis: Prodej bytu v osobním vlastnictví o dispozici 2+1 63, 36 m², se zaskleným balkonem 5 m². Byt se nachází v 11. podlaží panelového domu o 12. NP (dvanácté nadzemní patro). Při rekons...trukci vznikl záměr oddělit větší dětský pokoj příčkou, čímž vznikla nová místnost, která je využívána jako ložnice. Byt je nyní využíván dispozičně jako 3+1. V rámci těchto změn byly položeny nové podlahy ve všech místnostech a také byla provedena nová elektroinstalace a nové stropy. Rozvod topení je ústřední dálkové, zdroj vody zajišťuje dálkový vodovod. V chodbě je moderní prostorná skříň, která je využívána nejen na oblečení, ale i jako další úložný prostor. Kuchyně je dostatečně větratelná, po celé délce místnosti jsou velká okna. Samostatná kuchyňská linka je plně vybavená spotřebiči: lednice, plynový sporák, pečící trouba a mikrovlnka. Moderní koupelna s vanou a samostatná toaleta, jsou obloženy dlaždicemi. Plastová okna mají venkovní elektrické žaluzie na dálkové ovládání, využít je možné i klasické vnitřní žaluzie. Vchodové dveře jsou polstrované s bezpečnostním zámkem. Dům je zateplen a došlo k rozšíření balkonu se zasklením. Nákladní a osobní výtahy umožňují pohodlnou frekvenci uživatelů. V suterénu domu je sklepní kóje 2 m² a kolárna. Byt je světlý, situovaný na západ a skýtá příjemný výhled do okolí. Parkování je možné na parkovišti u domu. Dům je v lokalitě, kde se v naprosté blízkosti nachází ZŠ, MŠ, plavecký stadion se sportovním využitím, Billa. Nedaleko je i centrum města, dále pak Kaufland a Penny. MHD umožňuje spojení po celém městě. Nádraží poskytuje pravidelná rychlá spojení do Prahy, Pardubice atd. Osobním autem na Černý Most se lze dostat cca za 45 min. Pro více informací a sjednání prohlídky mě kdykoli kontaktujte. Ev. číslo: 32107. Energetický štítek: C
  • Vložení inzerátu:
    23.2.2026
  • Kód:
    4128391
  • Typ nemovitosti:
    Byt
  • Typ budovy:
    Panelová
  • Dispozice:
    2+1
  • Vlastnictví:
    OV
  • Podlaží:
    11
  • Podlahová plocha:
    63 m2
  • Balkón:
    Ano
  • Sklep:
    Ano
  • Stav objektu:
    Velmi dobrý
  • Energetická náročnost:
    C - Úsporná
  • Nabídky v okolí:
  • Informace o obci:
    Obec Kolín má 30927 obyvatel, z toho 21374 v produktivním věku.
    V obci se nachází pošta.
    V obci se nachází škola, popř. školka.
    V obci se nachází zdravotní zařízení.
    V obci je rozvod kanalizace.
    V obci je rozvod městské vody.
    V obci je rozvod plynu.
Lokalita: Bezručova , Kolín, okres Kolín, Česká republika Bezručova, Kolín


Podobné nabídky v okolí


  • Objednání prohlídky a více informací
  •  
  • Poslat na e-mail
  •  

Zasílání odkazu na realitu emailem: