• Sledovat cenu
  •  

Zasílání upozornění emailem:

Prodej bytu 2+1, 62 m2 - Sady pionýrů, Lovosice, okr. Litoměřice (již není v nabídce)

Cena: 3 099 000 Kč
Stav:archiv
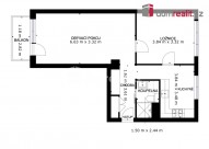
2+1, 62 m2, cihlová, OV, 4. podlaží
Popis: Dumrealit. cz Vám nabízí možný prodej zrekonstruovaného bytu 2+1 s balkónem v osobním vlastnictví. V roce 2017 v bytě proběhla rekonstrukce rozvodů vody, nové odpady, rozvody elektř...iny, nová kuchyňská linka a koupelna se sprchovým koutem a sociální zařízení WC. Byt se skládá ze vstupní haly, koupelny, kuchyně a dvou průchozích pokojů. Topení je řešeno městským dálkovodem. V domě je zaveden i plyn. K bytu náleží i zděná sklepní kóje. V blízkosti je mateřská i základní škola, obchody a cca 5 minut chůze i vlakové nádraží. Ev. číslo: 646000. Energetický štítek: F
  • Vložení inzerátu:
    8.2.2024
  • Kód:
    3748683
  • Typ nemovitosti:
    Byt
  • Typ budovy:
    Cihlová
  • Dispozice:
    2+1
  • Vlastnictví:
    OV
  • Podlaží:
    4
  • Podlahová plocha:
    62 m2
  • Balkón:
    Ano
  • Sklep:
    Ano
  • Stav objektu:
    Po rekonstrukci
  • Energetická náročnost:
    F - Velmi nehospodárná
  • Nabídky v okolí:
  • Informace o obci:
    Obec Lovosice má 8816 obyvatel, z toho 5998 v produktivním věku.
    V obci se nachází pošta.
    V obci se nachází škola, popř. školka.
    V obci se nachází zdravotní zařízení.
    V obci je rozvod kanalizace.
    V obci je rozvod městské vody.
    V obci je rozvod plynu.

Podobné nabídky v okolí

Lokalita: Sady pionýrů , Lovosice, okres Litoměřice, Česká republika Sady pionýrů, Lovosice, okr. Litoměřice