• Sledovat cenu
  •  

Zasílání upozornění emailem:

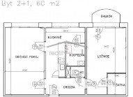
Prodej bytu 2+1, 60 m2 - Tyršova, Zliv, okr. České Budějovice (již není v nabídce)

Cena: 1 730 000 Kč
Stav:archiv
2+1, 60 m2, panelová, družstevní, 3. podlaží
Popis: Nabízíme prodej DB 2+1 s balkónem, 60 m2, 2. patro, ul. Tyršova v obci Zliv ležící 10 km severozápadně od Českých Budějovic a 4 km západně od Hluboké nad Vltavou. Byt ...je komletně vybavený. V koupelně sprchový kout. Podlahovou krytinu tvoří - dlažba a plov. podlahy. K bytu náleží sklep o rozloze 1, 5 m2. K dispozici kolárna. Byt prošel na jaře 2019 kompletní rekonstrukcí - zděné jádro, nová kuchyně, koupelna, toaleta, podlahy, rozvody elektřiny, nové topení, atd. . Dům je panelový včetně výtahu po revitalizaci (PENB - C) - zateplený, plast. okna, střecha, balkóny, výtah, atd. . Fond oprav činí 1. 615, - Kč/měs. . K dispozici dle dohody. Cena 1. 730. 000, - Kč za nemovitost včetně provize RK.
  • Vložení inzerátu:
    10.12.2019
  • Kód:
    1348/3007
  • Typ nemovitosti:
    Byt
  • Typ budovy:
    Panelová
  • Dispozice:
    2+1
  • Vlastnictví:
    Družstevní
  • Podlaží:
    3
  • Podlahová plocha:
    60 m2
  • Balkón:
    Ano
  • Sklep:
    Ano
  • Stav objektu:
    Po rekonstrukci
  • Bezbariérový byt:
    Ano
  • Voda:
    dálkový vodovod
  • Elektřina:
    230 V
  • Doprava:
    vlak, silnice, autobus
  • Topeni:
    ústřední dálkové
  • Odpad:
    kanalizace
  • Komunikace:
    asfaltová
  • Zařízený:
    Ano
  • Bezbariérový přístup:
    Ano
  • Energetická náročnost:
    C - Úsporná
  • Podle vyhlášky:
    c. 78/2013 Sb.
  • Nabídky v okolí:
  • Informace o obci:
    Obec Zliv má 3693 obyvatel, z toho 2578 v produktivním věku.
    V obci se nachází pošta.
    V obci se nachází škola, popř. školka.
    V obci se nachází zdravotní zařízení.
    V obci je rozvod kanalizace.
    V obci je rozvod městské vody.

Podobné nabídky v okolí

Lokalita: Tyršova , Zliv, okres České Budějovice, Česká republika Tyršova, Zliv, okr. České Budějovice