• Sledovat cenu
  •  

Zasílání upozornění emailem:

Prodej bytu 2+1, 58 m2 - Puškinova, Frýdek, Frýdek-Místek, okr. Frýdek-Místek (již není v nabídce)

Cena: 2 500 000 Kč
Stav:archiv
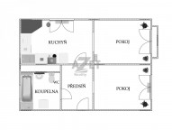
2+1, 58 m2, cihlová, OV, 2. podlaží
Popis: Úvod:

Naše společnost Vám exkluzivně v zastoupení majitele nabízí byt 2+1 v osobním vlastnictví po částečné rekonstrukci ve 2. nadzemním podlaží ze tří. Velmi žádaná lokalita. Ní...zkopodlažní cihlová zástavba. Celková výměra prodávané nemovitosti včetně sklepa činí 58 m2. Měsíční náklady cca 3000, - Kč. Neprůchozí pokoje. Francouzské okno se vstupem na menší balkón. Plovoucí podlahy ve všech místnostech kromě sanity s předsíní. Prostorná kuchyně s rohovou linkou a spotřebiči (myčka, dřez, kombinovaná trouba, digestoř, lednice s mrazničkou, mikrovlná trouba). Plastová okna se žaluziemi a parapety. Výhled na 2 světové strany (pokoje - jihovýchod/kuchyň - severovýchod). Koupelna se zapuštěnou vanou, žebříkovým radiátorem, vyhrazeným místem pro pračku a sociální zařízení WC Kombi. Litinové ústřední (dálkové) topení. Možnost připojení na internetové připojení (optika) a kabelovou TV. V letních měsících je před obytným domem k dispozici společná pergola (3 x 3 m).

Rekonstrukce - 2012:

Nové elektrické rozvody v mědi (revizní zpráva). Kuchyňská linka. Plovoucí podlahy.

Potenciál a výhody nemovitosti:

1. Osobní vlastnictví.
2. Nízkopodlažní cihlová zástavba
3. francouzské okno s balkónem.
4. 2 samostatné komínové šachtice. Realizace krbových kamen.
5. Možnost převzetí stávajícího nájemce.

Revitalizace obytného domu:

Plastová okna se žaluziemi a parapety (2004). Fasáda + zateplení (2015). Vstupní vchod.

Závěr:

Nemovitost je k dispozici ihned. Maximální občanská vybavenost ve všech směrech. Doporučujeme Vám prohlídku. Průkaz energetické náročnosti budovy dle zákona v energetické třídě G. Finanční poradenství zajistíme zdarma s výhodným úročením. Advokátní úschova i vypracování kupních smluv v ceně nabídky. Pro více informací kontaktujte našeho makléře. Těšíme se na Vaší navštěvu.
  • Vložení inzerátu:
    14.1.2024
  • Kód:
    1243
  • Typ nemovitosti:
    Byt
  • Typ budovy:
    Cihlová
  • Dispozice:
    2+1
  • Vlastnictví:
    OV
  • Podlaží:
    2
  • Podlahová plocha:
    58 m2
  • Balkón:
    1 m2
  • Sklep:
    5 m2
  • Stav objektu:
    Velmi dobrý
  • Bezbariérový byt:
    Ano
  • Telekomunikace:
    Internet, Kabelová televize
  • Voda:
    dálkový vodovod
  • Doprava:
    silnice, dálnice, MHD, autobus, vlak
  • Topeni:
    ústřední dálkové
  • Plyn:
    plynovod
  • Odpad:
    kanalizace
  • Komunikace:
    asfaltová
  • Bezbariérový přístup:
    Ano
  • Energetická náročnost:
    G - Mimořádne nehospodárná
  • Nabídky v okolí:

Podobné nabídky v okolí

Lokalita: Puškinova , Frýdek, Frýdek-Místek, okres Frýdek-Místek, Česká republika Puškinova, Frýdek, Frýdek-Místek, okr. Frýdek-Místek