• Sledovat cenu
  •  

Zasílání upozornění emailem:

Prodej bytu 2+1, 58 m2 - Brno, okr. Brno-město (již není v nabídce)

Cena: 4 470 000 Kč
Stav:archiv
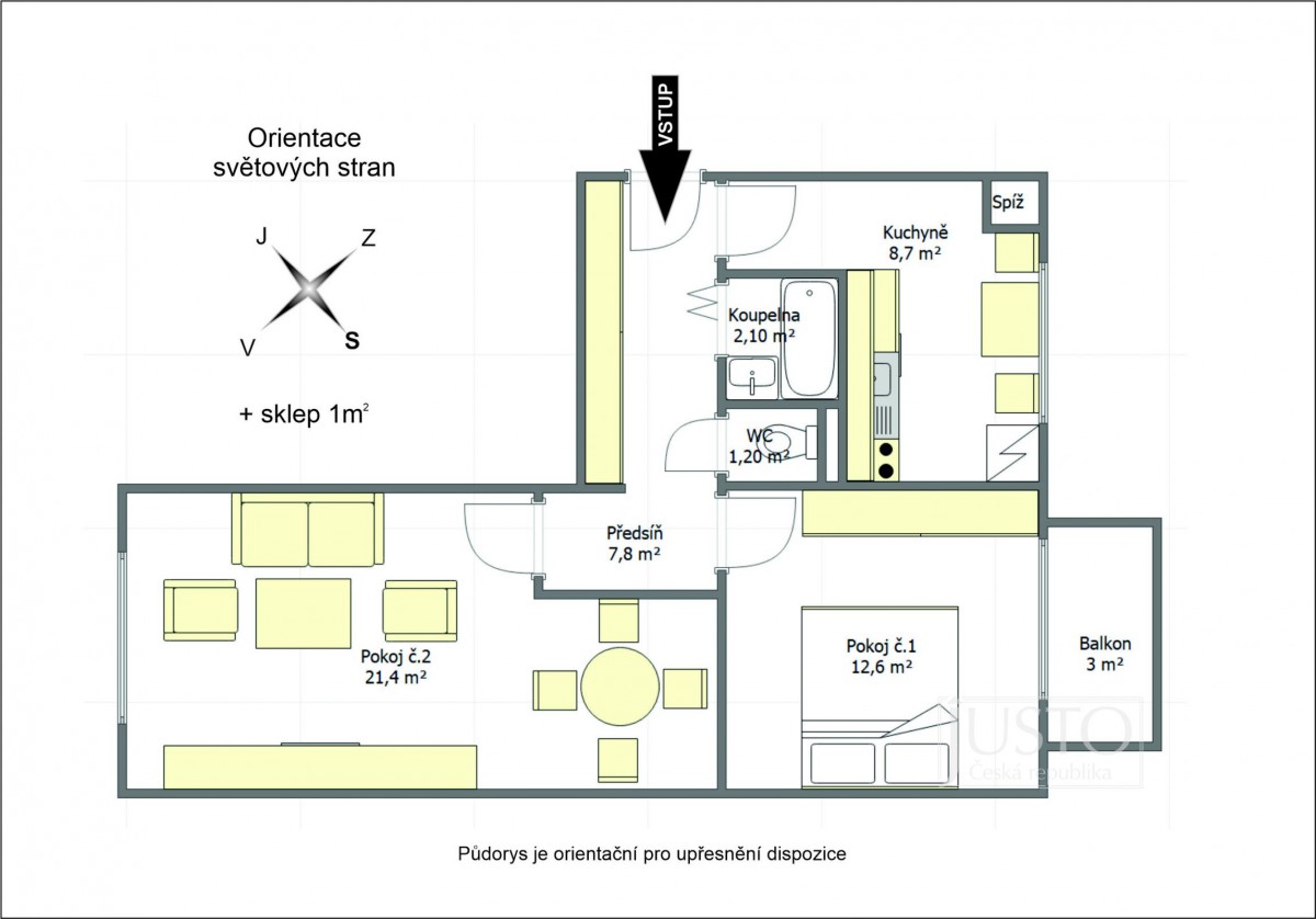
2+1, 58 m2, panelová, OV, 6. podlaží
Popis: V zastoupení majitele Vám nabízíme k prodeji byt o dispozicích 2+1, 55 m², v Černých Polích.


Byt se sestává z neprůchozí ložnice s balkónem, neprůchozího obývacího pokoje, kuchy...ně s jídelním koutem, samostatné koupelny a toalety v původním stavu (vhodné k rekonstrukci) a předsíně s původními vestavěnými skříněmi. V pokojích jsou na podlaze původní parketová podlaha, v předsíni, kuchyni a na balkóně PVC. Byt je vhodný k přímému nastěhování, doporučujeme rekonstrukci jádra a výměnu oken, která jsou původní.

3D virtuální prohlídka https: //1url. cz/DznZx

Dispozice bytu:
Pokoj č. 1 12, 6 m² ložnice
Pokoj č. 2 21, 4 m² obývací pokoj
Kuchyň 8, 75 m²
Předsíň 7, 8 m²
Koupelna 2, 1 m²
sociální zařízení WC 1, 2 m²
Sklep 1 m²
- - - - - - - - - - - - -
Celkem 55 m²
+ balkon 3 m²

Náklady:
Elektřina 850, -
Plyn 150, -
Byt 1. 614, - + 1. 104, - FO
- - - - - - - - - - - - -
Celkem 3. 718, -

Revitalizace domu:
2019 střecha, rozvody elektřiny
2015 výtah
2007 balkony, zateplena fasáda, ve stoupačkách odpady a vodovodní rozvody

Orientace bytu
Ložnice s balkonem a kuchyně jsou orientovány severozápadně. Obývací pokoj je jihovýchodním směrem.

Lokalita
V okolí je plná občanská vybavenost obchody, restaurace (včetně známé Kinokavárny), školy, školky, dětské hřiště s parkem přímo u domu. Pro procházky s pejsky je poblíž Planýrka. Parkování zajišťuje prostorné parkoviště před domem. Do centra je to s MHD za cca 15 minut a autem za 10 minut. Do soběšických lesů je to cca 10 minut MHD a za 5 minut autem. V blízkosti jsou velké dopravní uzly Halasovo náměstí a Štefanikova čtvrť.

Předpokládaný prohlídkový den je v pátek 5. 2. 2021
Rezervujte si včas termín Vaší prohlídky

Prodávající si vyhrazuje právo vybrat kupujícího na základě jím zvolených kritérií.
  • Vložení inzerátu:
    28.1.2021
  • Kód:
    3171615
  • Typ nemovitosti:
    Byt
  • Typ budovy:
    Panelová
  • Dispozice:
    2+1
  • Vlastnictví:
    OV
  • Podlaží:
    6
  • Podlahová plocha:
    58 m2
  • Balkón:
    3 m2
  • Sklep:
    1 m2
  • Stav objektu:
    Dobrý
  • Umístění objektu:
    Klidná část
  • Telekomunikace:
    Telefon, Internet, Kabelová televize
  • Topeni:
    ústřední dálkové
  • Energetická náročnost:
    C - Úsporná
  • Nabídky v okolí:
  • Informace o obci:
    Obec Brno má 371371 obyvatel, z toho 256490 v produktivním věku.
    V obci se nachází pošta.
    V obci se nachází škola, popř. školka.
    V obci se nachází zdravotní zařízení.
    V obci je rozvod kanalizace.
    V obci je rozvod městské vody.
    V obci je rozvod plynu.

Podobné nabídky v okolí

Lokalita: Brno, okres Brno-město, Česká republika Brno, okr. Brno-město, Jihomoravský kraj