Prodej bytu 2+1, 58 m2 - Branislavova, Beroun-Město, Beroun, okr. Beroun (již není v nabídce)
Cena:
4 850 000 Kč
Stav:archiv
2+1, 58 m2, panelová, OV, 7. podlaží
Popis:
Byt 2+1 s lodžií, v osobním vlastnictví, o celkové ploše 58, 3 m2, v 6. patře panelového domu včetně výtahu, v části Beroun - Hlinky. Dům leží v klidné jednosměrné u...lici, s přemoc hezkými výhledy na okolní kopce a přírodu. Pěšky do centra města do 10 minut.
Dům má dobře fungující SVJ a prošel celkovou rekonstrukcí: střecha, fasáda se zateplením, bezbariérový vstup, okna, balkony, soupačky, elektroinstalace, výtah, bezpečnostní kamerový systém společných prostor a zavedený optický internetové připojení.
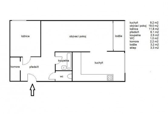
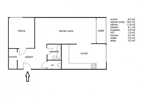
Byt samotný má rekonstruované jádro, zánovní kuchyňskou linku, novou výmalbu. Dispozici bytu tvoří předsíň, ložnice, obývací pokoj, kuchyně, koupelna s vanou, samostatná toaleta a praktická komora. Lodžie o ploše 3, 2 m2 je přístupná z obývacího pokoje se západní orientací a celoročně nabízí příjemné posezení. Ložnice směřuje na jih. Okna jsou plastová s izolačním dvojsklem a žaluziemi, na podlahách je PVC, v předsíni koberec, koupelna s dlažbou. K bytu přísluší také sklepní kóje 3, 3 m2, v suterénu domu.
Beroun obklopují ze všech stran přemoc hezké kopce a lesy protkané turistickými stezkami a cyklotrasami. Město má kompletní občanskou vybavenost a malebné historické centrum. K dispozici je kino, divadlo, galerie, krytý bazén, aquapark, lezecká stěna, zimní stadion, in - line dráha nebo mistrovské golfové hřiště. Přímo u domu je MŠ, střední odborná škola, veřejné sportovní hřiště, dětské hřiště i prodejna potravin. Zastávka autobusu 1 min pěšky. Autem do Prahy za 20 min, vlakem na Smíchov nebo na Hlavní nádraží rovněž 20 min. PENB - C. ID nemovitosti MDO0534 - 0001.
- Vložení inzerátu:
24.9.2022
- Kód:
MDO0534-0001
- Typ nemovitosti:
Byt
- Typ budovy:
Panelová
- Dispozice:
2+1
- Vlastnictví:
OV
- Podlaží:
7
- Podlahová plocha:
58 m2
- Plocha parcely:
58 m2
- Lodžie:
3 m2
- Sklep:
3 m2
- Stav objektu:
Velmi dobrý
- Bezbariérový byt:
Ano
- Topeni:
ústřední dálkové
- Bezbariérový přístup:
Ano
- Energetická náročnost:
C - Úsporná
- Nabídky v okolí: